Klockkullavägen 11

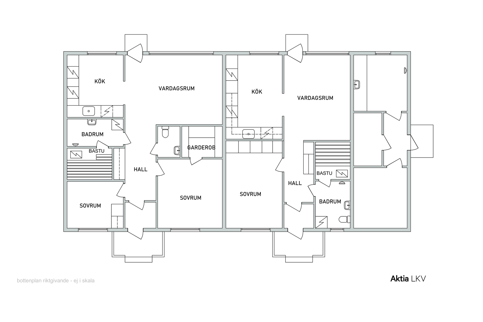
2 lägenheter och gemensamma utrymmen.

Pinta-ala

175 m²

Myyntihinta

1,00 €

Velaton hinta

1,00 €

Sijainti

22840 LAPPO

Tyyppi

paritalo

 

Perustiedot

Tyyppi
paritalo
Velaton hinta
1,00 €
Myyntihinta
1,00 €
Neliöhinta
0,01 €
Rakennusvuosi
1988
Kuvaus
2 lägenheter och gemensamma utrymmen.
Vapautuminen
sopimuksen mukaan
Tilat ja varustelu
tie perille, oma sauna, sähköliittymä siirtyy
Koko
ei luokiteltu
Pinta-ala
175 m²
Kokonaispinta-ala
175 m²
Kerros
1
Yleiskunto
ei luokiteltu

Tontti ja kaavoitus

Tontin pinta-ala
5 840 m²
Tontin omistus
vuokrattu
Tontin tyyppi
Tasamaatontti

Kohteen kuvaus

Tontin pinta-ala
5 840 m²
Kiinteistötunnus
35-409-4-10-L1
Tontin omistus
vuokrattu
Muuta
tie perille, oma sauna, sähköliittymä siirtyy

Materiaalit, varusteet ja lämmitys

Rakennusmateriaali
puu
Lämmitysjärjestelmä
sähkö

Taloyhtiö

Tontin omistus
vuokrattu

Keittiö

Seinämateriaali
maalattu
Lattiamateriaali
muovi
Varustelu
liesituuletin / hormi
Liesi
sähköliesi
Jääkaappi
jääkaappi/pakastin

Pesutilat

Seinämateriaali
kaakeli
Lattiamateriaali
laatta
Varustelu
pesukoneliitäntä wc-istuin suihku peilikaappi

Oleskelutilat

Seinämateriaali
maalattu
Lattiamateriaali
muovi

Makuuhuoneet

Lattiamateriaali
muovi

Ota yhteyttä välittäjään

Jaa sivu

Jatka selailua