Mirjankuja 2
4h, k, kph, erill.wc, vh, lasitettu parv. (Yj.4h+k)
Pinta-ala
95,5 m²
Myyntihinta
273 000,00 €
Velaton hinta
304 806,00 €
Sijainti
02230 Espoo
Tyyppi
kerrostalo
Kerros
3 / 3
Tilava perheasunto Matinkylän parhailla paikoilla.
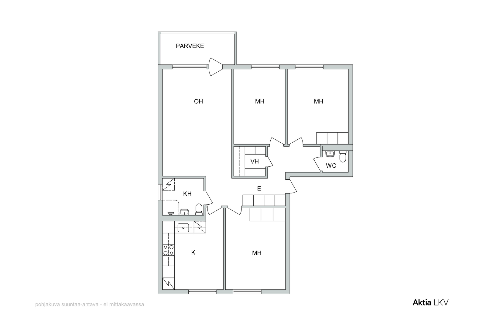
Tämä ylimmän kerroksen koti tarjoaa täydellisen mahdollisuuden suurelle perheelle. Kolme makuuhuonetta tarjoavat jokaiselle omaa rauhaa ja tilaa ja kodin pohjaratkaisu mukautuu helposti perheen tarpeisiin.
Keittiö on uusittu ja palvelee hyvin kotikokkia. Pientä pintaremonttia tekemällä saat tästä asunnosta juuri oman näköisesi kodin.
Olohuone jatkuu kauniisti etelään avautuvalle lasitetulle parvekkeelle, jossa voi nauttia auringosta ja lisäoleskelutilasta lähes keväästä pitkälle syksyyn.
Säilytystilat ovat poikkeuksellisen hyvät: päämakuuhuoneen vieressä on vaatehuone ja kaapistoja löytyy reilusti muista makuuhuoneista. Lisäksi arkea helpottaa kaksi wc:tä – toinen makuuhuoneiden yhteydessä ja toinen kylpyhuoneessa, jossa on myös tilaa pyykkihuollolle.
Asunto sijaitsee Matinkylän monipuolisten palveluiden keskellä. Lyhyen kävelymatkan päästä löytyvät metroasema, kauppakeskus Ison Omena, koulut, päiväkodit ja liikuntamahdollisuudet. Upeat rantamaisemat ja merenranta tarjoavat virkistystä ja ulkoilumahdollisuuksia ympäri vuoden.
Rymlig familjebostad på bra läge i Mattby
En ljus överstavåning är ett perfekt hem för den stora familjen. Tre sovrum ger gott om plats och lugn för alla och planlösningen anpassar sig lätt efter familjens behov.
Köket är redan renoverat och redo att användas, medan en lätt ytrenovering gör bostaden helt din egen. Vardagsrummet öppnar upp mot en inglasad, solig balkong i söderläge, där du kan njuta från tidig vår till sen höst.
Förvaringsmöjligheterna är utmärkta: master bedroom med klädkammare intill och dessutom finns generösa garderober i de andra rummen. Två toaletter underlättar vardagen – en i anslutning till sovrummen och en i badrummet där det också finns plats för byk o. förvaring.
Läget är svårslaget, metro, Iso Omena, svenskt skolcentrum, daghem, sportmöjligheter och havet finns på kort promenadavstånd. Redo för nästa familj att skapa sina drömmar i!
Tiedustelut ja esittelyt:/ Info och visningar: Taina Friman, 0505447445, taina.friman@aktialkv.fi
