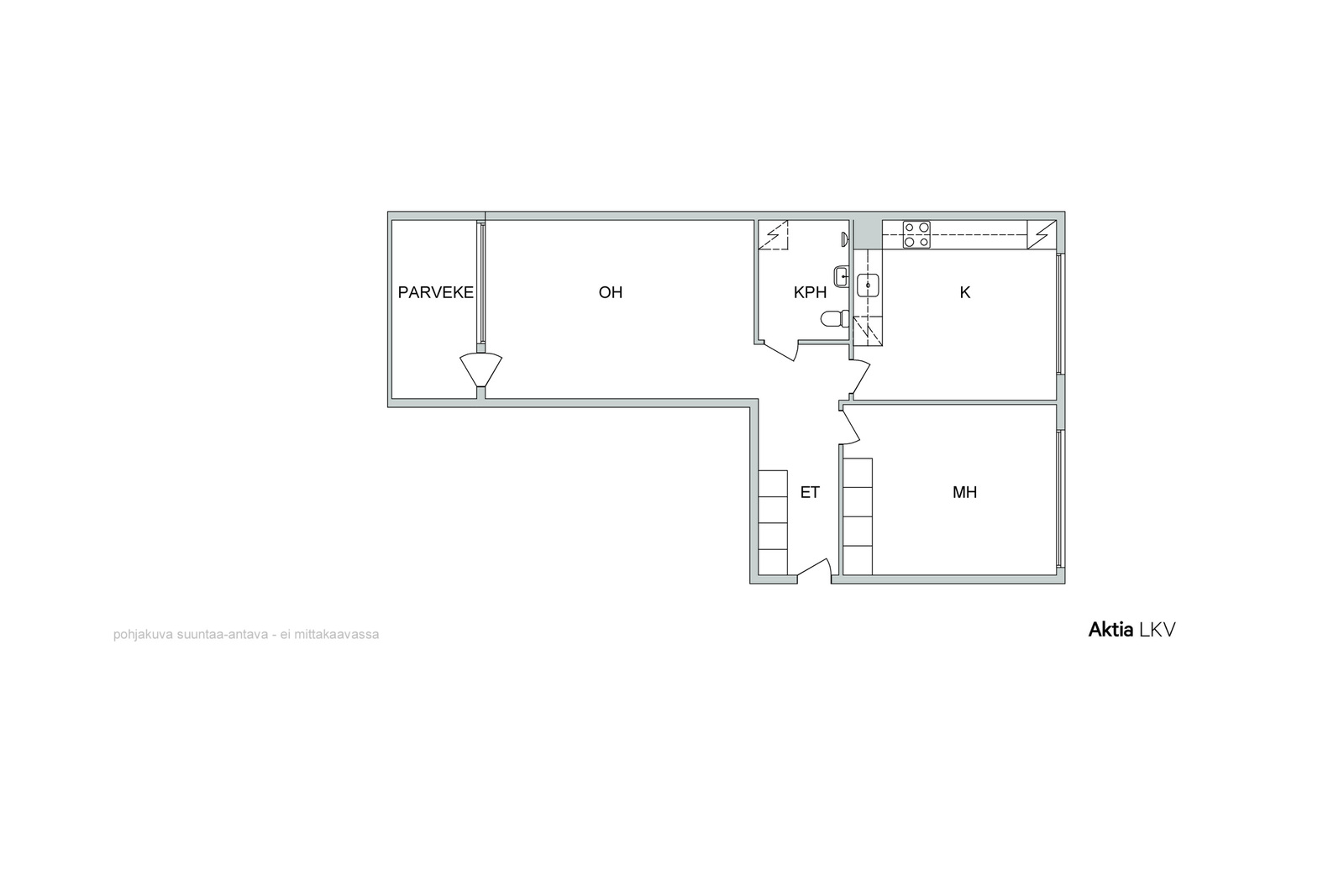
Honkavaarankuja 1

2h, k, kph, las. parv

Pinta-ala

57,5 m²

Myyntihinta

88 134,81 €

Velaton hinta

109 000,00 €

Sijainti

02710 Espoo

Tyyppi

kerrostalo

Kerros

1 / 3

Valoisa läpitalon kaksio rauhallisella alueella. 1 krs, ei kuitenkaan katutasossa.
Lippajärven uimarannalle muutama askel (80m). Viherlaakson kouluun 800m ja palveluihin 850m.
Hyvä iso taloyhtiö, jossa julkisivuremontti tehty.

Linjasaneeraus on juuri valmistunut tässä rapussa. Lainaosuudet jyvitetään, kun koko talon remontti on valmis. Asunto on heti vapaa.
Tiedustelut ja esittelyt: Charlotta Ahlström 0400453557.

Perustiedot

Tyyppi
kerrostalo
Omistusmuoto
oma
Velaton hinta
109 000,00 €
Myyntihinta
88 134,81 €
Neliöhinta
1 895,65 €
Rakennusvuosi
1972
Kuvaus
2h, k, kph, las. parv
Vapautuminen
heti
Tilat ja varustelu
parveke
Koko
kaksio
Pinta-ala
57,5 m²
Muu pinta-ala
0
Kokonaispinta-ala
57,5 m²
Kerros
1
Yleiskunto
hyvä
Energialuokka
D2018

Kustannukset

Hoitovastike
294,00 €
Rahoitusvastike
226,80 €
Yhtiövastike yht.
520,80 €
Lisätietoa maksuista
Pesutupamaksu 10,00€/kk Kylmäkellarimaksu 7,00€/kk Varsinaisessa yhtiökokouksessa 11.6.2024 päätettiin - koeäänestyksen jälkeen yksimielisesti LVIS-saneerauksen toteutussuunnitelmien hyväksymisestä ja valtuutettiin hallitus aloittamaan hankkeen kilpailutus. Kun tarjoukset on saatu, ylimääräinen yhtiökokous kutsutaan koolle ja yhtiökokous päättää tarjouksen hyväksymisestä ja putkiremontin aloittamisesta tai hylkäämisestä.

Tontti ja kaavoitus

Tontin pinta-ala
17 790 m²
Tontin omistus
oma

Kohteen kuvaus

Tontin pinta-ala
17 790 m²
Tontin omistus
oma
Muuta
parveke

Materiaalit, varusteet ja lämmitys

Rakennusmateriaali
betoni
Kattotyyppi
Harjakatto
Kate
Pelti
Lämmitysjärjestelmä
muu

Taloyhtiö

Taloyhtiön nimi
Asunto Oy Lippapuisto
Isännöinti
Pääkaupunkiseudun MP-Isännöinti Oy Päivi Ilkka asiakaspalvelu@mp-isannointi.fi
Vastuu kiinteistön hoidosta
huoltoyhtiö
Taloyhtiön tehdyt remontit
2023 Talojen 2 ja 4 saunojen kiukaiden ja ohjauskeskusten uusiminen, Pesutuvan pesukoneiden uusiminen 2 kpl, Kaukolämpölaitteistojen uusiminen, Talojen 1 ja 2 kylmäkellareiden kylmätekniikan ja -komeroiden purku, Vesivuotovahdin asennus talon 2 lämmönjakohuoneeseen 2022 Linjasaneerauksen hankesuunnittelu, Kellarien palo-ovien uusiminen, Pihan kunnostus (autopaikkojen lisäys 5 kpl, vedenohjauksen järjestelyjä, Suojakaiteiden rakentamista rinteisiin, sadevesikaivojen 2 kpl korotusta korokerenkain) 2021 Leikkialueen kunnostus. Talojen 2 ja 4 tamppaustelineiden ja talojen 4 ja 5, Kuivaustelineiden uusiminen, Ilmanvaihtokanavien puhdistus ja venttiilien säätö, Ikkunoiden korvausilmaventtiilien puhdistus ja suodattimien uusiminen 2020 Ulkovaipan saneeraushankkeen toteutus 2018 ulkovaipan saneeraushankkeen suunnittelu, kellarien käytävien alakattojen villalevyjen uusiminen 2017 pihavalaistuksen parantaminen 2016 ulkovaipan ja vesikaton saneeraushankkeen hankesuunnnittelu. Julkisivut, sokkelit, sisääntulon katokset, vesikatto, (sähkölämmitys kouruihin ja syöksyihin), portaiden savunpoistoluukut, yläpohjanlisälämmöneristys, parvekkeen ovet ja ikkunat sekä ikkunoiden levyrakenteiset alaosat lämmöneristeineen, autopaikkojen sähkölämmityskoteloiden uusiminen, sadevesi- ja viemärilinjojen ongelmakohtien korjaaminen talo 1 ja 5, 2015 Porrashuoneiden valaisimet uusittu, putkiston kuntotutkimuksen yhteydessä tulleiden puutteiden korjaukset, peltikattojen kuntotutkimus, julkisivun kuntotutkimus, uusi putkiston kuntotutkimus (Inspecta) 2014 puiden kaataminen piha-alueelta, loppujen lukostojen uusiminen 2013 puiden kaatoselvitys/katselmus, lukoston uusinnan suunnittelu ja osatoteutus, leikkipaikan kunnostus, kulkuramppien ja liukuturvaritilöiden hankkiminen, pesulaosaston kunnostaminen ja kuivaimien uusiminen, talo 2 saunan 2 kunnostaminen... Pyydä laaja korjauslistaus välittäjältä.
Taloyhtiöön suunnitellut remontit
2025-2026 Linjasaneeraus, alajakokeskusten (lämmönvaihtimet) uusiminen suunnittelu ja toteutus. Lämmitysjärjestelmän tasapainotus, patteriventtiilien ja termostaattien uusiminen. Lämpöverkoston sulku- ja säätöventtiilien uusiminen 2026 Lukoston uusiminen
Tontin omistus
oma

Keittiö

Seinämateriaali
kaakeli maalattu
Lattiamateriaali
muovi
Varustelu
astianpesukone
Liesi
sähköliesi
Jääkaappi
jääkaappi pakastin

Pesutilat

Seinämateriaali
kaakeli
Lattiamateriaali
laatta

Oleskelutilat

Seinämateriaali
lasikuitutapetti
Lattiamateriaali
parketti

Makuuhuoneet

Lukumäärä
1
Lattiamateriaali
muovi

Ota yhteyttä välittäjään

Jaa sivu

Jatka selailua