Munkholmarna
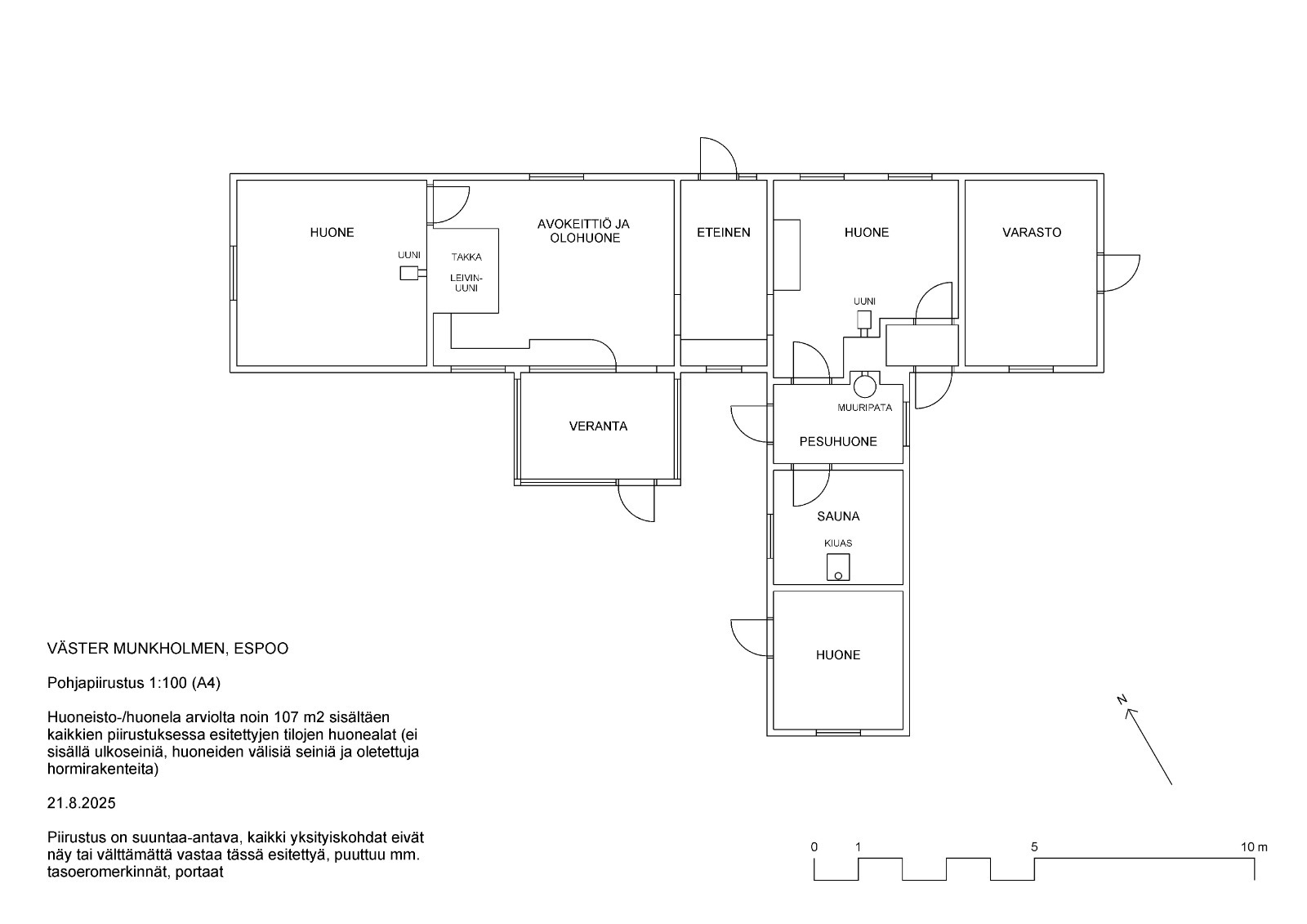
3mk, tupakeittiö, sauna ja pesuhuone
Pinta-ala
77 m²
Myyntihinta
350 000,00 €
Velaton hinta
350 000,00 €
Sijainti
02380 Espoo
Tyyppi
mökki tai huvila
Väster Munkholmen sijaitsee suojaisessa paikassa Svinösundin ulkopuolella. Kaunis tontti, jolla on upeat rantakalliot, mahdollisuus hiekkarantaan (jos kaislat poistetaan) sekä aurinkoinen suunta länteen. Näkymät kohti Soukanrannan huviloita. Lyhyt venematka ja mahdollisuus vuokrata venepaikka. Väster Munkholmenille pääsee myös isommalla veneellä suoraan laiturille.
Vapaa-ajan asunto on hirsirakenteinen 1800-luvulta, ja siihen on tehty laajennus 1980-luvulla. Carunan tarjous sähkön tuomisesta saareen on alle 3000€. Tuvassa on keittiö ja suuri takka leivinuunilla. Kolme tilavaa makuuhuonetta, sauna ja pesuhuone. Kiinteistöllä on myös vanha maakellari, vaja, ulkorakennuksia sekä uimamökki. Kaikki rakennukset kaipaavat kunnostusta. Tunnelmallinen saari, josta on lyhyet matkat Pentalan saarelle, Esbo Segelföreningeniin tai Helsinkiin.
Endast 35 minuters avstånd från Helsingfors centrum! Väster Munkholmen ligger i skyddat läge utanför Svinösund. Fin tomt med vackra strandklippor, möjlighet till sandstrand (om vassen skärs bort) samt soligt läge mot väst. Utsikt mot villorna i Sököstrand. Kort båtväg och möjlighet att hyra båtplats. Möjligt att komma till Väster Munkholmen också med större båt till bryggan. Fritidsbostad i stock från 1800-talet med tillbyggnad från 1980-talet. Carunas offert för att dra elektricitet till holmen är under 3000€. Stugkök och vardagsrum med stor eldstad med bakugn. Tre rymliga sovrum, bastu och tvättrum. På fastigheten finns också en gammal iskällare, lider och uthus och simstuga. Samtliga byggnader är i behov av renovering. Fin stämning på holmen med korta avstånd till Pentala, Esf eller Helsingfors.
