Metsäkannaksentie 18

4h, k, takkahuone, kph/s, 2 x erillinen wc. Autotalli.

Pinta-ala

148 m²

Myyntihinta

258 000,00 €

Velaton hinta

258 000,00 €

Sijainti

10940 Hanko

Tyyppi

omakotitalo

Kerros

1-2 / 2

Laadukas täystiilitalo upealla sijainnilla: meren, luonnon ja auringonlaskujen äärellä Hangossa

Tervetuloa tutustumaan vankkaan ja huolella pidettyyn kaksikerroksiseen täystiilitaloon, joka sijaitsee luonnonläheisellä alueella lähellä Hangon upeimpia uimarantoja. Yksi kaupungin kauneimmista auringonlaskurannoista, H.U.S:n ranta, sijaitsee vain muutaman sadan metrin päässä -täällä arki tuntuu lomalta.

Talossa on tehty merkittäviä ja asumismukavuutta parantavia remontteja:
energiatehokas ilmavesilämpöpumppu on asennettu vuonna 2022, keittiö on uusittu 2018, kylpyhuone vuonna 2022 sekä ikkunat ja ulko-ovet vuonna 2024. Nämä päivitykset tekevät kokonaisuudesta sekä nykyaikaisen että energiatehokkaan.

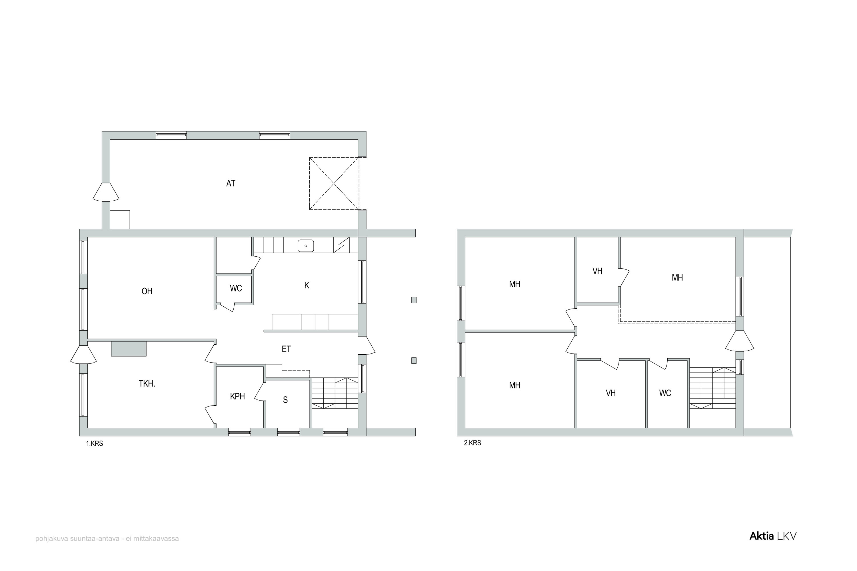
Alakerrassa sijaitsevat toimiva keittiö, valoisa olohuone sekä viihtyisä takkahuone, josta on käynti osittain katetulle terassille – täydellinen paikka kesäilloista nauttimiseen. Lisäksi alakerrassa on kylpyhuone, sauna sekä erillinen wc.

Yläkerrasta löytyvät kolme makuuhuonetta, ja aula josta käynti parvekkeelle.
Säilytystilaa tarjoavat kaksi vaatehuonetta, ja ja vintti. Arkea helpottaa myös yläkerran wc.

Kokonaisuuden viimeistelee oma autotalli.

Tämä koti yhdistää laadukkaan rakentamisen, harkitut remontit ja ainutlaatuisen sijainnin meren ja luonnon läheisyydessä.

Perustiedot

Tyyppi
omakotitalo
Velaton hinta
258 000,00 €
Myyntihinta
258 000,00 €
Neliöhinta
1 402,17 €
Rakennusvuosi
1986
Kuvaus
4h, k, takkahuone, kph/s, 2 x erillinen wc. Autotalli.
Vapautuminen
sopimuksen mukaan
Tilat ja varustelu
antenni, tie perille, oma sauna, sähköliittymä siirtyy
Koko
5 h
Pinta-ala
148 m²
Muu pinta-ala
36 m²
Kokonaispinta-ala
184 m²
Kerros
1-2
Yleiskunto
hyvä
Energialuokka
Ei lain edellyttämä energiatodistus

Kustannukset

Lisätietoa maksuista
Käyttö- ja lämmityssähkö 10854 kWh/2025. Kiinteistövero 339,94/2025. Jäteastian ja saostuskaivon tyhjennys. Vesi- ja jätevesi kulutuksen mukaan. Hulevesimaksu 40 euroa/v. Polttopuut. Vakuutukset.

Tontti ja kaavoitus

Tontin pinta-ala
735 m²
Tontin omistus
vuokrattu
Tontin tyyppi
Tasamaatontti

Kohteen kuvaus

Tontin pinta-ala
735 m²
Kiinteistötunnus
78-9-941-8-L1
Tontin omistus
vuokrattu
Muuta
antenni, tie perille, oma sauna, sähköliittymä siirtyy

Materiaalit, varusteet ja lämmitys

Rakennusmateriaali
tiili
Kattotyyppi
Harja
Kate
Mineriitti
Lämmitysjärjestelmä
ilmavesilämpöpumppu Ilmalämpöpumppu
Takka
takka

Taloyhtiö

Tontin omistus
vuokrattu

Keittiö

Seinämateriaali
maalattu muu
Lattiamateriaali
laminaatti
Varustelu
mikroaaltouuni astianpesukone kiinteät valaisimet liesituuletin / hormi
Liesi
induktio erillisuuni
Jääkaappi
jääkaappi

Pesutilat

Seinämateriaali
kaakeli
Lattiamateriaali
laatta
Varustelu
pesukoneliitäntä lattialämmitys suihku kiinteät valaisimet asennettuja erikoisvarusteita

WC:t

Lukumäärä
2
Seinämateriaali
maalattu
Lattiamateriaali
muovi

Oleskelutilat

Seinämateriaali
maalattu muu
Lattiamateriaali
laminaatti

Makuuhuoneet

Lukumäärä
3

Muut tilat

Muut tilat
Eteinen Tuulikaappi Takkahuone Terassi

Ota yhteyttä välittäjään

Jaa sivu

Jatka selailua