Hjalmarinpolku 32

3h, k, sauna/kph ja sisä-wc

Pinta-ala

48 m²

Myyntihinta

278 000,00 €

Velaton hinta

278 000,00 €

Sijainti

10900 Hanko

Tyyppi

mökki tai huvila

Kerros

1 / 1

Uniikki merellinen kohde rauhallisella sijainnilla niemen kärjessä, vain noin 10 minuutin ajomatkan päässä Hangon keskustasta.

Noin 6000 m² hyvin hoidettu rinnetontti tarjoaa omaa rauhaa ja upeat merimaisemat. Tontille pääsee ajamaan ja autolla pääsee myös suoraan rantaan.

Voit nauttia valmiista viihtyisästä kesämökistä tai hyödyntää rakennusoikeuden monipuolisesti: mahdollisuus muuttaa mökki vakituiseksi asunnoksi tai rakentaa uusi omakotitalo, jopa noin 300 m² sekä erillinen talousrakennus noin 100 m².

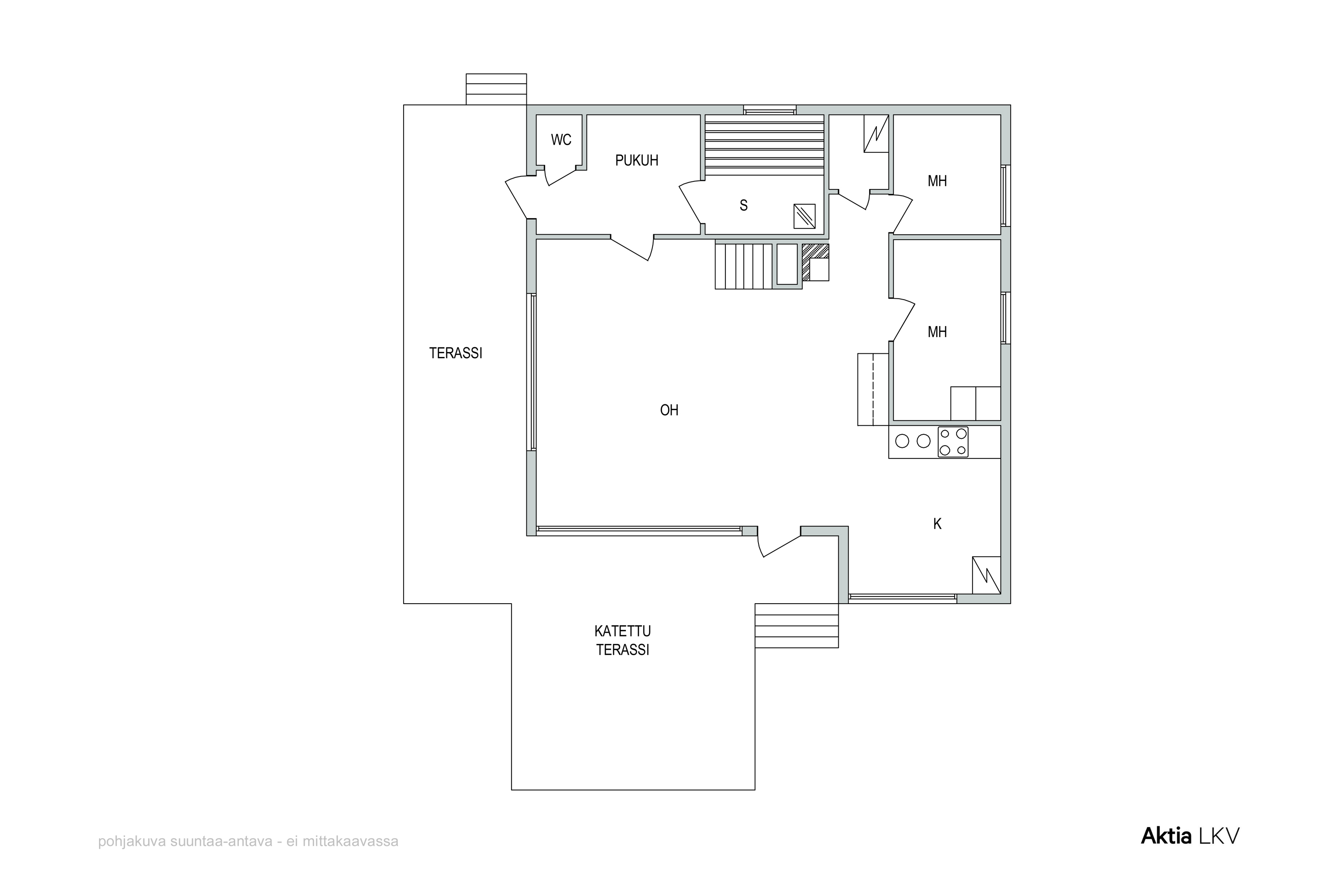
Mökissä on keittiö, olohuone, kaksi makuuhuonetta, sauna ja kylpyhuone. Pihapiirissä lisäksi aurinkoinen patio, varastorakennuksia ja leikkimökki.

Omalta laiturilta veneilet sujuvasti Hangonkylän satamaan tai kierrät Hankoniemen kautta keskustan ja Itäsataman palveluihin.

Kokonaisuus tarjoaa harvinaisen yhdistelmän omaa rauhaa, merellisyyttä ja rakennusmahdollisuuksia.

Perustiedot

Tyyppi
mökki tai huvila
Omistusmuoto
oma
Velaton hinta
278 000,00 €
Myyntihinta
278 000,00 €
Neliöhinta
4 088,24 €
Rakennusvuosi
1974
Kuvaus
3h, k, sauna/kph ja sisä-wc
Vapautuminen
sopimuksen mukaan
Tilat ja varustelu
tie perille, oma sauna, sähköliittymä siirtyy
Koko
kolmio
Pinta-ala
48 m²
Muu pinta-ala
20 m²
Kokonaispinta-ala
68 m²
Kerros
1
Yleiskunto
hyvä

Kustannukset

Lisätietoa maksuista
Lämmitys- ja käyttösähkö. Vesimaksu kulutuksen mukaan, vakuutukset, nuohous, jätekuljetus, umpitankin tyhjennys.

Tontti ja kaavoitus

Tontin pinta-ala
5 982 m²
Tontin omistus
oma
Tontin tyyppi
Rinnetontti
Lisätietoa kaavoituksesta
Kaavan mukainen käyttötarkoitus muodostumishetkellä: AO Erillispientalojen korttelialue. Mahdollisuus muuttaa nykyinen rakennus omakotitaloksi (vakituiseksi asunnoksi) rakennusmäärysten mukaisesti. Tai rakentaa uusi omakotitalo olemassa olevan rakennuksen tilalle, rakennusmääräysten mukaisesti max 300m2 omakotitalo ja max. 100m2 talousrakennus.
Rakennusoikeus
Rakentamista ohjaa Hangon kaupungin rakennusjärjestys, tontti on omakotitalotontti. Lisätietoa rakennusoikeuden määrästä Hangon kaupungin rakennusvalvonnasta, puh. 019 22031.

Kohteen kuvaus

Tontin pinta-ala
5 982 m²
Kiinteistötunnus
78-404-1-397
Tontin omistus
oma
Muuta
tie perille, oma sauna, sähköliittymä siirtyy

Materiaalit, varusteet ja lämmitys

Rakennusmateriaali
puu
Kattotyyppi
Harja
Kate
Pelti
Lämmitysjärjestelmä
puu Ilmalämpöpumppu
Takka
takka

Taloyhtiö

Tontin omistus
oma

Keittiö

Seinämateriaali
kaakeli maalattu puu
Lattiamateriaali
laminaatti
Varustelu
kiinteät valaisimet liesituuletin / hormi
Liesi
keraaminen
Jääkaappi
jääkaappi/pakastin

WC:t

Lukumäärä
1
Seinämateriaali
maalattu

Oleskelutilat

Seinämateriaali
maalattu puu
Lattiamateriaali
laminaatti

Makuuhuoneet

Lukumäärä
2

Muut tilat

Muut tilat
Terassi Patio Pukuhuone

Ota yhteyttä välittäjään

Jaa sivu

Jatka selailua