Esplanaadi 68

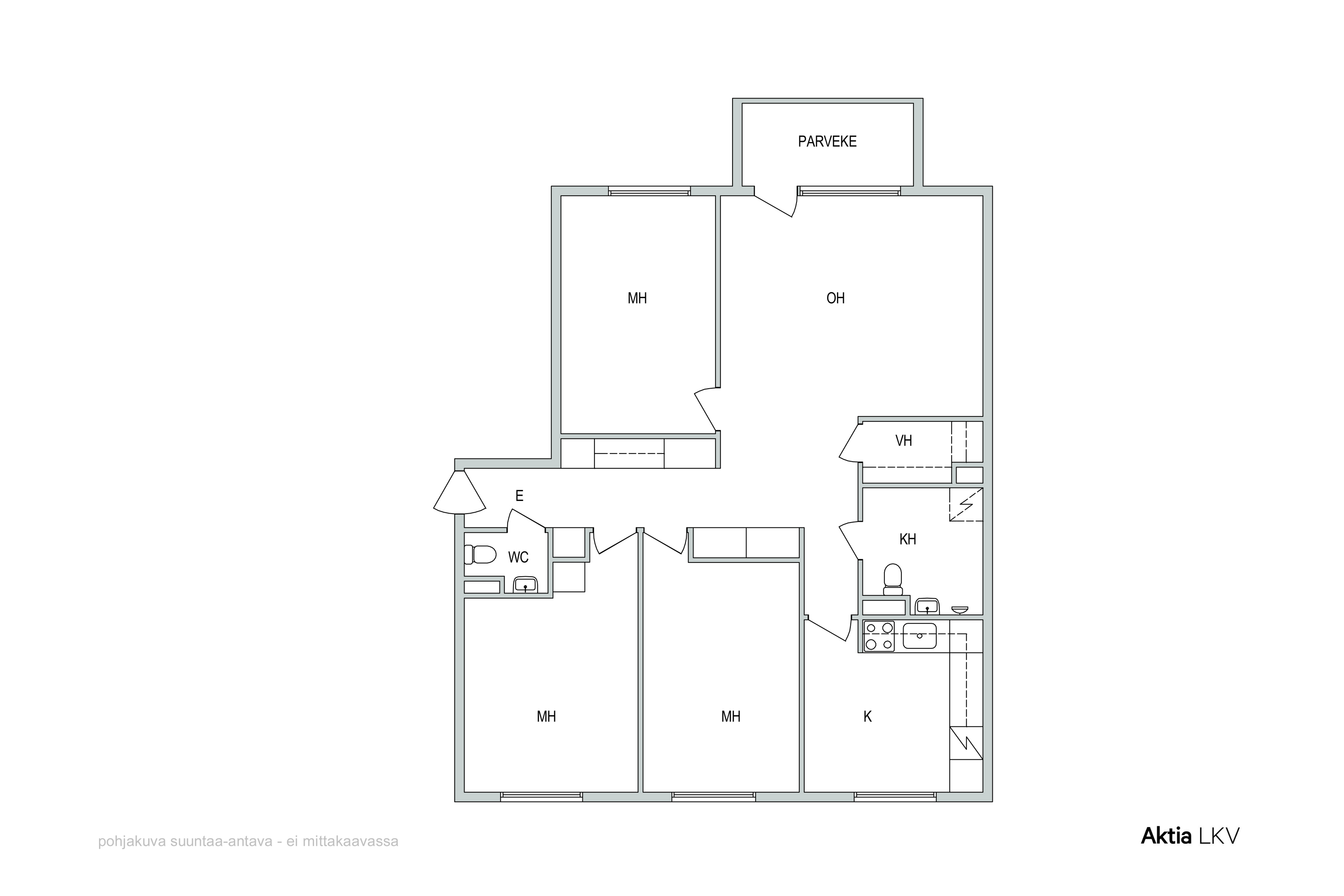
4h, k, kph/wc, wc, lasitettu parveke

Pinta-ala

93,5 m²

Myyntihinta

78 953,74 €

Velaton hinta

92 000,00 €

Sijainti

10900 Hanko

Tyyppi

kerrostalo

Kerros

3 / 3

Ylimmän kerroksen valoisa neljän huoneen asunto erinomaisella sijainnilla Haagapuiston vieressä. Kolme tilavaa makuuhuonetta, keittiö, kylpyhuone, erillinen wc, vaatehuone sekä lasitettu eteläparveke tekevät kokonaisuudesta toimivan ja viihtyisän perheasunnon. Selkeä ja tehokas pohjaratkaisu palvelee arjen tarpeita erinomaisesti.

Hyvin ylläpidetty taloyhtiö, jossa on tehty merkittäviä parannuksia kuten, maalämpö (2024) sekä sadevesiviemäröinti ja salaojitus (2018). Sijainti on rauhallinen mutta keskeinen, kaikki arjen palvelut löytyvät läheltä ja aivan naapurissa on Hangon uusin museo.

Tule katsomaan ja nappaa omaksesi!

Victor Stenström
Aktia Kiinteistönvälitys Hanko
Myyntineuvottelija
040 572 4335
victor.stenstrom@aktialkv.fi

Betjänar även på svenska!

Perustiedot

Tyyppi
kerrostalo
Omistusmuoto
oma
Velaton hinta
92 000,00 €
Myyntihinta
78 953,74 €
Neliöhinta
983,96 €
Rakennusvuosi
1972
Kuvaus
4h, k, kph/wc, wc, lasitettu parveke
Vapautuminen
sopimuksen mukaan
Tilat ja varustelu
kaapeli-tv, parveke, oma sopimus
Koko
4 h
Pinta-ala
93,5 m²
Muu pinta-ala
0
Kokonaispinta-ala
93,5 m²
Kerros
3
Yleiskunto
tyydyttävä
Energialuokka
C2018

Kustannukset

Hoitovastike
549,80 €
Rahoitusvastike
133,33 €
Yhtiövastike yht.
683,13 €

Tontti ja kaavoitus

Tontin pinta-ala
3 465 m²
Tontin omistus
oma

Kohteen kuvaus

Tontin pinta-ala
3 465 m²
Tontin omistus
oma
Muuta
kaapeli-tv, parveke, oma sopimus

Materiaalit, varusteet ja lämmitys

Rakennusmateriaali
betoni
Kattotyyppi
Harja
Kate
Pelti
Lämmitysjärjestelmä
maalämpö

Taloyhtiö

Taloyhtiön nimi
Asunto Oy Esplanadi 68
Isännöinti
Kontu Västra Nyland Ab, Christoffer Svartström, Puh. 010 739 7224 Sähköposti: christoffer.svartstrom@kontuoy.fi
Vastuu kiinteistön hoidosta
huoltoyhtiö
Autotalleja
13
Taloyhtiön tehdyt remontit
2000 - Kylmä vesirunko, vesirunko (päälinja) uusittukellaritiloissa. (Vuosilukuepävarma) 2002 - Ikkunat ja parvekeovet 2004 - Elementtisaumat, elementtisaumojen uusiminen 2010 - Viemäriputkien puhdistus/kuvaus, päälinjat ja nousut puhdistettuja kuvattu (kuntotutkimus). 2012 - Sisääntulo katoksen uusiminen 2014 - Peltikaton korjaaminen/uusiminen, peltikaton pintakäsittely(maalaus) 2016 - Kuntotutkimus, julkisivun ja parvekkeidenlaaja kuntotutkimus jonka perustella tehdään päätöksiä jatkotoimenpiteistä. 2018 - Julkisivu korjaus/maalaus, pintakorjaus 2018 - Parvekkeiden pintakorjaus 2018 - Sadevesiviemäröinti ja salaojitus 2018 - Pihan suunnittelu ja toteutus 2018 - Öljysäiliön uusiminen ja siirtäminen sisätiloihin 2024 - Lämmitysjärjestelmän vaihto maalämpöön 2024 - Uusi sähköpääkeskus, sähköliittymää korotettu
Taloyhtiöön suunnitellut remontit
2026-2030: - Aurinkopaneelit Selvitys jos aurinkopaneelien asennus olisi kustannustehokasta yhtiössä. - Autotallien ovien uusiminen - Huoneistojen sähkötaulujen uusiminen Sähkösyötöt ja uudet sulaketaulut huoneistoihin. Tietotekniikka verkon rakentaminen. - Pihasuunnittelu, uusi jätepiste - Käyttövesiputkien uusimisen suunnittelu
Tontin omistus
oma

Keittiö

Seinämateriaali
maalattu
Lattiamateriaali
muovi
Varustelu
liesituuletin / suodatin
Liesi
keraaminen
Jääkaappi
jääkaappi/pakastin

Pesutilat

Seinämateriaali
muovi
Lattiamateriaali
muovi
Varustelu
pesukoneliitäntä wc-istuin suihku peilikaappi

WC:t

Lukumäärä
1
Seinämateriaali
tapetti
Lattiamateriaali
muovi

Oleskelutilat

Seinämateriaali
tapetti
Lattiamateriaali
muovi

Makuuhuoneet

Lukumäärä
3
Lattiamateriaali
muovi

Muut tilat

Muut tilat
Eteinen Vaatehuone

Ota yhteyttä välittäjään

Jaa sivu

Jatka selailua