Gentoftenkatu 9

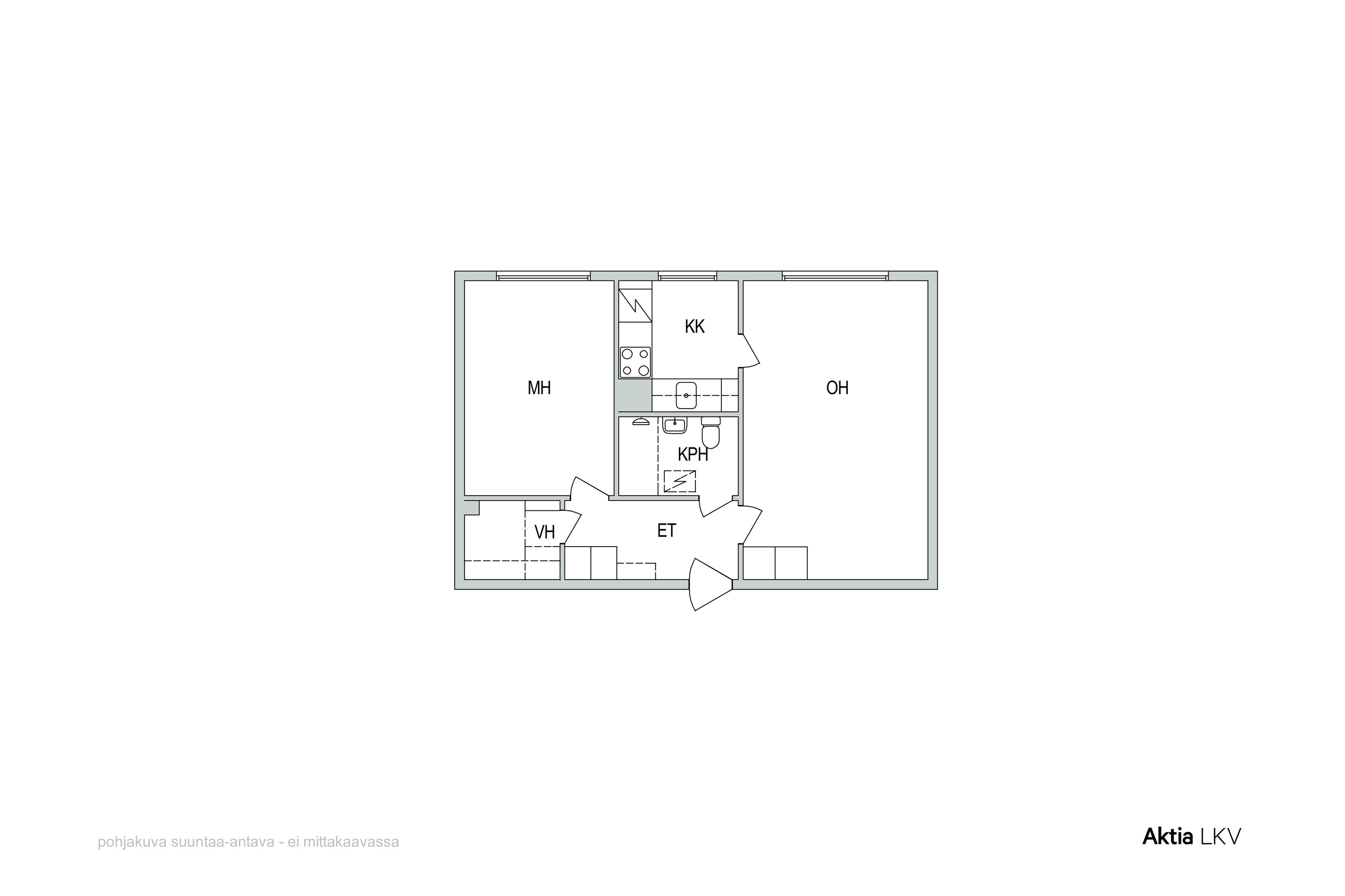
2h,kk, kph/wc, vaatehuone

Pinta-ala

48,5 m²

Myyntihinta

47 130,00 €

Velaton hinta

62 000,00 €

Sijainti

10900 Hanko

Tyyppi

kerrostalo

Kerros

3 / 3

Näppärä ja hyväkuntoinen kaksio rauhallisella sijainnilla

Tervetuloa tutustumaan viihtyisään ja toimivapohjaiseen kaksioon, joka on hyvässä kunnossa. Asunnossa on siisti keittokomero, valoisa olohuone sekä rauhallinen makuuhuone. Vuonna 2025 remontoitu kylpyhuone tuo asumiseen modernia ilmettä ja huolettomuutta pitkäksi aikaa.

Säilytystilaa tarjoaa erillinen vaatehuone, joka lisää arjen käytännöllisyyttä. Asunto sijaitsee talon kolmannessa kerroksessa, mikä tuo mukavasti valoisuutta ja näkymiä.

Sijainti on erinomainen luonnonläheisyyttä arvostavalle, ulkoilureitit ja luonto ovat aivan lähietäisyydellä. Keskustan monipuoliset palvelut sijaitsevat noin kilometrin päässä, ja lähikauppaan on vain muutaman sadan metrin matka.

Tämä asunto voidaan myös myydä kalustettuna!

Tämä koti sopii mainiosti niin omaan käyttöön kuin sijoitukseenkin.

Perustiedot

Tyyppi
kerrostalo
Omistusmuoto
oma
Velaton hinta
62 000,00 €
Myyntihinta
47 130,00 €
Neliöhinta
1 278,35 €
Rakennusvuosi
1975
Kuvaus
2h,kk, kph/wc, vaatehuone
Vapautuminen
sopimuksen mukaan
Tilat ja varustelu
kaapeli-tv, oma sopimus
Koko
kaksio
Pinta-ala
48,5 m²
Muu pinta-ala
0
Kokonaispinta-ala
48,5 m²
Kerros
3
Yleiskunto
hyvä
Energialuokka
E2018

Kustannukset

Hoitovastike
237,65 €
Rahoitusvastike
122,22 €
Yhtiövastike yht.
359,87 €
Lisätietoa maksuista
Vesimaksut kulutuksen mukaan, laskutus taloyhtiön päättämän aikataulun mukaan kylmä vesi 5,03 euroa/m3 ja lämmin vesi 8,03 euroa/m3.). Saunamaksut 2 euroa/kerta. Autopaikat jonotus systeemillä.

Tontti ja kaavoitus

Tontin pinta-ala
1 864 m²
Tontin omistus
vuokrattu

Kohteen kuvaus

Tontin pinta-ala
1 864 m²
Tontin omistus
vuokrattu
Muuta
kaapeli-tv, oma sopimus

Materiaalit, varusteet ja lämmitys

Rakennusmateriaali
betoni
Kattotyyppi
Tasakatto
Kate
huopakate
Lämmitysjärjestelmä
kaukolämpö

Taloyhtiö

Taloyhtiön nimi
As Oy Hangon Halmstadinkatu 40
Isännöinti
Isännöintitoimisto Kontu Västra Nyland AB Vuorikatu 21 10900 Hanko Isännöitsijä Christoffer Svartström 0107397224 christoffer.svartstrom@kontuoy.fi
Vastuu kiinteistön hoidosta
huoltoyhtiö
Taloyhtiön tehdyt remontit
Lukituksen uusiminen 2002. Kaukolämpö 2004. Patteritermostaatit uusittu 2005. Ikkunat ja parveke ovet uusittu 2007. Julkisivujen elastiset saumat uusittu 2009. Julkisivujen kevyt korjaus ja huoltomaalaus 2009. Kuituliittymä kaapeli-tv kanavia varten 2012. Sisäänkäyntien ulkovalaisimet uusittu 2015. Ilmanvaihtokanavien puhdistus 2017. Käyttövesiputkien, lämmitysverkoston ja viemäreiden kuntotutkimus 2017. Märkätilojen, kylpyhuoneiden kuntotarkastus 2018. Käyttövesiputkiston uusiminen ja asuntokohtaiset vesimittarit 2025. Kaikki kylpyhuoneet uusittu 2025.
Taloyhtiöön suunnitellut remontit
2025-2029: Lämpöjohtoverkoston seurantatutkimus Viemäreiden tarkastus, korjaustarpeen selvittäminen
Tontin omistus
vuokrattu

Keittiö

Seinämateriaali
maalattu
Lattiamateriaali
laminaatti
Varustelu
astianpesukone kiinteät valaisimet liesituuletin / suodatin
Liesi
sähköliesi
Jääkaappi
jääkaappi/pakastin

Pesutilat

Seinämateriaali
kaakeli
Lattiamateriaali
laatta
Varustelu
suihkuseinä pesukoneliitäntä lattialämmitys wc-istuin suihku peilikaappi kiinteät valaisimet

Oleskelutilat

Seinämateriaali
tapetti
Lattiamateriaali
laminaatti

Makuuhuoneet

Lukumäärä
2
Lattiamateriaali
laminaatti

Muut tilat

Muut tilat
Eteinen Vaatehuone

Ota yhteyttä välittäjään

Jaa sivu

Jatka selailua