Sauvontie 4
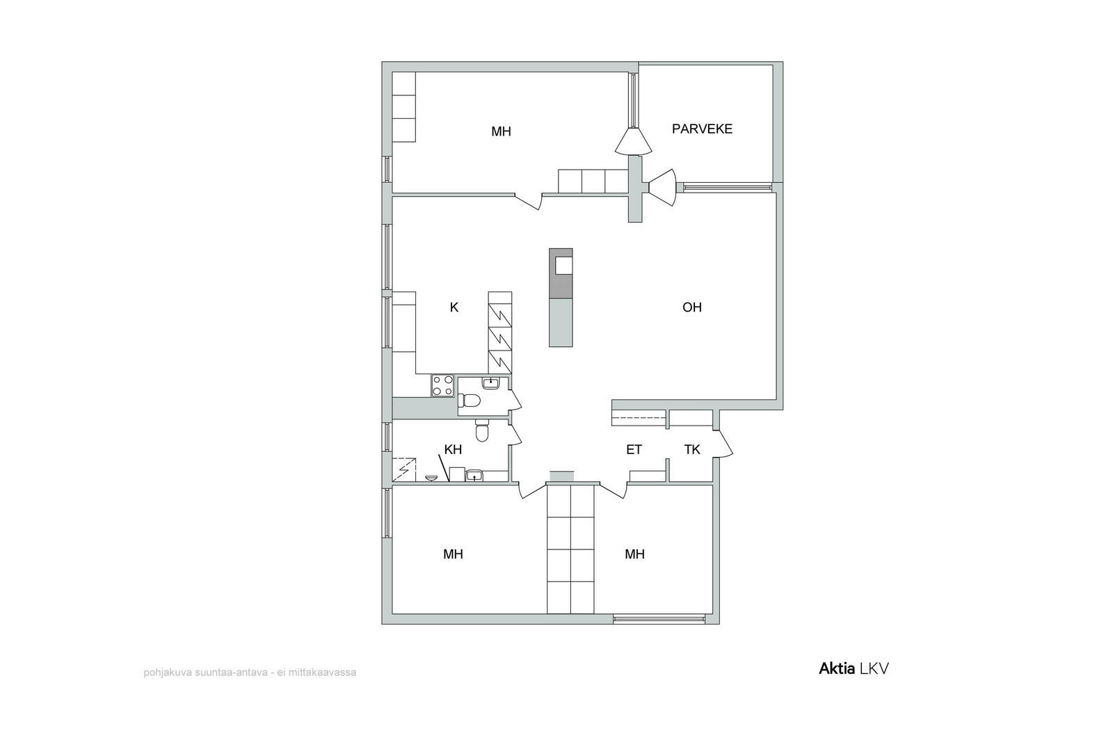
4h, avokeittiö, kph, lasitettu terassiparveke
Pinta-ala
102 m²
Myyntihinta
638 000,00 €
Velaton hinta
638 000,00 €
Sijainti
00280 Helsinki
Tyyppi
kerrostalo
Kerros
2 / 2
Kodikas ja valoisa koti ihanan Ruskeasuon sydämessä
Tervetuloa tutustumaan tähän viehättävään ja kodikkaaseen asuntoon loistavalla sijainnilla! Asunto sijaitsee rauhallisessa pienyhtiössä, aivan Ruskeasuon vehreän idyllin keskellä, kuitenkin vain kivenheiton päässä Mannerheimintien monipuolisista liikenneyhteyksistä.
Kauppa, koulut ja päiväkodit löytyvät aivan läheltä, ja muutaman minuutin kävelymatka vie sinut suoraan Keskuspuiston upeille ulkoilureiteille. Ruskeasuon siirtolapuutarha on naapurissa, joten ympäristö tarjoaa kauniita näkymiä ja viihtyisää yhteisöllisyyttä.
Itse asunto on hiljainen ja valoisa, ja sen ikkunoista tulvii valoa sekä näkymiä ympäröivään vehreyteen. Tilat ovat toimivat ja lämminhenkiset, ja pohjaratkaisu sopii erinomaisesti perheelle. Tunnelma on kodikas ja harmoninen, täällä on helppo viihtyä. Olohuoneessa tunnelmaa luo kaunis takka, jonka äärellä on ihana rentoutua viileinä iltoina.
Asunnossa on viilentävä ilmalämpöpumppu, joka tuo miellyttävää asumismukavuutta erityisesti kesäkuumalla. Lisäksi suuri lasitettu parveke avautuu suojaisalle sisäpihalle ja toimii kuin olohuoneen jatke, täydellinen paikka nauttia aamukahvista, rentoutua ilta-auringossa tai viettää aikaa perheen ja ystävien kanssa ympäri vuoden.
Yhtiö on hyvin hoidettu ja rakennus arkkitehtonisesti kaunis. Huopakatto on uusittu vuonna 2025, ikkunat vuonna 2024, käyttövesisaneeraus tehty 2017 ja viemärit sukitettu 2010, remonttihuolia ei siis ole tiedossa pitkään aikaan.
Asukkaiden käytössä on lisäksi hyvä yhtiön sauna ja vilvoittelutila sekä iso, vehreä takapiha, jossa on mukava viettää kesäpäiviä ja grillata ystävien kanssa.
Tämä koti yhdistää loistavan sijainnin, rauhallisen ympäristön ja toimivan asumisen, täydellinen paikka sinulle, joka arvostat sekä kaupunkielämän helppoutta että luonnon läheisyyttä.
Yhteydenotot: janina.erakangas@aktialkv.fi
tai 041 317 6316
