Sepänkatu 3-5

5h, avok, 2 x kph, wc, las.parveke

Pinta-ala

129 m²

Myyntihinta

990 000,00 €

Velaton hinta

990 000,00 €

Sijainti

00150 Helsinki

Tyyppi

kerrostalo

Kerros

3 / 8

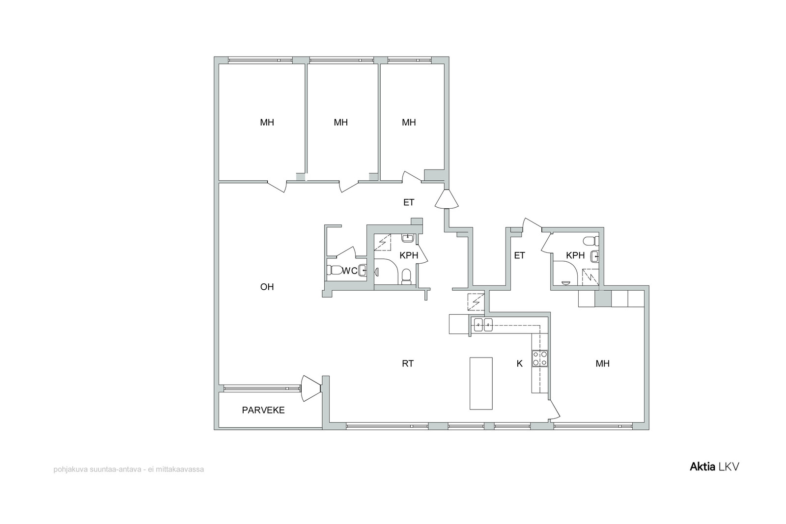
Tyylikäs kolmannen kerroksen läpitalon perheasunto puistonäkymin Sepänpuistoon.
Myynnissä on kaksi asuntoa (kolmella osakekirjalla): 1h+avok+kph sekä 4h+avok+kph+wc. Yksiön voi halutessaan yhdistää pääasuntoon keittiössä olevan oven kautta (tällä hetkellä ovi on suljettu).
Kolme makuuhuonetta sijoittuvat rauhallisen sisäpihan puolelle, ja niissä on puusepän mittatilaustyönä valmistamat säilytyskaapit. Neljäs makuuhuone (yksiö) avautuu Sepänpuistoon päin. Olohuone, ruokailutila ja keittiö muodostavat yhtenäisen, avaran ja ylellisen kokonaisuuden, joka kutsuu viihtymään. Huoneistossa on eteläparveke, jonne on mahdollista asentaa ilmalämpöpumppu.

Asunto sijaitsee erinomaisella paikalla koulujen, päiväkotien, palveluiden sekä Etelä-Helsingin upeiden ulkoilureittien läheisyydessä.

Keittiö ja kylpyhuone on remontoitu vuonna 2016
Perinteinen putkiremontti on tehty vuonna 2016

Hyvin hoidettu taloyhtiö, jossa on muun muassa uima-allas, saunaosasto ja pesutupa. Sijainti Viiskulman läheisyydessä tarjoaa ainutlaatuisen yhdistelmän kaupunkielämää ja meren läheisyyttä - kahvilat, ravintolat ja monipuoliset ulkoilureitit ovat aivan vieressä.

Tämä koti tarjoaa harvinaisen mahdollisuuden yhdistää tilava perheasuminen ja erillinen yksiö esimerkiksi työtilaksi, vierashuoneeksi tai sijoituskäyttöön.

Ensimmäiset yksityisesittelyt järjestetään kohteeseen 6.4-
Hyvää pääsiäistä - Glad påsk!
Tiedustelut ja esittelyt: charlotta.ahlstrom@aktialkv.fi

Perustiedot

Tyyppi
kerrostalo
Omistusmuoto
oma
Velaton hinta
990 000,00 €
Myyntihinta
990 000,00 €
Neliöhinta
7 674,42 €
Rakennusvuosi
1960
Kuvaus
5h, avok, 2 x kph, wc, las.parveke
Vapautuminen
sopimuksen mukaan
Tilat ja varustelu
hissi
Koko
5 h
Pinta-ala
129 m²
Muu pinta-ala
0
Kokonaispinta-ala
129 m²
Kerros
3
Yleiskunto
hyvä
Energialuokka
D2018

Kustannukset

Hoitovastike
612,76 €
Yhtiövastike yht.
612,76 €
Vesimaksu
22,00 €
Lisätietoa maksuista
Saunamaksu 2krt/kk 9€ Saunamaksu 4krt/kk 18€ Yhtiössä tehdään vesitasauslaskutus kaksi kertaa vuodessa. Yhtiökokous 2025: Päätettiin valtuuttaa hallitus keräämään kaksi ylimääräistä hoitovastiketta.

Tontti ja kaavoitus

Tontin pinta-ala
2 650 m²
Tontin omistus
oma

Kohteen kuvaus

Tontin pinta-ala
2 650 m²
Tontin omistus
oma
Muuta
hissi

Materiaalit, varusteet ja lämmitys

Rakennusmateriaali
kivi
Kattotyyppi
harja
Kate
pelti
Lämmitysjärjestelmä
kaukolämpö muu

Taloyhtiö

Taloyhtiön nimi
Asunto Oy Sepänkatu 3-5
Isännöinti
Oiva Isännöinti Arto Söderholm Bulevardi 3 B, 6. krs Puh 010 4116 700
Vastuu kiinteistön hoidosta
huoltoyhtiö
Autotalleja
18
Taloyhtiön tehdyt remontit
2023 Lämmöntalteenoton kehitysparannus 2022 Aurinkopaneelit 2021 Sepänkadun puoleisen vesikaton uusiminen 2019 Sisäpihan kunnostus 2018 Sepänkadun puoleiset istutukset, Hissien viilujen kunnostaminen 2017 Lukituksen uusiminen 2016 Perinteinen LVIs-saneeraus 2012 LVIS-hankesuunnittelu 2010 Pysty- ja pohjaviemärien huuhtelu, Ilmanvaihtokanavien puhdistus 2007 Porrashuoneiden ala-aulojen maalaus 2006 Pihanpuolen ikkunat, Julkisivu ja tomutusparvekkeet 2003 Katon kulkusiltojen uusiminen ja lumiesteiden asentaminen, Patteriventtilien, linjasulku- ja säätöventtiilien uusiminen 1997 Kadunpuolen ikkunat, parvekeovet ja julkisivun rappaus 1995 B-D porrashuonemaalaukset 1993 A porrashuoneen maalaus 1989 E porrashuone maalaus
Taloyhtiöön suunnitellut remontit
Pyydä korjaustarveselvitys välittäjältä.
Tontin omistus
oma

Keittiö

Seinämateriaali
maalattu
Lattiamateriaali
parketti

Pesutilat

Seinämateriaali
kaakeli
Lattiamateriaali
laatta

Kodinhoitohuone

Varustelu
lattiakaivo

WC:t

Lukumäärä
1
Seinämateriaali
kaakeli
Lattiamateriaali
laatta

Oleskelutilat

Seinämateriaali
maalattu
Lattiamateriaali
parketti

Makuuhuoneet

Lukumäärä
4
Lattiamateriaali
parketti

Palvelut ja liikenneyhteydet

Liikenneyhteydet
Erittäin hyvät!

Ota yhteyttä välittäjään

Jaa sivu

Jatka selailua