Pohjoinen Rautatiekatu 33

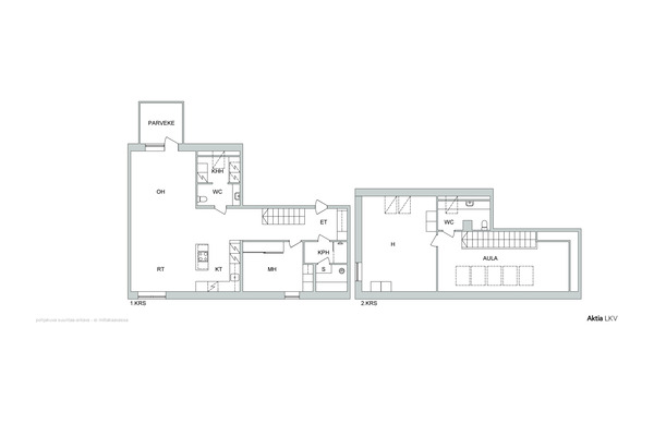
3h+avok+s+1wc/khh+1wc+parvi/ makuualkovi

Pinta-ala

107,5 m²

Myyntihinta

930 000,00 €

Velaton hinta

930 000,00 €

Sijainti

00100 Helsinki

Tyyppi

kerrostalo

Kerros

7 / 8

Upea kahden kerroksen valoisa, saunallinen, kattohuoneisto halutussa korttelissa Pohjoisen Rautatiekadun loppupäässä. Huoneistossa on avaruuden tuntua ja arkkitehtoonisen harkitut ratkaisut, upeita kattoikkunoita, lasitettu parveke ja arjen mukavuutta lisäävä vesikiertoinen lattialämmitys koko huoneistossa. Tästä huoneistosta löytyy myös viilennys huoneistokohtaisen jäähdytysjärjestelmän kautta kesähelteitä helpottamaan.
Huoneisto sijaitsee 7:ssä ja 8:ssa kerroksessa v. 2015 valmistuneessa taloyhtiössä. Tämän huoneiston ostajalla on optio yhden tai kahden autohallipaikan ostamiseen (erilliset osakkeet), ilman latausasemaa tai sähköauton latausaseman kanssa.
Pohjoinen Rautatiekatu on sijainniltaan erinomainen. Ydinkeskustan palvelut ovat kävelyetäisyydellä ja merellisen Töölön ranta reiteille pääsee ylittämällä Mechelininkadun. Lähialue tarjoaa urbaaniin ja moderniin asumiseen kaivattuja kahviloita, ravintoloita, kulttuuria ja erinomaiset liikenneyhteydet.

Myyntiä hoitaa/ Försäljningen sköts av:
Christoffer von Schantz 0503410195 / christoffer.schantz@aktialkv.fi

Häftig vindsbostad i två våningar i gott skick, med fina arkitektoniska lösningar, ljus och känsla av rymd. Läget är utmärkt i slutändan av Norra Järnvägsgatan på promenadavstånd från centrum. Bostadsaktiebolaget blev färdigställt år 2015. Bostaden har vattenburen golvvärme och i denna bostad också egen nedkylning med tanke på heta sommardagar.
Här har köparen en option att köpa en eller två bilhallsplatser (separata aktier), med eller utan färdig laddstation.

Här en bostad värd att bekanta sig med! Läget är havsnära med friluftsstråk som börjar ett stenkast ifrån. Här har du för det urbana boendet viktiga caféerna, restaurangerna, servicen och kulturutbudet allt helt nära.

Perustiedot

Tyyppi
kerrostalo
Omistusmuoto
oma
Velaton hinta
930 000,00 €
Myyntihinta
930 000,00 €
Neliöhinta
8 651,16 €
Rakennusvuosi
2015
Kuvaus
3h+avok+s+1wc/khh+1wc+parvi/ makuualkovi
Vapautuminen
sopimuksen mukaan
Tilat ja varustelu
kaapeli-tv, parveke, hissi, kuntotarkastusta ei ole tehty, kosteusmittausta ei ole tehty
Koko
4 h
Pinta-ala
107,5 m²
Muu pinta-ala
0
Kokonaispinta-ala
107,5 m²
Kerros
7
Yleiskunto
hyvä
Energialuokka
C2013

Kustannukset

Yhtiövastike yht.
580,50 €
Vesimaksu
27,00 €
Lisätietoa maksuista
Vesiennakkona maksetaan 27 euroa (1 kpl/hlö). Kylmä- ja lämminveden osalta on sitten vesitasaus: Kylmä 4,45 euroa/ m3 ja Lämmin 9,42 euroa/m3.

Tontti ja kaavoitus

Tontin pinta-ala
2 972 m²
Tontin omistus
oma

Kohteen kuvaus

Tontin pinta-ala
2 972 m²
Tontin omistus
oma
Muuta
kaapeli-tv, parveke, hissi, kuntotarkastusta ei ole tehty, kosteusmittausta ei ole tehty

Materiaalit, varusteet ja lämmitys

Rakennusmateriaali
betoni
Kattotyyppi
Harjakatto
Kate
Pelti
Lämmitysjärjestelmä
kaukolämpö

Taloyhtiö

Taloyhtiön nimi
Asunto Oy Töölön Estradi, Helsinki
Isännöinti
Emännöintitoimisto Aamu palvelumestati@aamu.io Ilkka Laitinen +358304108615
Taloyhtiön tehdyt remontit
2021 Kiinteistökatselmus 29.10.2021 2024 Parvekekattojen korjaus urakoitsijan vuositakuukorjauksena 2025-2026 Huoneistojen palovaroittimien uusiminen 2026 Lukituksen uusiminen (Korjausohjelmassa laitettu v. 2027)
Taloyhtiöön suunnitellut remontit
Kunnossapitotarveselvityksen mukaan: 2025 Kiinteistön kuntoarvio ja määrkätilakartoitus; Kiinteistön 10-vuotistarkastus; Takuu- ja virhevastuukorjauksien teettäminen rakennuttajalla 2025-2026 Huoneistojen palovaroittimien uusiminen 2027 Lukituksen uudistaminen (Uudet avaimet annettu jo helmikuussa 2026) 2025 -2030 Jakson aikana toisen talosaunan löylyhuoneen puuosien uusinta 2025-2030 Tavanomaisia vuosihuoltoja ja -korjauksia (Yhtiö valmistunut v. 2015)
Tontin omistus
oma

Keittiö

Seinämateriaali
maalattu
Lattiamateriaali
laatta
Varustelu
astianpesukone kiinteät valaisimet liesituuletin / hormi
Liesi
induktio erillisuuni
Jääkaappi
jääkaappi pakastin viinikaappi

Pesutilat

Seinämateriaali
kaakeli
Lattiamateriaali
laatta
Varustelu
lattialämmitys kiinteät valaisimet

Kodinhoitohuone

Seinämateriaali
maalattu
Lattiamateriaali
laatta
Varustelu
lattialämmitys pöytätaso

WC:t

Lukumäärä
2
Seinämateriaali
kaakeli
Lattiamateriaali
laatta

Oleskelutilat

Seinämateriaali
maalattu
Lattiamateriaali
parketti

Makuuhuoneet

Lukumäärä
2
Lattiamateriaali
parketti

Palvelut ja liikenneyhteydet

Palvelut
K-kauppa vastapäätä Pohjoisella Rautatiekadulla (Lapinlahdenkadun puolella katua). Helsingin keskustakirjasto Oodi kansalaistorilla ja terveysasema Kivelän sairaalassa.
Päivähoito
Alueella
Koulu
Lähialueella
Liikenneyhteydet
Erinomaiset

Ota yhteyttä välittäjään

Jaa sivu

Jatka selailua