Metsänneidontie 7

Oh,k,4mh, yläaula, khh, ph,s

Pinta-ala

121 m²

Myyntihinta

295 000,00 €

Velaton hinta

295 000,00 €

Sijainti

02400 Kirkkonummi

Tyyppi

omakotitalo

Kerros

1-1,5 / 1.5

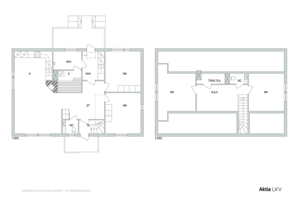
Laajakallion pientalovaltaisella alueella vuonna 1998 rakennettu kivanoloinen 1,5 kerroksinen talo. Toimiva pohjaratkaisu ja hyvänkokoiset huoneet. Alakerrassa iso sisääntuloaula, kaksi makuuhuonetta, keittiö josta avautuu olohuone. Kodinhoitohuone, pesuhuone, sauna ja erillinen wc. Yläkerrassa yläaula ja kaksi makuuhuonetta sekä erillinen wc.

Pihapiirissä autotalli, liiteri ja leikkimökki. Monimuotoinen vehreä tontti.

Kävelymatkan etäisyydellä olet Tolsan juna-asemalla josta noin puolessa tunnissa olet Helsingin keskustassa. Linja-auto pysäkki on noin 500 metrin etäisyydellä.

Alueella alakoulu ja päiväkoteja.

Hyvät ulkoilumaastot sekä marja- ja sienimaastot lähietäisyydellä.

Teitä palvelee/Ni betjänas av Gitty Nurmi 050 314 1560 gitty.nurmi@aktialkv.fi

Perustiedot

Tyyppi
omakotitalo
Velaton hinta
295 000,00 €
Myyntihinta
295 000,00 €
Neliöhinta
2 137,68 €
Rakennusvuosi
1998
Kuvaus
Oh,k,4mh, yläaula, khh, ph,s
Vapautuminen
sopimuksen mukaan
Tilat ja varustelu
antenni, tie perille, oma sauna, sähköliittymä siirtyy, kuntotarkastus tehty, kosteusmittaus tehty
Koko
5 h
Pinta-ala
121 m²
Muu pinta-ala
17 m²
Kokonaispinta-ala
138 m²
Kerros
1-1,5
Yleiskunto
tyydyttävä
Energialuokka
D2018

Kustannukset

Lisätietoa maksuista
Kaudella 8/24-8/25 noin 10 604 kWh (taloudessa 2 henkilöä)

Tontti ja kaavoitus

Tontin pinta-ala
0,1 ha
Tontin omistus
oma
Tontin tyyppi
Tasamaatontti
Lisätietoa kaavoituksesta
Laajakallio Itärinne rakennuskaava

Kohteen kuvaus

Tontin pinta-ala
0,1 ha
Kiinteistötunnus
257-420-1-23
Tontin omistus
oma
Muuta
antenni, tie perille, oma sauna, sähköliittymä siirtyy, kuntotarkastus tehty, kosteusmittaus tehty

Materiaalit, varusteet ja lämmitys

Rakennusmateriaali
puu
Kattotyyppi
Harja
Kate
pelti
Lämmitysjärjestelmä
sähkö

Taloyhtiö

Tontin omistus
oma

Makuuhuoneet

Lukumäärä
2

Palvelut ja liikenneyhteydet

Palvelut
Kirkkonummen keskustaan noin 3,3-3,5 km
Päivähoito
Laajakalliossa lähin
Koulu
Laajakalliossa, Jolkbyssä, Jokiniityn oppimiskeskus, ja Wigge
Liikenneyhteydet
Hyvät

Ota yhteyttä välittäjään

Jaa sivu

Jatka selailua