Kalliotie 9

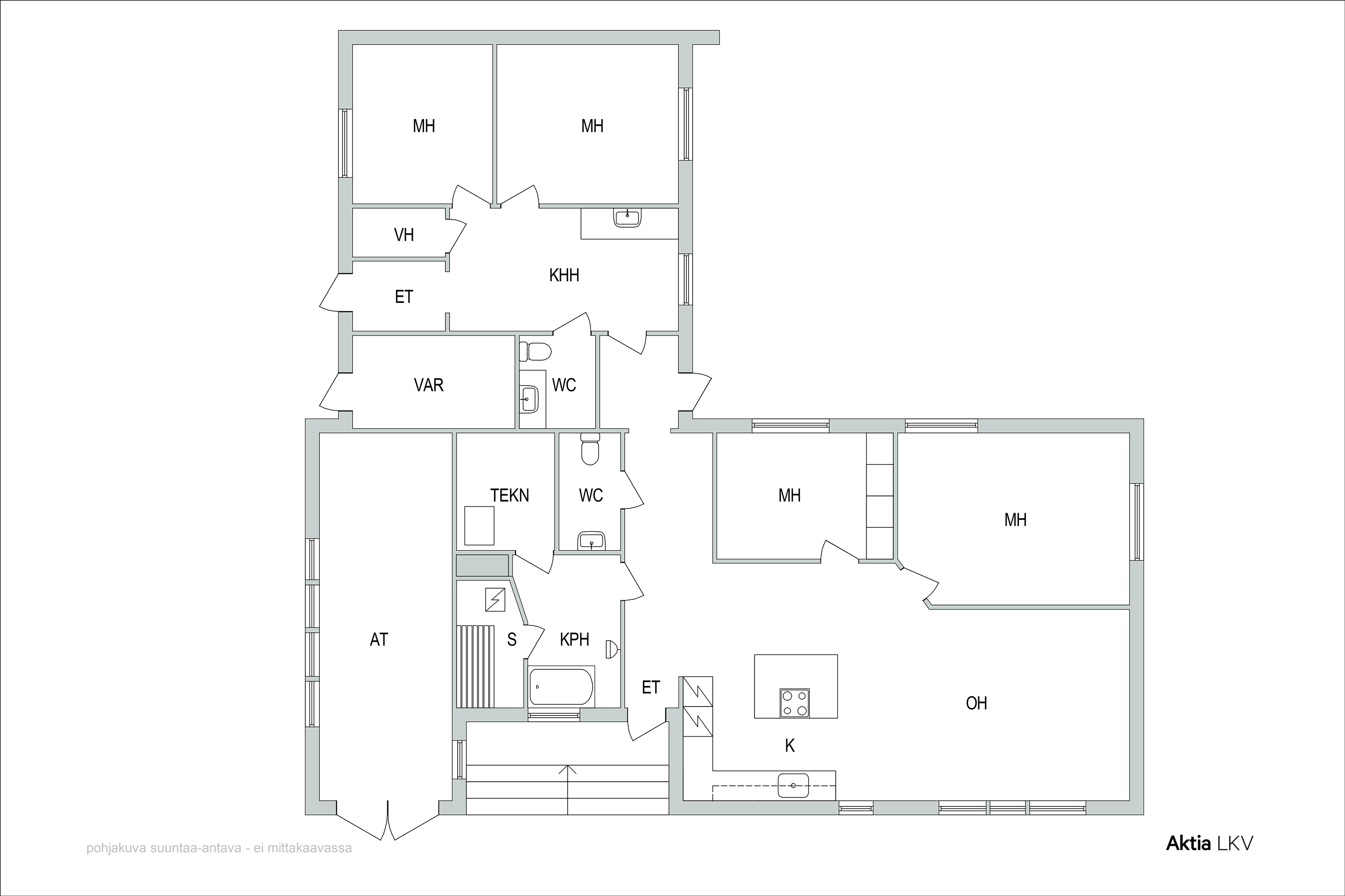
5h+k+kph+s+wc+khh

Pinta-ala

162 m²

Myyntihinta

174 000,00 €

Velaton hinta

174 000,00 €

Sijainti

68570 Luoto

Tyyppi

omakotitalo

Kerros

1 / 1

Tervetuloa tähän hyvin huollettuun omakotitaloon, joka on läpikäynyt laajoja remontteja ja tarjoaa tänä päivänä todella viihtyisän kodin. Täällä on avarat ja sosiaaliset tilat, jotka kutsuvat niin arkeen kuin yhdessäoloon.

Kodissa on tyylikäs keittiö, kaunis kylpyhuone kylpyammeella sekä mukava sauna. Talon pohjaratkaisu on suunniteltu niin, että arki sujuu vaivattomasti, ja hyvin ajateltu layout luo luonnollisen kokoontumispaikan kodin keskelle.

Vuosien varrella on tehty useita tärkeitä parannuksia, muun muassa:

Pannu uusittu 2007
Pellettijärjestelmä asennettu 2017
Keittiö remontoitu 2015
Kylpyhuone remontoitu 2017
Paneelit ja lisäeristys uusittu 2020
Rännit ja putket uusittu 2020
Salaojitus tehty 2020

Talo sijaitsee omalla, reilun 1660 m² tontilla, mikä tarjoaa runsaasti tilaa niin leikkiin, puutarhaharrastuksiin kuin rentoutumiseen.

Sijainti on erittäin suosittu, lähellä päiväkoteja, kouluja ja lähikauppaa. Alueella on myös savustamo, ravintola/kahvila sekä uimaranta – täydellistä arkeen ja vapaa-aikaan. Pietarsaaren keskusta on kätevästi saavutettavissa.

Tässä kodissa on paljon jo tehty – sinun tarvitsee vain muuttaa sisään ja nauttia!

***

Välkommen till detta välskötta egnahemshus som genomgått omfattande renoveringar och idag erbjuder ett riktigt trivsamt hem att flytta in i. Här möts du av öppna och sociala ytor som bjuder in till både vardagsliv och umgänge.

Hemmet har ett stilrent kök, ett snyggt badrum med badkar samt en fin bastu. Huset är välplanerat och genomtänkt för att få vardagen att fungera smidigt.

Under åren har flera viktiga förbättringar gjorts, bland annat:

Pannan förnyats 2007
Pelletsystem installerat 2017
Kök renoverat 2015
Badrum renoverat 2017
Panel samt tilläggsisolering 2020
Rännor och rör förnyade 2020
Dränering utförd 2020

Huset står på en rymlig egen tomt om 1660 m², vilket ger gott om utrymme för både lek, odling och avkoppling.

Läget är mycket omtyckt med närhet till daghem, skolor och närbutik. I området finns även fiskrökeri, restaurang/café samt simstrand – perfekt för både vardag och fritid. Jakobstads centrum nås dessutom på bekvämt avstånd.

Här får du ett hem där mycket redan är gjort – det är bara att flytta in och trivas!

Robin Holländer
robin.hollander@aktialkv.fi
041 463 0532

Perustiedot

Tyyppi
omakotitalo
Omistusmuoto
oma
Velaton hinta
174 000,00 €
Myyntihinta
174 000,00 €
Neliöhinta
766,52 €
Rakennusvuosi
1972
Kuvaus
5h+k+kph+s+wc+khh
Vapautuminen
heti
Tilat ja varustelu
tie perille, oma sauna, sähköliittymä siirtyy
Koko
6 h ja enemmän
Pinta-ala
162 m²
Muu pinta-ala
65 m²
Kokonaispinta-ala
227 m²
Kerros
1
Yleiskunto
hyvä
Energialuokka
Ei lain edellyttämä energiatodistus

Kustannukset

Lisätietoa maksuista
Sähkö noin 5.000kWh/vuosi Pelletti noin 1980€/vuosi

Tontti ja kaavoitus

Tontin pinta-ala
1 660 m²
Tontin omistus
oma
Tontin tyyppi
Tasamaatontti
Lisätietoa kaavoituksesta
Luodon kunta

Kohteen kuvaus

Tontin pinta-ala
1 660 m²
Kiinteistötunnus
440-402-19-2
Tontin omistus
oma
Muuta
tie perille, oma sauna, sähköliittymä siirtyy

Materiaalit, varusteet ja lämmitys

Rakennusmateriaali
puu
Kattotyyppi
Harja
Kate
Pelti
Lämmitysjärjestelmä
puu Ilmalämpöpumppu muu
Takka
takka

Taloyhtiö

Tontin omistus
oma

Keittiö

Seinämateriaali
maalattu tapetti
Lattiamateriaali
muovi
Varustelu
liesituuletin astianpesukone
Liesi
induktio erillisuuni liesitaso
Jääkaappi
jääkaappi pakastekaappi

Pesutilat

Seinämateriaali
kaakeli
Lattiamateriaali
muovi
Varustelu
lattialämmitys wc-istuin suihku

Kodinhoitohuone

Seinämateriaali
maalattu
Lattiamateriaali
muovi
Varustelu
pesukoneliitäntä

WC:t

Seinämateriaali
puu muu
Lattiamateriaali
muovi

Oleskelutilat

Seinämateriaali
maalattu
Lattiamateriaali
muovi

Makuuhuoneet

Lukumäärä
4
Lattiamateriaali
muovi

Muut tilat

Muut tilat
Eteinen Tuulikaappi Pannuhuone

Ota yhteyttä välittäjään

Jaa sivu

Jatka selailua