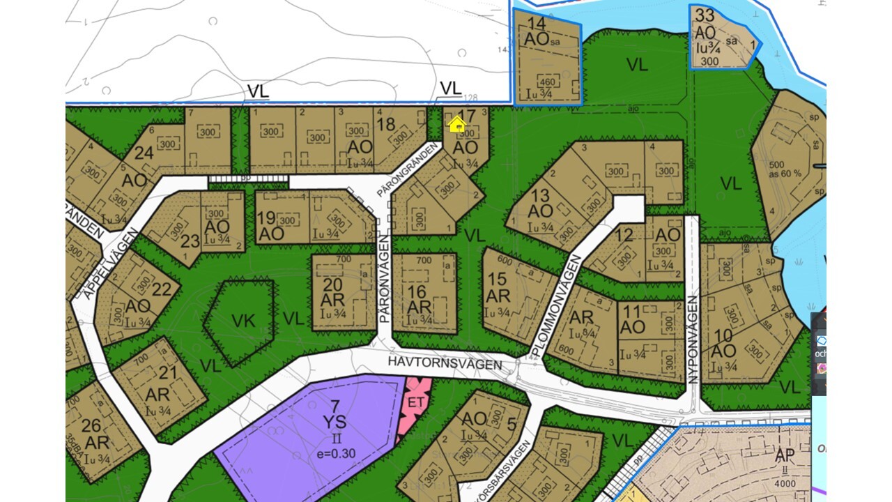
Pärongränden 5

Tontti

Pinta-ala

1 650 m²

Myyntihinta

44 000,00 €

Velaton hinta

44 000,00 €

Sijainti

68570 Luoto

Tyyppi

omakotitalotontti

Tontin omistus

oma

Haaveiletko uudesta kodista viihtyisällä ja rauhallisella alueella? Nyt sinulla on mahdollisuus hankkia hyvällä paikalla sijaitseva noin 1650 m² tontti suositulta Storströmmens alueelta! Rakennusoikeus on 300 m² omakotitalolle, ja kaikki tarvittavat liittymät ovat valmiina tontin rajalla, joten rakentaminen on helppo aloittaa.

Alue on lapsiperheiden suosiossa, ja kaikki arjen palvelut löytyvät läheltä. Päiväkoti, koulu, uimaranta, lähikauppa ja ravintola ovat vain lyhyen matkan päässä, ja Pietarsaaren keskusta sijaitsee vain muutaman kilometrin päässä.

Tässä on loistava tilaisuus rakentaa koti rauhalliseen ja luonnonläheiseen ympäristöön – täydellinen valinta perheelle!

Ota yhteyttä ja kysy lisää!

***

Bygg ditt drömhem i populära Storströmmen, Larsmo!

Drömmer du om att bygga nytt i ett tryggt och trivsamt område? Nu finns möjligheten att förvärva en välbelägen tomt på ca 1650 m² i eftertraktade Storströmmen! Med en byggrätt på 300 m² för egnahemshus och anslutningar klara vid tomtgränsen är det enkelt att komma igång med byggprojektet.

Storströmmen är ett familjevänligt område med närhet till allt du behöver i vardagen. Här bor du med daghem, skola, simstrand, närbutik och restaurang inom bekvämt avstånd, samtidigt som Jakobstads centrum bara ligger några kilometer bort.

En fantastisk möjlighet att skapa ett hem i en lugn och naturnära miljö – perfekt för barnfamiljer!

Kontakta oss för mer information.

Perustiedot

Tyyppi
omakotitalotontti
Omistusmuoto
oma
Velaton hinta
44 000,00 €
Myyntihinta
44 000,00 €
Kuvaus
Tontti
Vapautuminen
heti
Tilat ja varustelu
tie perille
Koko
ei luokiteltu

Tontti ja kaavoitus

Tontin pinta-ala
1 650 m²
Tontin omistus
oma
Tontin tyyppi
Tasamaatontti

Kohteen kuvaus

Tontin pinta-ala
1 650 m²
Kiinteistötunnus
440-402-4-136
Tontin omistus
oma
Muuta
tie perille

Taloyhtiö

Tontin omistus
oma

Ota yhteyttä välittäjään

Jaa sivu

Jatka selailua