Härmälänkaari 40

6h+k+rt+2*wc+khh+kph+s+autokatos/talli+v+liiteri+maakellari+pergola

Pinta-ala

143,5 m²

Myyntihinta

258 000,00 €

Velaton hinta

258 000,00 €

Sijainti

21250 Masku

Tyyppi

omakotitalo

Kerros

2 / 2

Iso omakotitalo kalliopohjaisella rinnetontilla Maskun Niemenkulmalla.

Tämä 1997 valmistunut kokonaisuus tarjoaa upeat puitteet asumiselle. 6920m2 etelärinnetontti sijaitsee yksityistien päässä, omassa rauhassa. Pihapiiri on monimuotoinen ja sieltä löytyy kaikki asumiseen tarvittava valmiina.

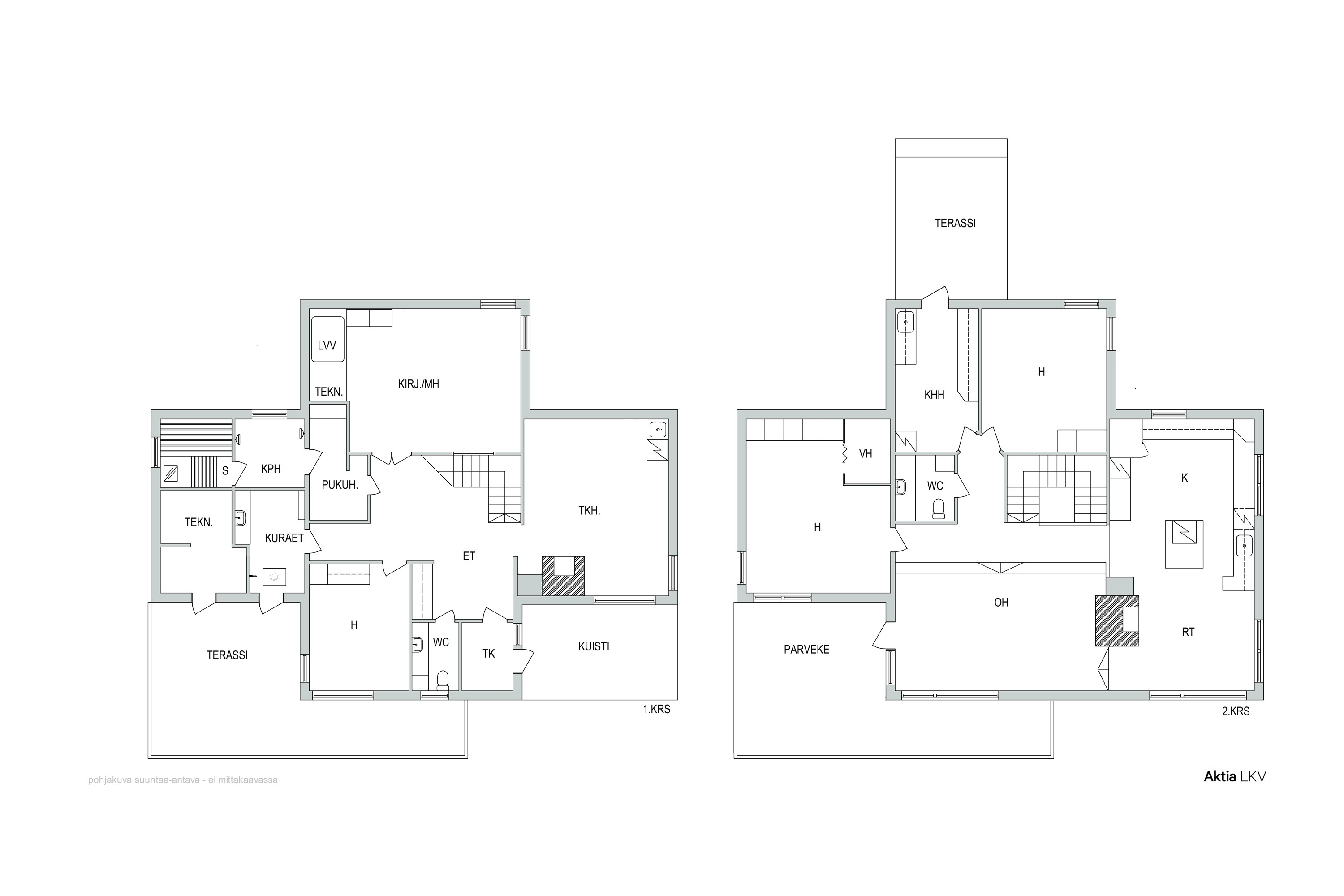
Asuintilat ovat kahdessa kerroksessa. Alakerrassa on tilava aula, takkahuone, makuuhuone, kirjasto/makuuhuone, wc ja saunatilat. Alaterassilta on lisäksi erillinen sisäänkäynti kuraeteiseen. Yläkerrassa on 2 makuuhuonetta, tilava keittiö, ruokailutila, olohuone, kodinhoitohuone ja wc. Viistokatto yläikkunoineen tuo avaruutta ja luonnonvaloa tilavaan olohuoneeseen, josta on käynti suurelle aurinkoiselle yläterassille. Kodinhoitohuoneesta on kulku takapihan terassille, jonne pääsee myös portaita pitkin talon sivusta.

Talo kokonaisuutena on toteutettu yksityiskohdat huomioiden ja moniin materiaaleihin, rakenneratkaisuihin ja asumismukavuuteen on panostettu kestävällä ja ekologisella tavalla. Talo on harkkorakenteinen (Siporex) ja tekniset rakenneratkaisut on suunniteltu laadukkaasti ja harkiten. Ilmanvaihto on toteuttu koneellisesti lämmöntalteenotolla ja koko talossa on vesikiertoinen lattialämmitys. Lämpö tuotetaan puukattilalla/sähköllä. Järjestelmä soveltuu joustavasti myös muihin lämmöntuottoratkaisuihin. Lisälämmönlähteinä on yläkerran leivinuuni ja alakerran takka. Ilmalämpöpumppu löytyy talosta ja autotallista.

Harkkorakenteissa talousrakennuksessa on autokatos, talli ja varasto omalla sisäänkäynnillä. Lisäksi pihapiiristä löytyy maakellari, lampi, pergola/kesäkeittiö, leikkimökki ja ulkomitoiltaan n. 45m2 liiteri.

Kiinteistölle kuuluu lisäksi venevalkama-/laiturioikeus Härmälänkylän laituriin, joka on kilometrin päässä talolta. Laituripaikan käyttöönotto edellyttää liittymismaksun ja vuosimaksun. Laituri sijaitsee lahdenpoukamassa Härmälänrotkon vieressä. Härmälänrotko on tutustumisen arvoinen ja upea luonnonmuistomerkki/näköalapaikka.

Sovi oma esittelyaikasi!

Yhteydenotot:
Heikki Harinen
Kiinteistövälittäjä, LKV, LVV
p. 041-433 8328,
heikki.harinen@aktialkv.fi

Perustiedot

Tyyppi
omakotitalo
Velaton hinta
258 000,00 €
Myyntihinta
258 000,00 €
Neliöhinta
1 354,33 €
Rakennusvuosi
1997
Kuvaus
6h+k+rt+2*wc+khh+kph+s+autokatos/talli+v+liiteri+maakellari+pergola
Vapautuminen
sopimuksen mukaan
Tilat ja varustelu
antenni, tie perille, oma sauna, sähköliittymä siirtyy, kulku suoraan ulos, kuntotarkastus tehty, tien käyttöön liittyvä oikeus, kosteusmittaus tehty
Koko
6 h ja enemmän
Pinta-ala
143,5 m²
Muu pinta-ala
47 m²
Kokonaispinta-ala
190,5 m²
Kerros
2
Yleiskunto
tyydyttävä
Energialuokka
D2018

Kustannukset

Lisätietoa maksuista
Sähkönkulutus n. 12.000kwh/v (puukattila käytössä), pelkkä sähkölämmitys 22.600kWh/v. Vesi kulutuksen mukaan, LSJH:n maksut: sakokaivotyhjennys 1krt/v (n. 231€), Sekajäte riippuen astian koosta n. 10€/krt.

Tontti ja kaavoitus

Lisätietoa tontista
Iso, kalliopohjainen rinnetontti etelään/lounaaseen.
Tontin pinta-ala
6 920 m²
Tontin omistus
oma
Tontin tyyppi
Rinnetontti
Lisätietoa kaavoituksesta
Maskun kunta. Yleiskaava (481-5) Voimaantulopvm: 14.12.2010 MMLm/25153/423/2010

Kohteen kuvaus

Tontin pinta-ala
6 920 m²
Kiinteistötunnus
48140600020037
Tontin omistus
oma
Muuta
antenni, tie perille, oma sauna, sähköliittymä siirtyy, kulku suoraan ulos, kuntotarkastus tehty, tien käyttöön liittyvä oikeus, kosteusmittaus tehty

Materiaalit, varusteet ja lämmitys

Rakennusmateriaali
betoni
Kattotyyppi
Harja
Kate
Tiili
Lämmitysjärjestelmä
puu sähkö Ilmalämpöpumppu
Takka
takka hormi olemassa

Taloyhtiö

Tontin omistus
oma

Keittiö

Seinämateriaali
maalattu
Lattiamateriaali
laatta
Varustelu
astianpesukone liesituuletin / hormi
Liesi
leivinuuni induktio erillisuuni
Jääkaappi
muu jenkkikaappi

Pesutilat

Seinämateriaali
kaakeli
Lattiamateriaali
laatta
Varustelu
lattialämmitys suihku

Kodinhoitohuone

Seinämateriaali
maalattu osalaatoitus
Lattiamateriaali
laatta
Varustelu
pesukoneliitäntä pesuallas pöytätaso

WC:t

Lukumäärä
2
Seinämateriaali
muu
Lattiamateriaali
laatta

Oleskelutilat

Seinämateriaali
maalattu
Lattiamateriaali
parketti

Makuuhuoneet

Lukumäärä
4
Lattiamateriaali
muovi parketti

Muut tilat

Muut tilat
Ruokailutila Eteinen Tuulikaappi Pannuhuone Aula Takkahuone Kirjasto Terassi Pukuhuone

Ota yhteyttä välittäjään

Jaa sivu

Jatka selailua