Törnintie 3
3 h, k, s
Pinta-ala
80 m²
Myyntihinta
139 000,00 €
Velaton hinta
139 000,00 €
Sijainti
21530 Paimio
Tyyppi
rivitalo
Kerros
1 / 1
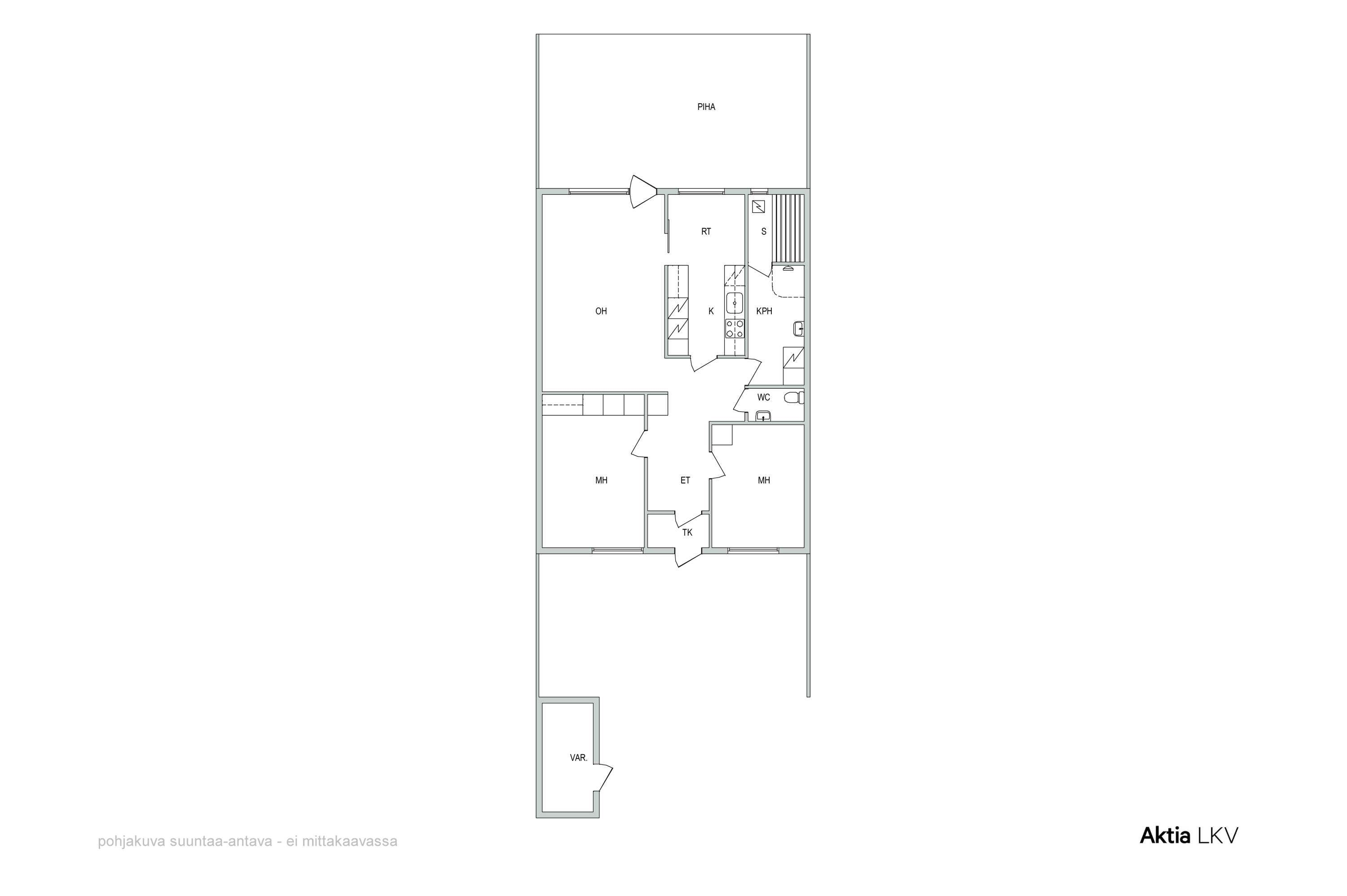
Hyväkuntoinen rivitalokoti rauhallisella Kriivarin alueella.
Tässä yksitasoisessa kodissa yhdistyvät tilava pohjaratkaisu, avarat oleskelutilat ja viihtyisä piha-alue.
Huoneisto tarjoaa sekä reilun etupihan että suojaisan takapihan, jossa on iso terassi ja portti – täydellinen paikka rentoutumiseen ja yhdessäoloon.
Asunnossa on tehty runsaasti remontteja 2020-luvulla, mm.:
Eteinen ja olohuone (2023)
Makuuhuoneen ja keittiön lattiat (2023)
Keittiön ovet, tasot ja osa koneista (2024)
Kylpyhuone (2023) ja erillinen wc (2024)
Sälekaihtimet (2019), kylpyhuoneen termostaatit (2025)
Pihan kunnostukset: laatoitus, aidat, terassi ja laudoitukset (2020)
Arkea helpottaa oma piha-autopaikka.
Kriivarin uusi koulu sijaitsee aivan lähettyvillä ja alue on tunnettu lapsiystävällisyydestään sekä rauhallisesta asuinympäristöstä.
Esittelyt ja lisätiedot:
Johanna Pulkkinen
puh. 040 3002 305 tai
johanna.pulkkinen@aktialkv.fi
