Alppivuokko 4

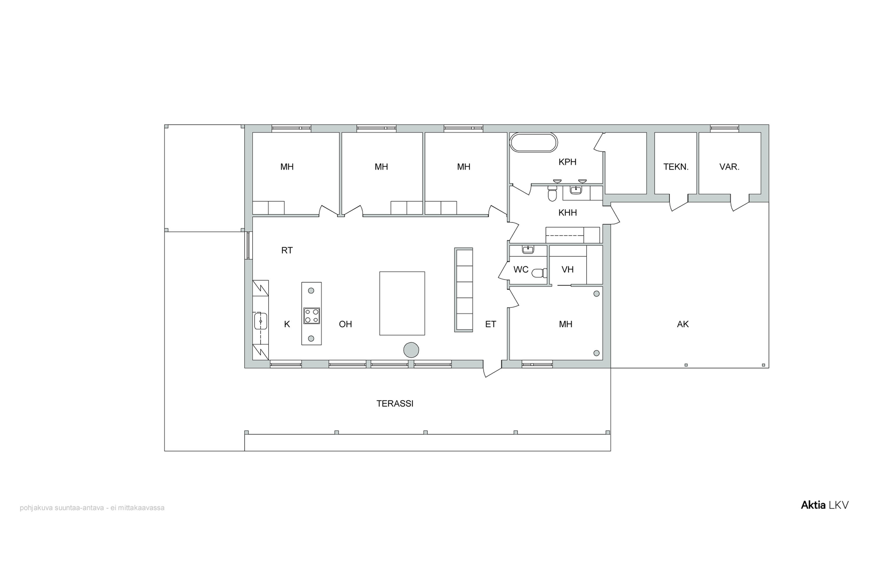
4 mk, oh, avok, kph, khh, s, wc x 2, vh, ak

Pinta-ala

119 m²

Myyntihinta

353 000,00 €

Velaton hinta

353 000,00 €

Sijainti

21530 Paimio

Tyyppi

omakotitalo

Kerros

1 / 1

Pakurlan metsässä sijaitseva yksitasoinen omakotitalo joka kutsuu uutta lapsiperhettä.

Tässä tyylikästä asumista. Runsaasti avaraa ilmavaa tilaa ja isot terassit.

Asunnossa neljä makuuhuonetta, vaatehuone, avoin olohuone ja avokeittiö sekä toimivat kylpyhuone, kodinhoitohuone, sauna ja erillinen wc. Kodinhoitohuoneessa toinen wc-istuin helpottaa arkea ja tassuamme tuo arjen luxusta kylpyhuoneessa.

Kiinteistössä vesikiertoinen lattialämmitys vesi-ilmalämpöpumpulla ja lämmöntalteenotto. Linnatulen varaava kiertoilmatakka olohuoneen ja avokeittiön yhteydessä luo lämpöä ja tunnelmaa. Talossa myös ilmalämpöpumppu.

Kiinteistössä erikseen tilattu Carunan ethemetliittymällä varustettu sähkömittari. Vesi-ilmalämpökierto on toteutettu kahdella alueella. Asuintilat ja kosteat tilat omilla säädöillä ja kierroilla joita voi ohjata puhelinen sovellutuksella.

Lounean valokuitu ja 22kW sähköauton latauspiste Easee Charge Up.

Etupihalla kahden auton autokatos ja varasto.

Rauhallinen pientaloalue jossa paljon lapsiperheitä ja lenkkipolku vieressä.

Kiinteistössä kaupungin vuokratontilla joka halutessaan mahdollista lunastaa omaksi. Vuosivuokra 646,50 €/v.

Tässä kodissa modernia asumista ja tyylikkyyttä. Tähän ihastuu heti!


Esittelyt ja tiedustelut:

Johanna Pulkkinen

040-3002 305 tai
johanna.pulkkinen@aktialkv.fi

Perustiedot

Tyyppi
omakotitalo
Omistusmuoto
oma
Velaton hinta
353 000,00 €
Myyntihinta
353 000,00 €
Neliöhinta
2 385,14 €
Rakennusvuosi
2022
Kuvaus
4 mk, oh, avok, kph, khh, s, wc x 2, vh, ak
Vapautuminen
Sopimuksen mukaan/1-2 kk kaupasta
Tilat ja varustelu
tie perille, oma sauna, sähköliittymä siirtyy, kulku suoraan ulos
Koko
5 h
Pinta-ala
119 m²
Muu pinta-ala
29 m²
Kokonaispinta-ala
148 m²
Kerros
1
Yleiskunto
hyvä
Energialuokka
B2018

Kustannukset

Lisätietoa maksuista
Sähkö ja vesi kulutuksen mukaan. Varainsiirtovero 3 % kauppasummasta. Sähkönkulutus nykyisellä omistajalla n. 10 000 kWh/v. Tontin vuosivuokra 646,50 €/v.

Tontti ja kaavoitus

Lisätietoa tontista
Paimion kaupunki
Tontin pinta-ala
862 m²
Tontin omistus
vuokrattu
Tontin tyyppi
Tasamaatontti
Lisätietoa kaavoituksesta
Paimion kaupunki

Kohteen kuvaus

Tontin pinta-ala
862 m²
Kiinteistötunnus
577-469-3-200-L1
Tontin omistus
vuokrattu
Muuta
tie perille, oma sauna, sähköliittymä siirtyy, kulku suoraan ulos

Materiaalit, varusteet ja lämmitys

Rakennusmateriaali
puu
Kattotyyppi
Osittainen pulpettikatto
Kate
Peltikate
Lämmitysjärjestelmä
ilmavesilämpöpumppu
Takka
takka

Taloyhtiö

Tontin omistus
vuokrattu

Keittiö

Seinämateriaali
maalattu muu
Lattiamateriaali
vinyyli
Varustelu
liesituuletin mikroaaltouuni astianpesukone
Liesi
integroitu induktio erillisuuni
Jääkaappi
jääkaappi

Pesutilat

Seinämateriaali
kaakeli
Lattiamateriaali
laatta
Varustelu
kylpyamme lattialämmitys suihku

Kodinhoitohuone

Lattiamateriaali
laatta
Varustelu
pesukoneliitäntä pesuallas lattialämmitys lattiakaivo lastenhoitopöytä/taso pyykkikaapit pöytätaso

WC:t

Lukumäärä
2
Seinämateriaali
kaakeli
Lattiamateriaali
laatta

Oleskelutilat

Seinämateriaali
maalattu
Lattiamateriaali
vinyyli

Makuuhuoneet

Lukumäärä
4
Lattiamateriaali
vinyyli

Muut tilat

Muut tilat
Ruokailutila Eteinen Tuulikaappi Terassi

Palvelut ja liikenneyhteydet

Palvelut
Paimion keskustan palvelut n. 1 km.
Koulu
Vistan ja Kriivarin koulu n. 1 km.

Ota yhteyttä välittäjään

Jaa sivu

Jatka selailua