Pohjoisnummikatu 35A

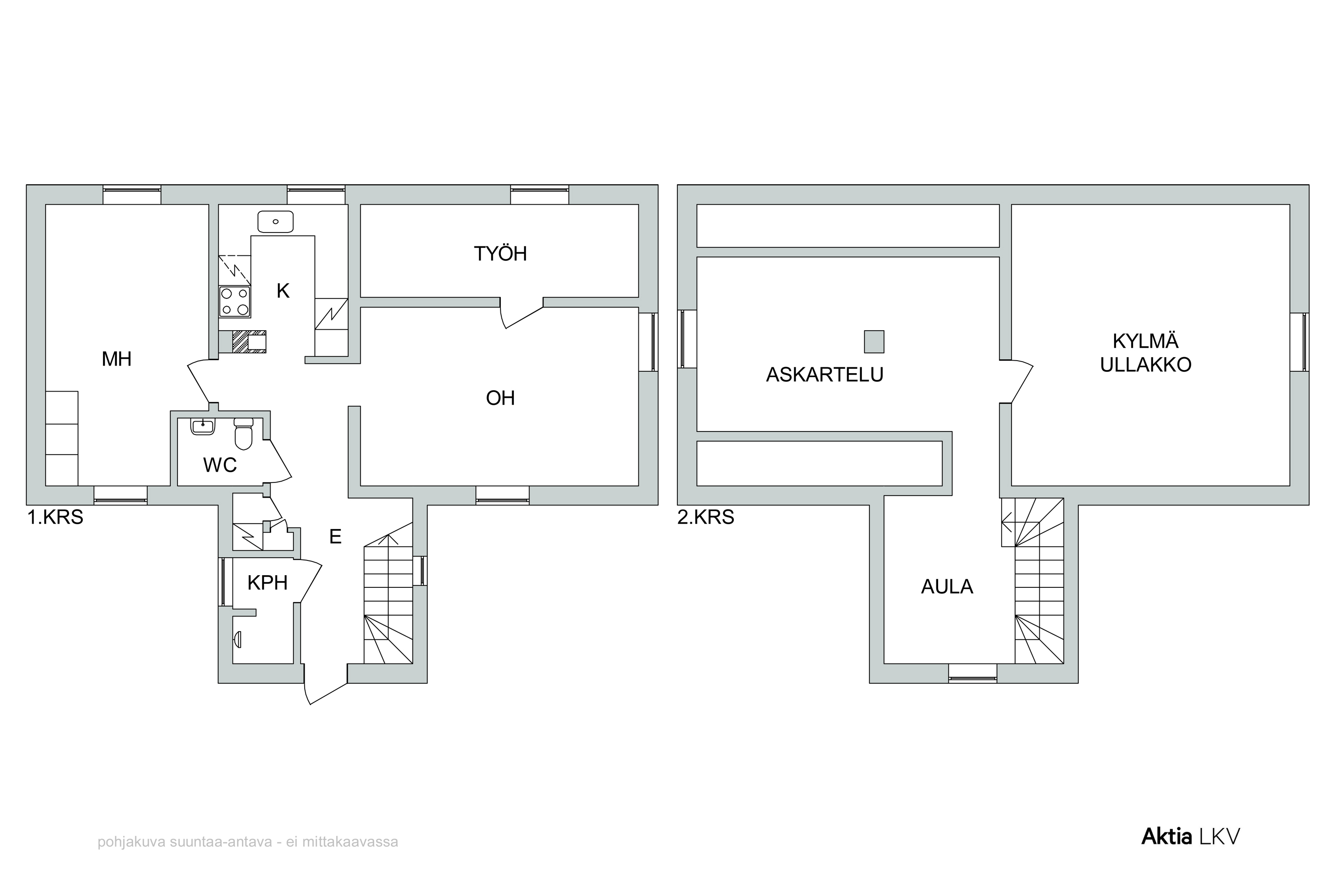
3h k kph wc + sisustettu vintti

Pinta-ala

80 m²

Myyntihinta

119 000,00 €

Velaton hinta

119 000,00 €

Sijainti

68600 Pietarsaari

Tyyppi

omakotitalo

Tervetuloa tutustumaan tähän viehättävään keltaiseen taloon Skatassa, kotiin, joka huokuu lämpöä ja kutsuu viihtymään.

Vuosien varrella talossa on tehty mittavia remontteja: mm. kattotiilet on uusittu, käyttövesi- ja viemäriputket on uusittu tai sukitettu, keittiö, kylpyhuone ja wc on remontoitu, ja pinnat on huolellisesti uudistettu. Vuonna 2018 ullakko on muutettu viihtyisäksi oleskelutilaksi, jossa on mukava uppoutua kirjan pariin, kuunnella musiikkia tai vain antaa ajatusten vaellella. Tilaa riittää myös harrastuksille, työpöydälle tai lisäsängylle. Lisäksi talossa on kylmä, sisustamaton ullakko, joka tarjoaa runsaasti säilytystilaa tai mahdollisuuden tuleville ideoille.

Keittiössä on pieni takka, joka levittää miellyttävää lämpöä ja tekee lämmityksestä sekä edullista että kodikasta.

Noin 750 m²:n tontilla on autotallirakennus, katettu oleskelutila, jossa voi nauttia rauhallisista hetkistä, sekä viehättävä pihasauna, jossa on pesukoneliitäntä, suihku, sauna ja pukuhuone – ja lisäksi halkovarasto.

Tämä talo on enemmän kuin pelkät seinät ja katto, se on koti täynnä lämpöä, huolenpitoa ja sielua. Sen tuntee heti, kun astuu sisään. Tervetuloa tutustumaan!

***

Välkommen till detta charmiga gula med i Skata, ett hem som känns varmt och omfamnande.

Genom åren har huset genomgått stora renoveringar: Bl.a så har takets tegel förnyats, bruksvatten- och avloppsrören har förnyats eller strumpats, kök, badrum och wc har renoverats, och ytorna har fräschats upp med omsorg.

År 2018 inreddes vinden till ett mysigt krypin, ett ställe där man gärna kryper upp med en bok, lyssnar på musik eller bara låter tankarna vandra. Här finns också utrymme för hobby, skrivbord eller en extra säng. Dessutom finns en kall oinredd vind med gott om förvaringsmöjligheter, eller potential för framtida idéer.

Köket har en liten kamin som sprider skön värme och gör uppvärmningen både förmånlig och trivsam.

På den cirka 750 m² stora tomten finns garagebyggnad, en takförsedd uteplats där du kan njuta av lugna stunder, samt en charmig utebastu med tvättmaskinsanslutning, dusch, bastu och omklädningsrum, och dessutom vedförråd.

Det här huset är mer än bara väggar och tak, det är ett hem fyllt av värme, omtanke och själ. Och det känns genast du kliver in genom ytterdörren. Välkommen att bekanta dig!

Benny Herrmans
benny.herrmans@aktialkv.fi
044 042 8668

Perustiedot

Tyyppi
omakotitalo
Velaton hinta
119 000,00 €
Myyntihinta
119 000,00 €
Neliöhinta
1 265,96 €
Rakennusvuosi
1889
Kuvaus
3h k kph wc + sisustettu vintti
Tilat ja varustelu
tie perille, oma sauna, sähköliittymä siirtyy, kaapeli-tv
Koko
4 h
Pinta-ala
80 m²
Muu pinta-ala
14 m²
Kokonaispinta-ala
94 m²
Yleiskunto
hyvä

Kustannukset

Lisätietoa maksuista
Sähkön kulutu n 11 000-12 000kwh/v

Tontti ja kaavoitus

Lisätietoa tontista
Talo sijaitsee 1020 m²:n tontilla, joka on jaettu naapurin kanssa hallinnanjakosopimuksella. Tämän talon osuus tontista on 3/4.
Tontin pinta-ala
1 020 m²
Tontin omistus
oma

Kohteen kuvaus

Tontin pinta-ala
1 020 m²
Kiinteistötunnus
598-5-41-54
Tontin omistus
oma
Muuta
tie perille, oma sauna, sähköliittymä siirtyy, kaapeli-tv

Materiaalit, varusteet ja lämmitys

Rakennusmateriaali
puu hirsi
Kattotyyppi
Harja
Kate
Tiili
Lämmitysjärjestelmä
sähkö Ilmalämpöpumppu muu
Takka
muu

Taloyhtiö

Tontin omistus
oma

Keittiö

Lattiamateriaali
lauta
Varustelu
liesituuletin astianpesukone
Liesi
keraaminen erillisuuni
Jääkaappi
jääkaappi

Pesutilat

Seinämateriaali
kaakeli
Lattiamateriaali
laatta
Varustelu
suihku

WC:t

Lukumäärä
1
Seinämateriaali
tapetti
Lattiamateriaali
lauta

Oleskelutilat

Seinämateriaali
tapetti
Lattiamateriaali
lauta

Makuuhuoneet

Lukumäärä
2
Lattiamateriaali
lauta

Ota yhteyttä välittäjään

Jaa sivu

Jatka selailua