Raitatie 12

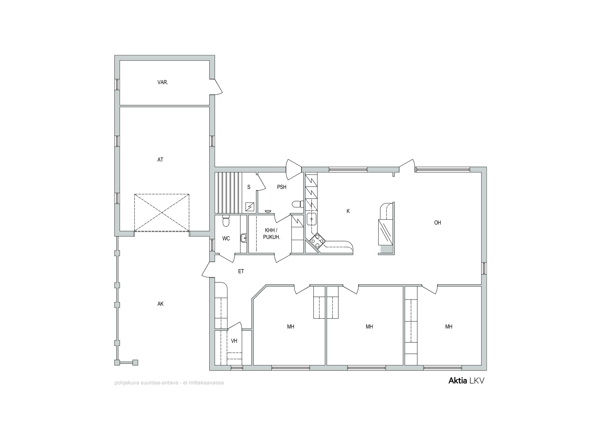
3 mh, oh, k, apuk. 2 wc, kph, s, iso autotalli

Pinta-ala

119,5 m²

Myyntihinta

138 000,00 €

Velaton hinta

138 000,00 €

Sijainti

10360 MUSTIO

Tyyppi

omakotitalo

Kerros

1 / 1

MUSTIO Järkevä perhekoti sopivaan hintaan kivalla asuinalueella Mustion keskustan tuntumassa. Talossa mm 2 wc:tä, keittiössä puulämmitteinen leivinuuni, 3 tilavaa makuuhuonetta ja uusittu kylpyhuone, sauna ja wc ym. Tilava lämmin autotalli ja ulkorakennus. Uudella päiväkodilla ja koululla sekä sijainnin ansiosta Mustio on varteenotettava asuinpaikka! Heti vapaa!

SVARTÅ Vettigt familjehem till passligt pris på trevligt bostadsområde intill Svartå centrum. I huset finns bl.a. 2 wc, vedeldad bakugn i köket, 3 rymliga sovrum och förnyat badrum, bastu och wc. Rymligt, varmt garage och uthus. Med nytt daghem och skola samt tack vare läget utgör Svartå ett seriöst alternativ som bostadsort! Genast ledig.

Perustiedot

Tyyppi
omakotitalo
Omistusmuoto
oma
Velaton hinta
138 000,00 €
Myyntihinta
138 000,00 €
Neliöhinta
838,91 €
Rakennusvuosi
1991
Kuvaus
3 mh, oh, k, apuk. 2 wc, kph, s, iso autotalli
Vapautuminen
heti
Tilat ja varustelu
antenni, tie perille, oma sauna, sähköliittymä siirtyy, kulku suoraan ulos
Koko
4 h
Pinta-ala
119,5 m²
Muu pinta-ala
45 m²
Kokonaispinta-ala
164,5 m²
Kerros
1
Yleiskunto
tyydyttävä

Kustannukset

Lisätietoa maksuista
Sähkönkulutus ollut n. 11 000 - 12 000 kwh/v/2 henk. jolloin polttopuita jonkin verran

Tontti ja kaavoitus

Tontin pinta-ala
986 m²
Tontin omistus
oma
Tontin tyyppi
Tasamaatontti
Lisätietoa kaavoituksesta
Raaseporin kaupunki 019-2892000
Rakennusoikeus
AO I korttelialue, eli korkeintaan I kerroksen erillispientalojen korttelialue

Kohteen kuvaus

Tontin pinta-ala
986 m²
Kiinteistötunnus
710-41-1020-8
Tontin omistus
oma
Muuta
antenni, tie perille, oma sauna, sähköliittymä siirtyy, kulku suoraan ulos

Materiaalit, varusteet ja lämmitys

Rakennusmateriaali
puu
Kattotyyppi
Aumakatto
Kate
Muovipäällystetty pelti
Lämmitysjärjestelmä
puu sähkö Ilmalämpöpumppu
Takka
takka

Taloyhtiö

Tontin omistus
oma

Keittiö

Seinämateriaali
tapetti
Lattiamateriaali
korkki
Varustelu
astianpesukone kiinteät valaisimet liesituuletin / hormi
Liesi
keraaminen
Jääkaappi
jääkaappi/pakastin

Pesutilat

Seinämateriaali
kaakeli
Lattiamateriaali
laatta
Varustelu
lattialämmitys wc-istuin suihku kiinteät valaisimet

Kodinhoitohuone

Seinämateriaali
kaakeli maalattu
Lattiamateriaali
laatta
Varustelu
pesukoneliitäntä pesuallas lattialämmitys lattiakaivo pöytätaso

WC:t

Lukumäärä
1
Seinämateriaali
kaakeli
Lattiamateriaali
laatta

Oleskelutilat

Seinämateriaali
tapetti
Lattiamateriaali
korkki

Makuuhuoneet

Lukumäärä
3
Lattiamateriaali
korkki

Muut tilat

Muut tilat
Eteinen Terassi

Ota yhteyttä välittäjään

Jaa sivu

Jatka selailua