Kreetankuja 7

4-5h,k,kph/wc,s,wc,khh,vh,las.p,v

Pinta-ala

119 m²

Myyntihinta

238 000,00 €

Velaton hinta

238 000,00 €

Sijainti

21200 Raisio

Tyyppi

rivitalo

Kerros

2 / 2

Iso koti huippusijainnilla Raisiossa. Pohjaratkaisu on toimiva ja huonetilat monikäyttöiset erilaisiin asumisen tarpeisiin. Asunto on ikäisekseen harvinaisen siistikuntoinen ja hyvin pidetty. Muuttamaan pääsee halutessaan heti, mutta pienellä päivityksellä tästä saa helposti juuri oman näköisen, tähän päivään sopivan kodin. Kaikki Raision keskustan palvelut ovat kävelyetäisyydellä.

As Oy Laurinpiha on 4 asunnon hyvin hoidettu rivitaloyhtiö, joka muodostuu kahdesta paritalosta ja erillisestä autokatos-/varastorakennuksesta. Yhtiön talous on kunnossa ja maksuvalmius on ollut hyvä. Talotekniikan osalta yhtiön rakenneratkaisut ovat olleet aikaansa edellä ja toteutettu laadukkaasti. Yhtiö on kaukolämmössä. Kaikissa huoneissa vesikiertoinen lattialämmitys. Lattiat ovat parkettia ja laattaa. Huonetilat ovat osin korkeita ja valaistus toteutettu uppoasennuksin. Vastike on myöskin edullinen, eikä isompia remontteja ole yhtiössä suunnitteilla.

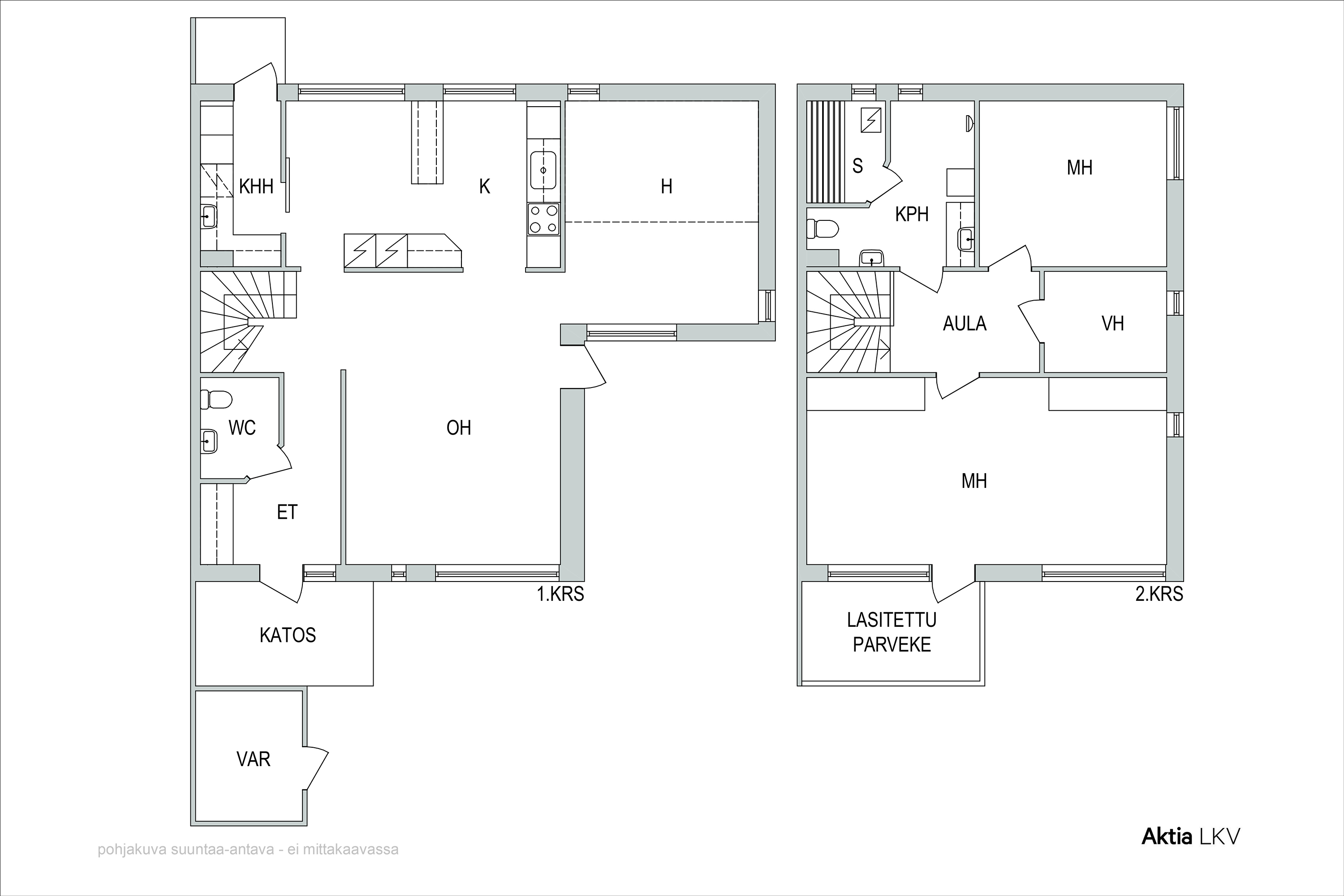
Alakerrassa avautuu tilava olohuone, jonka vieressä on erillinen tv-huone. Keittiön yhteyteen mahtuu hyvin myös ruokailuryhmä. Kodinhoitohuone sijaitsee keittiön vieressä, josta myös kulku takapihalle. Lisäksi alakerrassa on erillinen wc. Yläkerrassa on kaksi makuuhuonetta. Isomman makuuhuoneen väliseinä on rakennusaikana jätetty pois ja huone on helposti jaettavissa kahdeksi huoneeksi tarpeen mukaan. Kylpyhuone, sauna sekä lasitettu parveke viimeistelevät yläkerran toimivan kokonaisuuden.
Asunnon piha-alue on etelän puolella ja tilasta ei ole puutetta.

2 lukittavaa autokatospaikkaa latausoptiolla.

Sovi oma esittelyaikasi!

Yhteydenotot:
Heikki Harinen
Kiinteistövälittäjä, LKV, LVV
p. 041-433 8328,
heikki.harinen@aktialkv.fi

Perustiedot

Tyyppi
rivitalo
Omistusmuoto
oma
Velaton hinta
238 000,00 €
Myyntihinta
238 000,00 €
Neliöhinta
2 000,00 €
Rakennusvuosi
1999
Kuvaus
4-5h,k,kph/wc,s,wc,khh,vh,las.p,v
Vapautuminen
sopimuksen mukaan
Tilat ja varustelu
oma sauna, kaapeli-tv, parveke
Koko
5 h
Pinta-ala
119 m²
Muu pinta-ala
0
Kokonaispinta-ala
119 m²
Kerros
2
Yleiskunto
hyvä
Energialuokka
Ei lain edellyttämä energiatodistus

Kustannukset

Hoitovastike
333,20 €
Yhtiövastike yht.
333,20 €
Lisätietoa maksuista
Vesimaksu kulutuksen mukaan, tasaus vuosittain. Vesimaksuennakko ollut 21€/hlö/kk, määräytyy kulutushistorian perusteella. Sähkö kulutuksen mukaan. Varainsiirtovero 1,5% velattomasta kauppahinnasta. Taloyhtiö on siirtynyt sähköiseen Huoneistotietojärjestelmään. Ostaja on tietoinen siitä, että hänen tulee hakea omistusoikeutensa rekisteröintiä huoneistotietojärjestelmään Maanmittauslaitokselta kahden kuukauden kuluessa kauppakirjan allekirjoituksesta. Samalla ostajan on toimitettava paperinen osakekirja Maanmittauslaitokselle mitätöitäväksi. Ostaja on tietoinen siitä, että mikäli edellä mainittu määräaika laiminlyödään, seuraa tästä hakemusmaksun korotus. Ostaja vastaa omistusoikeuden rekisteröintikustannuksista, osakekirjan mitätöinnistä aiheutuvista mahdollisista kustannuksista sekä mahdollisesta hakemusmaksun korotuksesta.

Tontti ja kaavoitus

Tontin pinta-ala
1 291 m²
Tontin omistus
oma

Kohteen kuvaus

Tontin pinta-ala
1 291 m²
Tontin omistus
oma
Muuta
oma sauna, kaapeli-tv, parveke

Materiaalit, varusteet ja lämmitys

Rakennusmateriaali
puu tiili
Kattotyyppi
Harja
Kate
Tiili
Lämmitysjärjestelmä
kaukolämpö

Taloyhtiö

Taloyhtiön nimi
Asunto Oy Raision Laurinpiha
Vastuu kiinteistön hoidosta
asukkaat
Taloyhtiön tehdyt remontit
2015 Ilmastointi puhdistus ja säätö. 2015 Puuaidan uusiminen. 2018 Vesimittarit vaihdettu, märkätilojen silikonisaumat tarkistettu ja korjattu. 2019 Katto tarkastettu. 2021 Ilmastointi puhdistus ja lämmönsäätö. 2022 Kattoikkunoiden tiivistys 2023 Puuosien kunnossapitomaalaus 2023 Aitojen pellitys
Taloyhtiöön suunnitellut remontit
Hallituksen 5 vuoden kunnossapitotarveselvitys (7.5.2025): Vesi- ja viemärijärjestelmä: Tarkistetaan vesipostit ja lisätään puuttuvat sulkuventtiilit
Tontin omistus
oma

Keittiö

Seinämateriaali
maalattu
Lattiamateriaali
laatta
Varustelu
liesituuletin
Liesi
keraaminen
Jääkaappi
jääkaappi pakastin

Pesutilat

Seinämateriaali
kaakeli
Lattiamateriaali
laatta
Varustelu
lattialämmitys wc-istuin suihku peilikaappi kiinteät valaisimet kylpyhuonekaapisto

Kodinhoitohuone

Seinämateriaali
maalattu osalaatoitus
Lattiamateriaali
laatta
Varustelu
pesukone pesukoneliitäntä kuivausrumpu lattialämmitys pyykkikaapit pöytätaso

WC:t

Lukumäärä
1
Seinämateriaali
kaakeli
Lattiamateriaali
laatta

Oleskelutilat

Seinämateriaali
maalattu
Lattiamateriaali
parketti

Makuuhuoneet

Lukumäärä
3
Lattiamateriaali
parketti

Muut tilat

Muut tilat
Eteinen Aula Terassi Vaatehuone

Ota yhteyttä välittäjään

Jaa sivu

Jatka selailua