Eräpolku 9

4h, k, khh, s, wc

Pinta-ala

101,5 m²

Myyntihinta

168 000,00 €

Velaton hinta

168 000,00 €

Sijainti

65370 Vaasa

Tyyppi

omakotitalo

Kerros

1 / 1

Valoisa ja avarapohjainen 2006 rakennettu koti erinomaisella sijainnilla aivan ala-asteen, päiväkodin ja luistelukentän läheisyydessä. Olohuone ja keittiö muodostavat yhtenäisen ja tilavan kokonaisuuden, joka luo kodikkaan ja toimivan oleskelutilan arkeen ja yhdessäoloon. Kodin sydämessä sijaitsee varaava takka, joka tuo lämpöä ja tunnelmaa.

Erillinen lämmin autotalli ja tilava varasto mahdollistavat käytännölliset säilytys- ja harrastusmahdollisuudet.

Suojaisa piha-alue tarjoaa turvallisen ympäristön lasten leikeille ja ulkoiluun. Tontilla on myös vielä rakennusoikeutta jäljellä, mikä mahdollistaa lisätilan rakentamisen tarvittaessa.

Sijainti tarjoaa sujuvat yhteydet Runsoriin, Liisanlehtoon sekä keskustaan. Talossa on vesikiertoinen lämmitysjärjestelmä.

Tervetuloa tutustumaan!
Ota yhteyttä ja sovi esittely Paula Hirvonen puh. 050-349 1801 tai paula.hirvonen@aktialkv.fi
--------------------------------------
Ljust och luftigt 2006 byggt hem med ett utmärkt läge alldeles intill lågstadieskola, daghem och skridskobana. Vardagsrummet och köket bildar en öppen och rymlig helhet som skapar en trivsam och funktionell samlingsplats för både vardag och umgänge. I hemmets hjärta finns en värmelagrande eldstad som ger både värme och stämning.

Separat uppvärmt garage samt ett rymligt förråd ger gott om praktiska förvarings- och hobbymöjligheter.

Den skyddade gårdsplanen erbjuder en trygg miljö för barnens lek och utevistelse. På tomten finns dessutom kvarvarande byggrätt, vilket ger möjlighet att bygga till vid behov av extra utrymme.

Läget erbjuder smidiga förbindelser till Runsor, Lisanlehto och centrum. Huset har ett vattenburet värmesystem.

Välkommen och bekanta dig!
Ta kontakt och kom överens visning Paula Hirvonen puh. 050-349 1801 eller paula.hirvonen@aktialkv.fi

Perustiedot

Tyyppi
omakotitalo
Velaton hinta
168 000,00 €
Myyntihinta
168 000,00 €
Neliöhinta
1 247,22 €
Rakennusvuosi
2006
Kuvaus
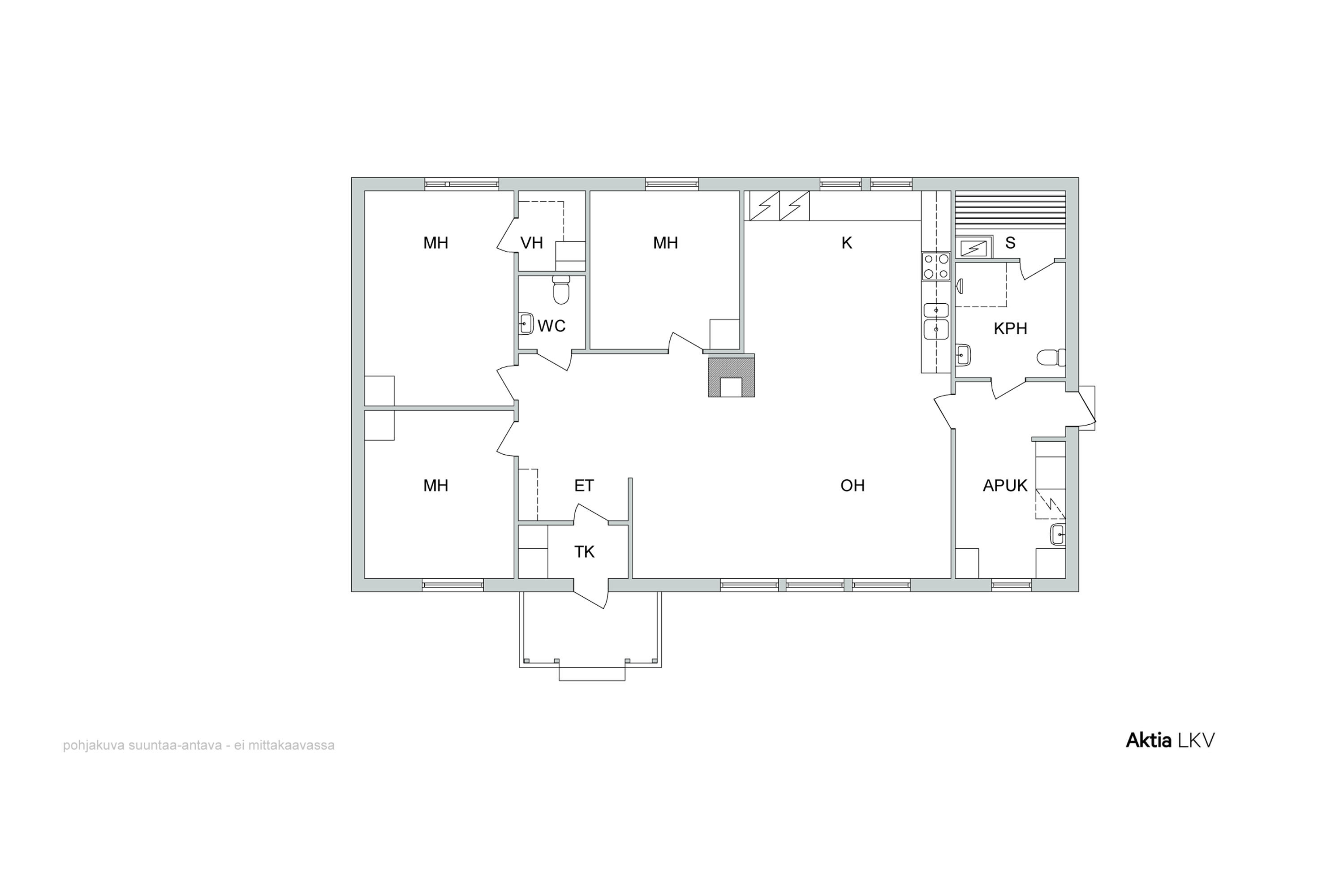
4h, k, khh, s, wc
Vapautuminen
sopimuksen mukaan
Tilat ja varustelu
antenni, tie perille, oma sauna, kulku suoraan ulos, kuntotarkastus tehty, kosteusmittaus tehty
Koko
4 h
Pinta-ala
101,5 m²
Muu pinta-ala
33,2 m²
Kokonaispinta-ala
134,7 m²
Kerros
1
Yleiskunto
tyydyttävä
Energialuokka
Ei lain edellyttämä energiatodistus

Kustannukset

Lisätietoa maksuista
Sähkölämmitys kulut sisältää myös käyttösähkön.

Tontti ja kaavoitus

Lisätietoa tontista
Tontti mahdollista lunastaa omaksi, hinta 23.209,00 euroa per 03.2026.
Tontin pinta-ala
705 m²
Tontin omistus
vuokrattu
Tontin tyyppi
Tasamaatontti
Lisätietoa kaavoituksesta
Sitova tonttijako AO I 2/3, 200+50 Vaasan kaupunki puh. 06-325 1111
Rakennusoikeus
I 2/3 200+50 Vaasan kaupunki puh. 06-325 1111

Kohteen kuvaus

Tontin pinta-ala
705 m²
Kiinteistötunnus
905-29-141-4-L1
Tontin omistus
vuokrattu
Muuta
antenni, tie perille, oma sauna, kulku suoraan ulos, kuntotarkastus tehty, kosteusmittaus tehty

Materiaalit, varusteet ja lämmitys

Rakennusmateriaali
puu elementti
Kattotyyppi
Harja
Kate
Pelti
Lämmitysjärjestelmä
puu sähkö Ilmalämpöpumppu
Takka
takka

Taloyhtiö

Tontin omistus
vuokrattu

Keittiö

Seinämateriaali
tapetti muu
Lattiamateriaali
muovi
Varustelu
liesikupu astianpesukone kiinteät valaisimet liesituuletin / hormi
Liesi
keraaminen
Jääkaappi
jääkaappi pakastin

Pesutilat

Seinämateriaali
kaakeli
Lattiamateriaali
muovi
Varustelu
suihkuseinä lattialämmitys wc-istuin suihku peilikaappi kiinteät valaisimet

Kodinhoitohuone

Seinämateriaali
tapetti muovi
Lattiamateriaali
muovi
Varustelu
pesukoneliitäntä pesuallas lattiakaivo

WC:t

Lukumäärä
1
Seinämateriaali
tapetti
Lattiamateriaali
muovi

Oleskelutilat

Seinämateriaali
tapetti
Lattiamateriaali
muovi

Makuuhuoneet

Lukumäärä
3
Lattiamateriaali
muovi vinyyli

Muut tilat

Muut tilat
Eteinen Tuulikaappi

Palvelut ja liikenneyhteydet

Palvelut
Lähikauppa n. 1 km
Päivähoito
Suomenkielinen vieressä Ruotsinkielinen n. 1,7 km
Koulu
Suomenkielinen ala-aste vieressä Ruotsinkielinen Hagan ala-aste n. 2,6 km Suomenkielinen yläaste n. 1,7 km
Liikenneyhteydet
LInja-autoliikenne Vanhan vaasankatua

Ota yhteyttä välittäjään

Jaa sivu

Jatka selailua