Leinelänkaari 1

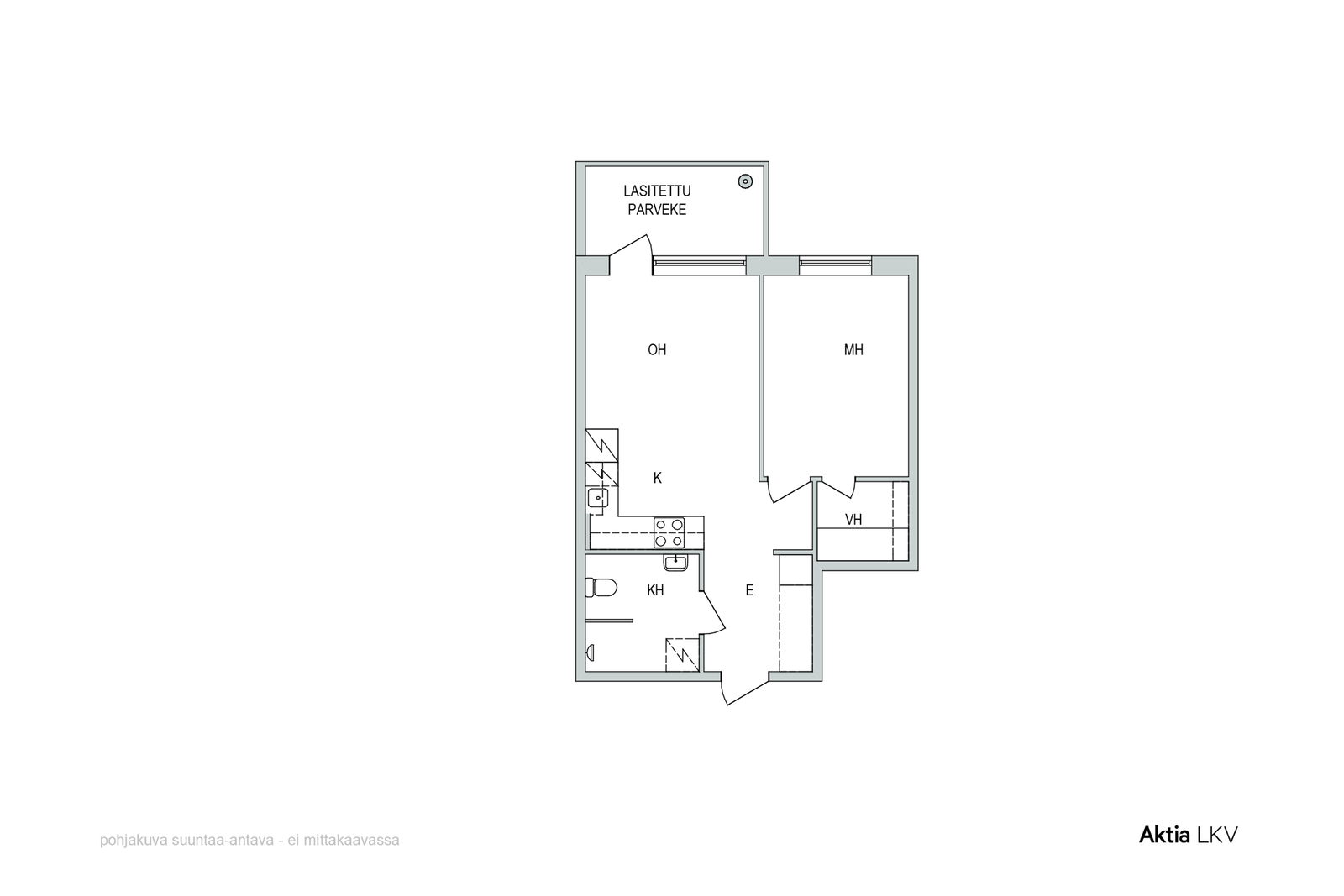
2h, kt, kph, vh, las.parveke

Pinta-ala

41,5 m²

Myyntihinta

69 271,17 €

Velaton hinta

199 000,00 €

Sijainti

01340 Vantaa

Tyyppi

kerrostalo

Kerros

3 / 4

Tilaihme kaksio lähes uutta vastaavassa kunnossa!

Lähes uudenveroinen, tehokaspohjainen kaksio, jossa neliöt on hyödynnetty erinomaisesti. Toimiva kokonaisuus niin ensiasunnon ostajalle, pienelle perheelle kuin sijoittajallekin.

Laadukkaassa Petran keittiössä hyvin kaappitilaa kaksion tarpeisiin. Säilytystilaa on siis poikkeuksellisen hyvin: kaapistojen lisäksi asunnossa on tilava vaatehuone.
Kylpyhuoneessa sadesuihku sekä suihkunurkassa käytännölliset taittoseinät.

Lasitettu terassi avautuu suojaisaan suuntaan, eikä suoraa vastapäistä taloa ole – lisää asumisviihtyvyyttä ja yksityisyyttä.

Autopaikka sisältyy hintaan!

Sisääntulossa erikoisuutena käsisuihku esimerkiksi lemmikkien tai kuravaatteiden puhdistukseen.
Liikenneyhteydet loistavat; talon vierestä menee bussi ja juna-asemalle kävelymatka.

Lähes kaikki päivittäispalvelut kävelyetäisyydellä.

Tervetuloa tutustumaan!

Lisätiedot ja esittelyt:

Helena Koivula
Kiinteistönvälittäjä, LKV, LVV, KiAT
Aktia LKV Helsinki
helena.koivula@aktialkv.fi
p. 0400 128 078

Perustiedot

Tyyppi
kerrostalo
Omistusmuoto
oma
Velaton hinta
199 000,00 €
Myyntihinta
69 271,17 €
Neliöhinta
4 795,18 €
Rakennusvuosi
2021
Kuvaus
2h, kt, kph, vh, las.parveke
Vapautuminen
heti
Tilat ja varustelu
kaapeli-tv, parveke, hissi
Koko
kaksio
Pinta-ala
41,5 m²
Muu pinta-ala
0
Kokonaispinta-ala
41,5 m²
Kerros
3
Yleiskunto
hyvä
Energialuokka
B2018

Kustannukset

Hoitovastike
153,55 €
Rahoitusvastike
879,90 €
Yhtiövastike yht.
1 033,45 €
Vesimaksu
20,00 €
Lisätietoa maksuista
Saunamaksu 5 € /kk Vesimaksu 20€/kk/hlö on ennakkomaksu. Yhtiössä on huoneistokohtaiset vesimittarit. Vedenkulutuksen tasauslaskutus tehdään vuosittain. Mahdollisten ylimääräisten tasauskulujen osalta mm. osakasmuutosten yhteydessä, tulee osakkaan toimittaa mittarilukema isännöitsijälle laskutusta varten.

Tontti ja kaavoitus

Tontin pinta-ala
4 563 m²
Tontin omistus
oma

Kohteen kuvaus

Tontin pinta-ala
4 563 m²
Tontin omistus
oma
Muuta
kaapeli-tv, parveke, hissi

Materiaalit, varusteet ja lämmitys

Rakennusmateriaali
kivi betoni teräs
Kattotyyppi
Tasa /bitumikermi
Kate
Huopa
Lämmitysjärjestelmä
kaukolämpö muu

Taloyhtiö

Taloyhtiön nimi
As. Oy Vantaan Ilmatar
Isännöinti
Kiinteistö-Tahkola Helsinki Oy Kiinteistö-Tahkola Vantaan toimipiste Turvalaaksonkaari 2, 3.krs, 01740 Vantaa Nina Välimäki p. 020 7488168 nina.valimaki@kiinteistotahkola.fi
Vastuu kiinteistön hoidosta
huoltoyhtiö
Taloyhtiön tehdyt remontit
Tilikaudella suoritettiin normaaleja huolto- ja kunnossapitotöitä. Suurimpia töitä olivat taloyhtiön lämmitysjärjestelmän hienosäätö. Alkaneella tilikaudella tehdään huoltokirjan mukaisia huolto- ja kunnossapito toimenpiteitä.
Taloyhtiöön suunnitellut remontit
2025-2029 Normaaleja ylläpitokorjauksia ja huoltotoimenpiteitä.
Tontin omistus
oma

Keittiö

Seinämateriaali
maalattu
Lattiamateriaali
parketti
Varustelu
mikroaaltouuni astianpesukone kiinteät valaisimet liesituuletin / hormi
Liesi
induktio erillisuuni
Jääkaappi
jääkaappi/pakastin

Pesutilat

Lattiamateriaali
laatta
Varustelu
suihkukaappi pesukoneliitäntä lattialämmitys wc-istuin suihku peilikaappi kiinteät valaisimet kylpyhuonekaapisto

Oleskelutilat

Seinämateriaali
maalattu
Lattiamateriaali
parketti

Makuuhuoneet

Lukumäärä
1
Lattiamateriaali
parketti

Muut tilat

Muut tilat
Vaatehuone

Ota yhteyttä välittäjään

Jaa sivu

Jatka selailua