Silmukuja 1
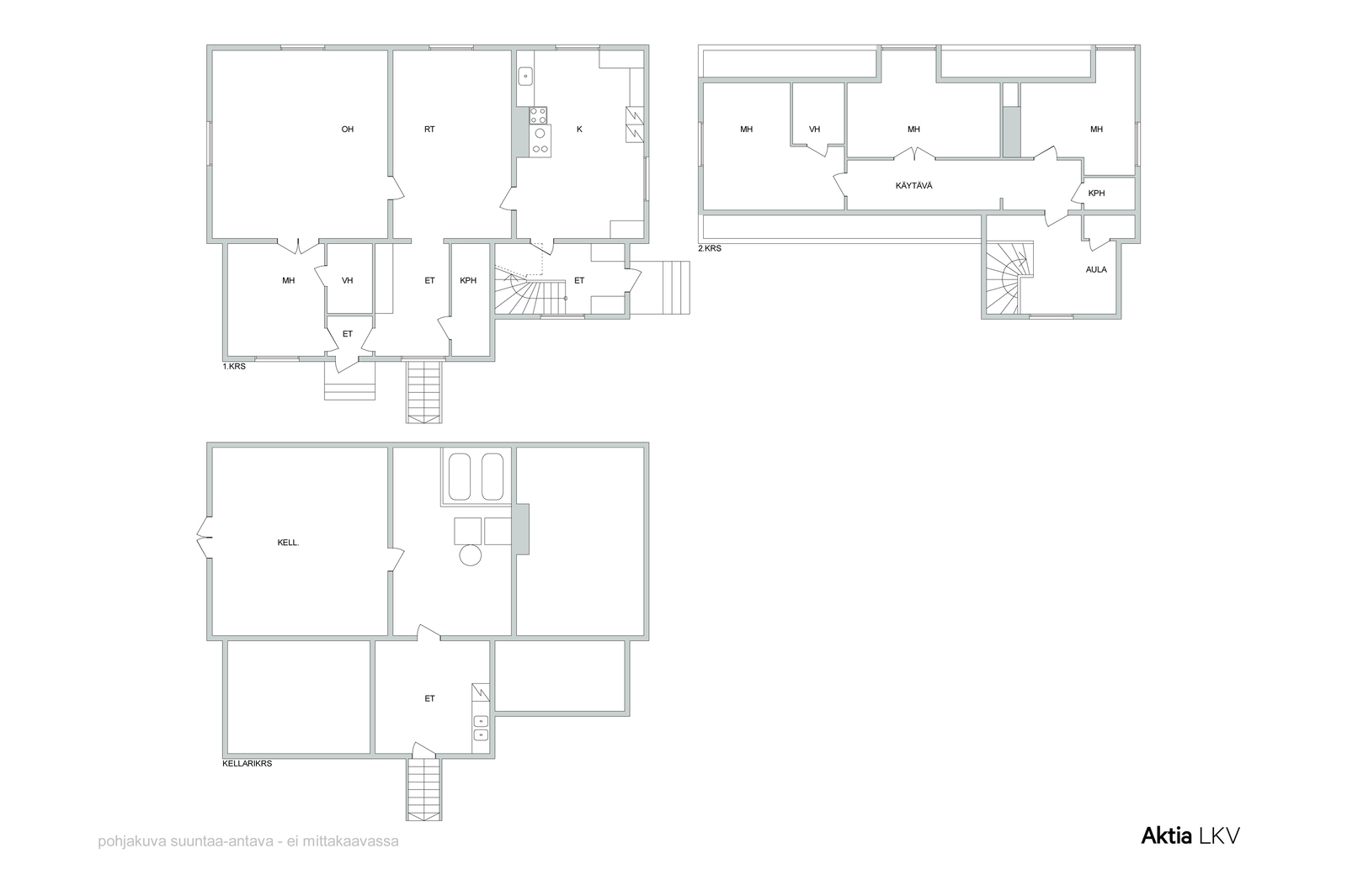
4mh, oh, ruokasali/kirjasto, k, kph
Pinta-ala
170 m²
Myyntihinta
342 000,00 €
Velaton hinta
342 000,00 €
Sijainti
01350 Vantaa
Tyyppi
omakotitalo
Kerros
2 / 2
Tervetuloa tutustumaan upeaan Hiekkaharjussa sijaitsevaan taloon, jonka historia ulottuu yli sadan vuoden taakse 1915 -luvulle. Nyt tämä pitkän historian nähnyt rakennus etsii huolehtivia käsiä remontoimaan talolle lisää uusia muistoja.
Rakennukseen on tehty laajennuksia käyttötarpeen mukaan 1930, 50-, 60- ja 80 -luvulla.
Suuri mielenkiintoinen puutarhapiha suorastaan henkii historiaa ja tarjoaa monia mahdollisuuksia. Perinteiselle hyötyviljelylle voit myös omistautua pienimuotoisesti.
Tontti antaa myös toisen mahdollisuuden, pura vanhaa / rakenna uutta.
Sijainti on erinomainen, sillä Hiekkaharjun alue on rauhallinen ja perheystävällinen, mutta samalla lähellä kaupungin palveluita. Tämä koti tarjoaa loistavat puitteet perheelle, joka arvostaa tilaa ja omaa pihaa. Tartu tilaisuuteen ja tule tutustumaan tähän viehättävään kotiin!
Lisätiedot ja esittelyt:
Helena Koivula
Kiinteistönvälittäjä, LKV, LVV, KiAT
Aktia LKV Helsinki
helena.koivula@aktialkv.fi
p. 0400 128 078
