Partiomiehentie 1

2h+k

Pinta-ala

55 m²

Vuokra

720,00 €

Sijainti

06100 Porvoo

Tyyppi

kerrostalo

Kerros

3 / 3

Heti vapaa, valoisa kaksio Porvoon Ylä-Näsissä!

Tarjolla ylimmän kerroksen (3/3) viihtyisä ja hyvin pidetty kaksio rauhallisella alueella. Asunto on valoisa ja toimivapohjainen, tarjoten mukavat puitteet arkeen.

Sijainti Ylä-Näsissä tarjoaa hyvät kulkuyhteydet sekä lähellä olevat palvelut.

Ota yhteyttä sähköpostitse lisätietoja ja esittelyä varten!

Perustiedot

Tyyppi
kerrostalo
Vuokra
720,00 €
Rakennusvuosi
1971
Kuvaus
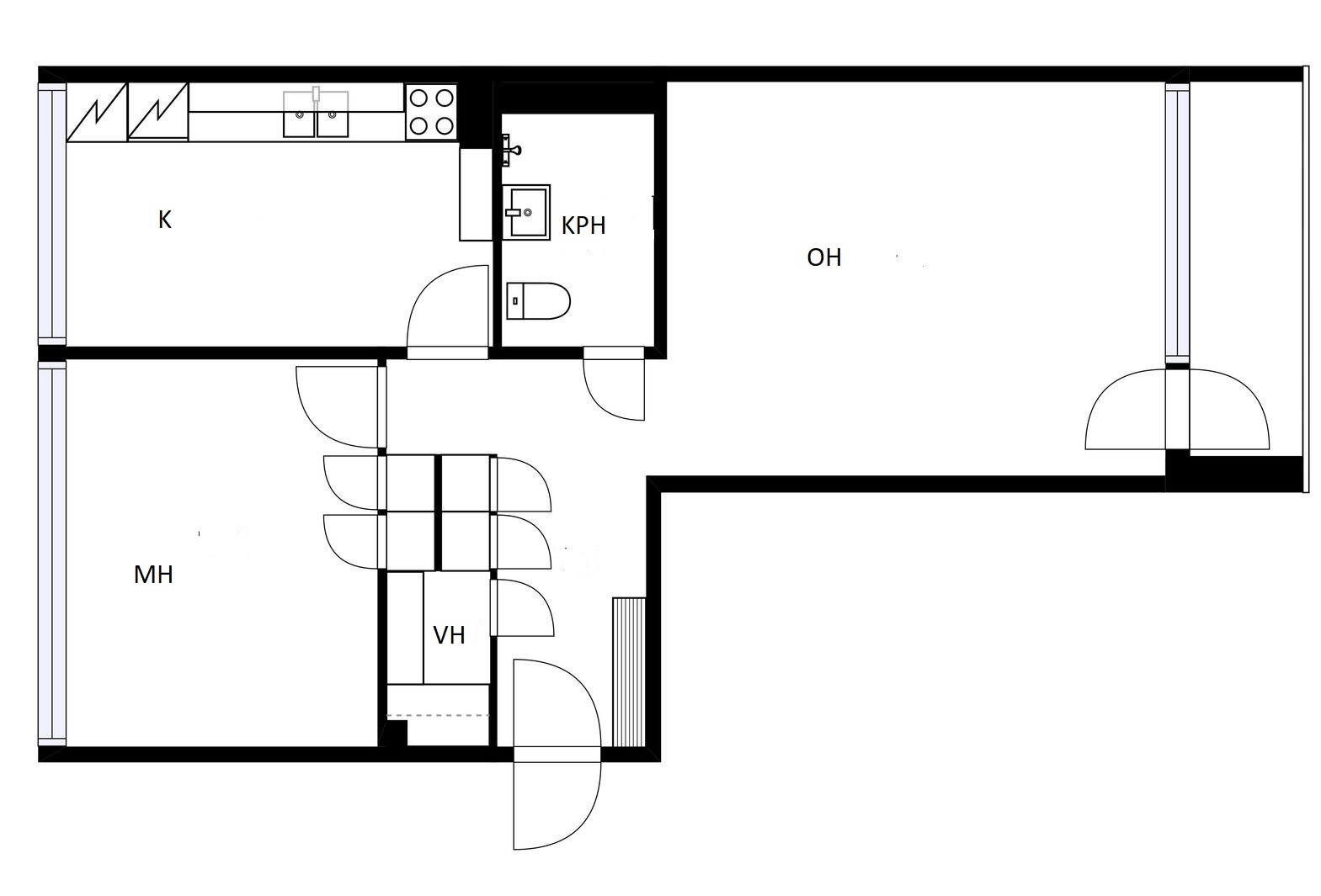
2h+k
Vapautuminen
heti
Tilat ja varustelu
antenni, parveke
Koko
kaksio
Pinta-ala
55 m²
Kokonaispinta-ala
55 m²
Kerros
3
Yleiskunto
hyvä
Energialuokka
Ei lain edellyttämä energiatodistus

Kustannukset

Vesimaksu
23,00 €

Tontti ja kaavoitus

Tontin pinta-ala
9 554,6 m²
Tontin omistus
oma

Kohteen kuvaus

Tontin pinta-ala
9 554,6 m²
Tontin omistus
oma
Muuta
antenni, parveke

Materiaalit, varusteet ja lämmitys

Rakennusmateriaali
betoni
Kattotyyppi
harja
Kate
huopa
Lämmitysjärjestelmä
kaukolämpö

Taloyhtiö

Taloyhtiön nimi
Asunto Oy Porvoon Partiomiehentie 1
Vastuu kiinteistön hoidosta
huoltoyhtiö
Autotalleja
5
Taloyhtiön tehdyt remontit
2003 tuuletusparvekkeet 2004 käyttövesijohdot 2006 vesikaton pinnoite, julkisivupaneelit osittain, lukitukset osittain 2008 ikkunat ja parvekeovet , saunaosasto,viemäreiden pinnoitus 2009 lämmönvaihdin 2014 vesikourujen syöksyputket 2015 PEL energiatodistus 2018 kellarikäytävien maalaus 2018 ulko ovet, lukitukset, yhteisten tilojen valaistus
Tontin omistus
oma

Keittiö

Seinämateriaali
maalattu
Lattiamateriaali
muovi
Varustelu
liesituuletin astianpesukone
Liesi
sähköliesi
Jääkaappi
jääkaappi/pakastin

Pesutilat

Seinämateriaali
kaakeli maalattu
Lattiamateriaali
laatta
Varustelu
kylpyamme pesukoneliitäntä wc-istuin suihku peilikaappi

Oleskelutilat

Seinämateriaali
tapetti
Lattiamateriaali
muovi

Makuuhuoneet

Lukumäärä
1
Lattiamateriaali
muovi

Ota yhteyttä välittäjään

Jaa sivu

Jatka selailua