Vuorikatu 22

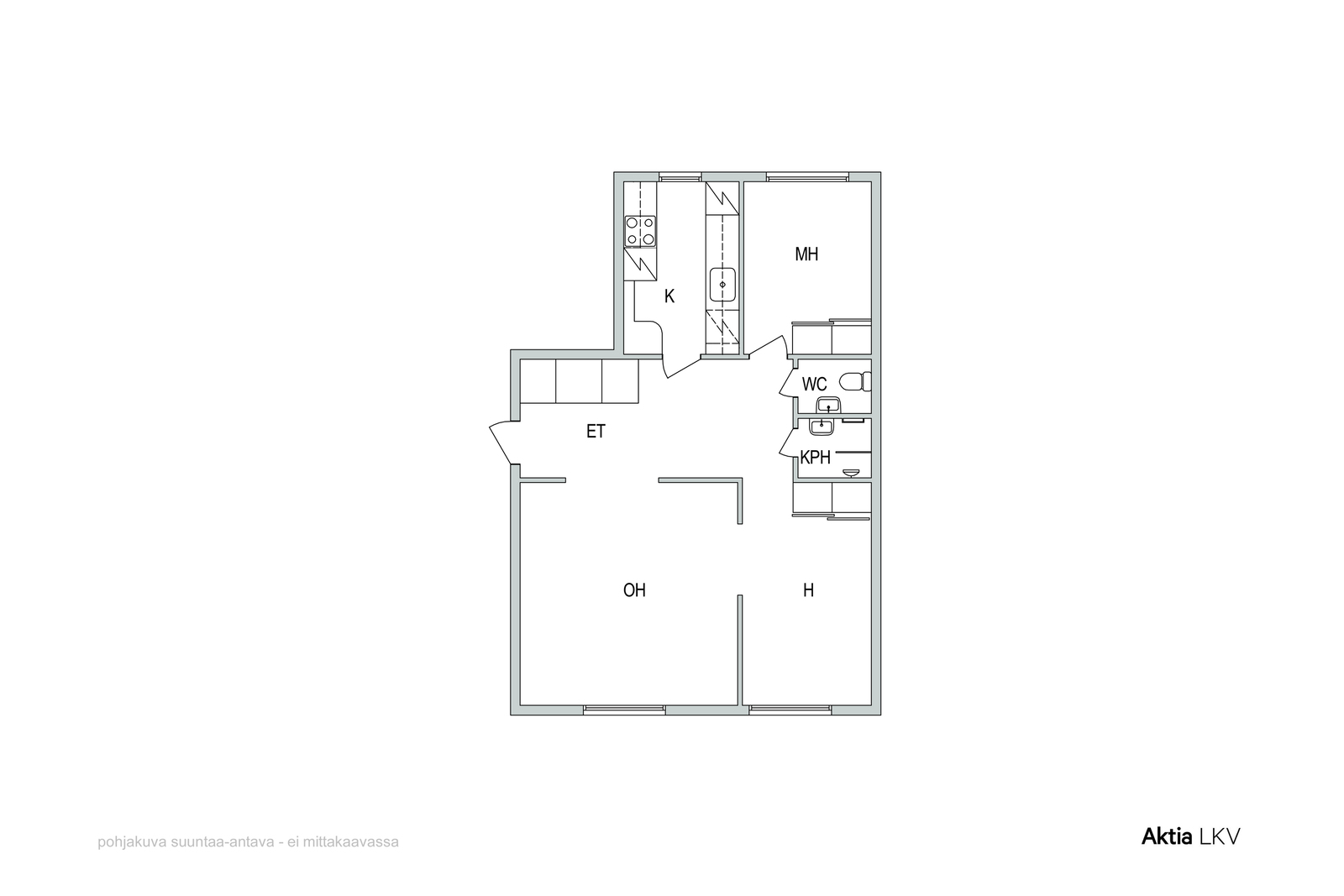
3h+k+kph

Pinta-ala

94 m²

Myyntihinta

715 000,00 €

Velaton hinta

715 000,00 €

Sijainti

00100 Helsinki

Tyyppi

kerrostalo

Kerros

5 / 7

Unelmien kaupunkikoti puistonäkymällä Vuorikadulla!
Tämä 94 m² kolmio keskellä Helsingin sydäntä tarjoaa harvinaisen yhdistelmän keskustan energiaa ja vehreää näkymää Kaisaniemen puistoon.

Vuodenaikojen vaihtelu avautuu ikkunoista suoraan edessäsi, ja kaupungin syke tuntuu sopivasti taustalla. Asunto sijaitsee hissitalossa ja huokuu klassista kaupunkiasumisen tunnelmaa. Korkeahkot huoneet, isot ikkunat ja avara pohjaratkaisu luovat upeat puitteet kodille, joka voi olla juuri sinun näköisesi. Remontointitarvetta on, koti vaatii vähintään pintaremonttia, mutta juuri siinä piilee sen mahdollisuus. Tässä on tilaisuus sinulle, joka arvostat elämänlaatua ja sijaintia, luoda persoonallinen, tyylikäs ja moderni kokonaisuus arvostettuun ympäristöön.

Tilava olohuone kutsuu jakamaan arkea ja juhlaa ystävien kanssa. Kaksi reilunkokoista huonetta taipuvat niin rauhallisiksi makuutiloiksi kuin tarvittaessa inspiroivaksi työhuoneeksi. Keittiöstä on helppo suunnitella toimiva kokonaisuus kokkaamiselle ja perheen yhteisiin ruokahetkiin.

Sijainti on yksinkertaisesti erinomainen: keskustan ravintolat, kahvilat, kulttuuri ja loistavat liikenneyhteydet ovat kaikki kävelyetäisyydellä.

Tule ja tunne itse, miltä elämä Vuorikadulla voisi näyttää.

Varaa oma esittelyaikasi. Tiina Lunnela 040581 1178 tiina.lunnela@aktialkv.fi

Perustiedot

Tyyppi
kerrostalo
Omistusmuoto
oma
Velaton hinta
715 000,00 €
Myyntihinta
715 000,00 €
Neliöhinta
7 606,38 €
Rakennusvuosi
1937
Kuvaus
3h+k+kph
Vapautuminen
heti
Tilat ja varustelu
kaapeli-tv, hissi, oma sopimus
Koko
kolmio
Pinta-ala
94 m²
Muu pinta-ala
0
Kokonaispinta-ala
94 m²
Kerros
5
Yleiskunto
tyydyttävä
Energialuokka
D2018

Kustannukset

Yhtiövastike yht.
460,60 €
Lisätietoa maksuista
Yhtiöllä on kaksi limiittitiliä: 50 000 € (käytetty 0€/11.12.2025) ja 150 000 € (käytetty 87 935,07€/11.12.2025, v.2024-2025 korjaushankkeita varten. Lainat muutetaan pääomavastikelainaksi hankkeen valmistumisen jälkeen. Kun limiitit muutetaan pääomavastikelainaksi ja jaetaan osakkaile lainaosuuksiksi, tästä aiheutuu osakkaille kustannuksia joko velkaosuuden poismaksun tai pääomavastikkeen muodossa. Päätettiin myöntää hallitukselle valtuudet korjaushankkeisiin liittyen, päättää kunkin urakan osalta urakoitsijasta, valvojasta, projektinjohdosta, urakan yksityiskohdista ja aikataulusta, allekirjoittaa tarvittavat sopimukset urakkaan liittyen ja päättää yhtiön edun mukaisista muutoksista urakan aikana. Päätettiin myöntää hallitukselle ja isännöitsijälle valtuudet nostaa enintään 150 000 €:n suuruinen lainakorjaushankkeita varten ja sopia lainan ehdoista sekä tarvittaessa hakea, luovuttaa ja pantata panttikirjat lainan vakuudeksi, määrätä rahoitusvastikkeen suuruus, keräämisen aloittamisen ajankohta ja lainan takaisinmaksuaika.

Tontti ja kaavoitus

Tontin pinta-ala
1 728 m²
Tontin omistus
oma

Kohteen kuvaus

Tontin pinta-ala
1 728 m²
Tontin omistus
oma
Muuta
kaapeli-tv, hissi, oma sopimus

Materiaalit, varusteet ja lämmitys

Rakennusmateriaali
tiili
Kattotyyppi
Harjakatto
Kate
Peltikate
Lämmitysjärjestelmä
kaukolämpö

Taloyhtiö

Taloyhtiön nimi
Oravamäki Asunto - O/Y
Isännöinti
Aarre Isännöinti Oy Metsäneidonkuja 12, 02130 Espoo puh. 0201986700 asiakaspalvelu@aarre.com Isännöitsijä Thomas Kovanen puh. 0201986700 asiakaspalvelu@aarre.com
Vastuu kiinteistön hoidosta
huoltoyhtiö
Taloyhtiön tehdyt remontit
Kattava listaus saatavana välittäjältä. 2010; terassin vesieristys, pinnoitus ja kaide, esteetön käynti B-C-rappuun, kellarivarasto pihakannen alle (85,5m2) uusi tila, BC-hissien saneeraus 2012; Bc-portaiden kellarien rakennevuodot, huoneisto C64 lattiapinnoitteen uusiminen 2013; jätehuoneen ovet uusittu, kattoterassin kaiteet uusittu, A-portaan pääoven kunnostus 2014; neljä puuta kaadettu, Bc-portaiden ikkunat ja parvekeovet uusittu, BC-rakennukseen lisätty korvausilmakanavia ja uusittu venttiilit 2015; B-hissin mottori uusittu, istutusalue uusittu, 2016; C-portaan huoneistoparvekkeiden uusiminen, A-hissin saneeraus 2017; BC-portaiden maalaus/laatoitus, BC-portaiden kerrostaso-ovien uusiminen 2018; BC-portaiden ikkunoiden ja parvekeovien huolto ja öljyäminen, BC-talon käyttövesiviemäri runkolinjan ja linjasulkujen osittainen uusiminen 2021: ilmanvaihtokanavien puhdistus ja säätö 2022; A-portaan ulko-ovien tiivistykset sis. pääoven lämpölasielementti ja sisäpihan oven lämpöeristys, ikkunoiden öljyäminen, liikehuoneisto B1 keittokomeron rakentaminen, lämpöputkien eristystyöt yhtiön kellaritiloissa, BC-portaiden ulko-ovien kunnostukset/tiivistykset 2024: uusien osakasparvekkeiden rakentaminen /B40, B45, B46, B48, C53, C54,C58,C60-loppukatselmus pidetty 2/2024)
Taloyhtiöön suunnitellut remontit
Yhtiökokous 2025; hallitus esittää yhtiökokoukselle seuraavien korjausten toteuttamista: - vesikaton huoltomaalaus 2025/2026 korjaustarpeen mukaan. Tarkennus korjaustarvetta koskien: hallituksen nykyisen näkemyksen mukaan peltikaton korjaustarve ei edellytä katon uusimista vaan kunnostustarpeella tarkoitetaan katon huoltomaalausta ja sen yhteydessä mahdollisesti suoritettavien kattorakenteiden pien/huoltokorjauksia sekä kattovarusteiden päivitystä. - Vuorikatu 24:n puoleisen seinärakenteen kunnostaminen 2025 - A- ja B-talojen yläpohjarakenteiden lisälämmöneristäminen ja kosteusvaurioituneen katto/seinärakenteen (B-talon yläpohja) kunnostus Hallituksen kunnossapitotarveselvitys seuraavien 5-vuoden aikana: - julkisivut, BC-talojen rappauksien uusiminen - katto, peltikatteen uusiminen ja kattovarusteiden päivitys (kts. tarkennus) - lämmitysjärjestelmä, patteriventtiiline ja termostaattien uusiminen - vesi- ja viemärijärjestelmä, BC-talon putkistotutkimus Hallitus voi vielä päättää lykätä tai peruuttaa joitakin listalla olevia korjaushankkeita, mikäli tähän on perusteet. Yksittäisten hankkeiden kustannusarviot voivat vielä muuttua merkittävästi. Yhtiökokouksessa 5.6.2025 päätettiin A8 ja A12: osakasmuutostyö ehdotuksien hyväksynnästä ja ehdoista. Hyväksyttiin seuraavat muutostyöt: - Huoneistoon A8 on suunniteltu ikkuna kylpyhuoneeseen (yläpuolisten asuntojen tapaan) - Huoneistoon A8 on suunniteltu ranskalainen parveke rakennuksen pohjoisseinän julkisivuun - Huoneistoon A12 on suunniteltu normaali parveke (alapuolisen huoneiston tapaan) sisäpihalle. Kunnossapitovastuu säilyy osakkaalla. Päätettiin, että viedään yhtiöjärjestykseen nämä muutokset, kun ovat valmiit, että ovat osakastyönä.
Tontin omistus
oma

Palvelut ja liikenneyhteydet

Palvelut
Stockmannin ruokaosasto, Sokoksen ruokaosasto, posti, kirjasto.
Päivähoito
Päiväkoti Kaisaniemi, Pilke Kallio ja Vallila.
Koulu
Kaisaniemen ala-aste, Kruunuhaan yläaste, Helsingin Eurooppalainen koulu.
Liikenneyhteydet
Juna, metro, ratikka, bussi.

Ota yhteyttä välittäjään

Jaa sivu

Jatka selailua