Prestbackagränd 4
1 rok
Pinta-ala
218 m²
Myyntihinta
350 000,00 €
Velaton hinta
350 000,00 €
Sijainti
22150 JOMALA
Tyyppi
omakotitalo
Tilava omakotitalo hyvällä sijainnilla ja kauniilla pihalla.
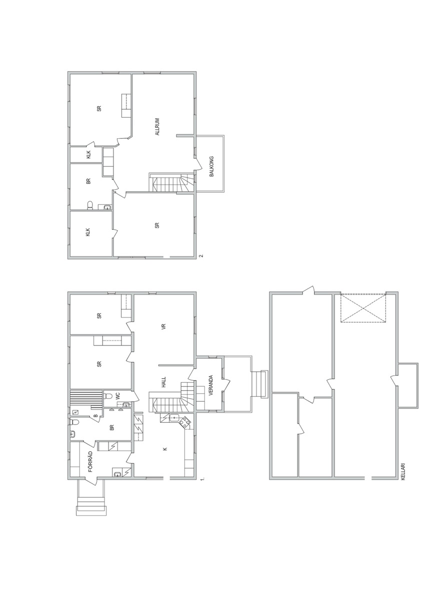
Talo on Simonshusin rakennuttama, ja se on rakennettu 1/2/3-kerroksinen pohja kellarikerroksella koko vuoden ajan 2007. Katto on päällystetty tiilellä ja julkisivu on verhoiltu puupanelilla, ja ikkunat ovat termopaneeliset.
Talossa on alakerrassa eteinen, avara keittiö, olohuone, kaksi makuuhuonetta, kylpyhuone, wc, kodinhoitohuone/varastotila ja sauna.
Yläkerrassa on aulatila, kaksi makuuhuonetta, vaatehuone ja kylpyhuone. Kauniit parvekkeet puupenkeillä etelään ja länteen sekä länsiparvekkeella on mahdollisuus nauttia auringosta ja rentoutua ulkona.
Ympärillä on noin 218 m²:n pihapiiri ja kellarissa runsaat 95 m²:n varastotilat.
Keittiö on tilava ja modernisti varusteltu sähköllä, jääkaappipakastin, liesi, astianpesukone, mikroaaltouuni ja uuni, mikä tekee ruoanlaitosta vaivatonta.
Kylpyhuoneet on sisustettu klinkkerilattialla, laatoitetuilla seinillä, suihkulla, käsisuihkulla ja wc:llä. Kylpyhuoneisiin johtaa myös kodinhoitohuoneesta.
Kodin lattiat ovat parkettia ja sisätilojen materiaalit ovat laminaattia, tapetoituja ja maalattuja seiniä sekä maalattuja sisäkattoja.
Talossa on vesikiertoinen lattialämmitys ja ilmalämpöpumppu, jotka on asennettu 2024.
Yläkerrassa on myös ilmalämpöpumppu ja huoneistokohtainen ilmanvaihto.
Talossa on vesijohto, kunnallinen viemäri ja kaapeli-tv.
Keskusimurijärjestelmä ei ole toiminnassa, mutta energiatodistus on tehty vuonna 2025 ja energialuokka on C.
Tarkastus ja energiatodistus ovat voimassa elokuusta 2025.
Tontti on noin 1705 m² ja se on suunniteltu huolellisesti. Tontti on tarkoitettu enintään kahdelle omakotitalolle, joista yksi on 233 m² ja siihen liittyy mahdollisuus rakentaa vielä 279 m² lisärakennusoikeutta.
Tontti sisältää terassat, pihamaat, muurit, ulkovalaistukset, istutukset, kukat ja hedelmäpuut, mikä tekee siitä viihtyisän, rauhallisen ja suojaisan myös asuinalueena.
Läheisyydestä löytyvät koulut, päiväkodit, urheilukentät sekä kunnalliset palvelut Kyrkobystä ja Maxingesta, noin 2,5 km päässä.
Saapuminen sopimuksen mukaan.
Myyjä vastaa ostajan vahvistusvastikkeesta (138 €), varainsiirtoverosta (3 % ostohinnasta).
