Metsärinne 2a

4 h, k, kph, s, khh, ak.

Pinta-ala

117 m²

Myyntihinta

479 000,00 €

Velaton hinta

479 000,00 €

Sijainti

20660 Littoinen

Tyyppi

omakotitalo

Kerros

1 / 1

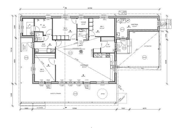
Tervetuloa tutustumaan moderniin ja toimivapohjaiseen omakotitaloon, joka valmistuu kesäkuussa 2026.
Tämä yhteen tasoon rakennettava koti tarjoaa helppoa ja esteetöntä asumista.

Kodissa yhdistyvät selkeä arkkitehtuuri, avarat oleskelutilat ja huolella suunnitellut neliöt. Yksitasoinen pohjaratkaisu tekee arjesta sujuvaa. Valoisat oleskelutilat avautuvat sujuvasti keittiön ja ruokailutilan kanssa muodostaen kodin sydämen, jossa on tilaa yhdessäololle. Olohuoneeseessa takkavaraus.

Rakentajana toimii luotettava ja laadustaan tunnettu Tosrak Oy, jonka toteutuksessa korostuvat viimeistelty työnjälki, energiatehokkaat ratkaisut ja asumismukavuus. Rakentamisessa huomioidaan nykyaikaiset materiaalit ja kestävät valinnat, jotka takaavat huolettoman asumisen vuosiksi eteenpäin.

Kalttassuon alue tarjoaa rauhallisen ja viihtyisän asuinympäristön, jossa luonto on lähellä, mutta arjen palvelut ovat helposti saavutettavissa.

Tämä koti on erinomainen valinta sinulle, joka arvostat laadukasta uudiskohdetta, toimivaa pohjaratkaisua ja huoletonta asumista yhdessä tasossa.

Muutamat plussat mitkä kannattaa huomioida:

Energiatehokkuusluokka: A
Arvioitu vuosikulutus: 9000 kWh
Ilma-Vesilämpöpumppu, vesikiertoinen lattialämmitys
Aurinkopaneelit: 11 kpl yhdessä rivissä (mahdollisuus lisätä paneeleita)
Takkavaraus
Normaalia korkeampi huonekorkeus: K, Oh, Mh3, ET ~2800 mm
Katettua terassia: +50 m²
Päämakuuhuoneesta käynti suoraan terassille
Iso täyslämmin tekninen tila / Varasto: 12,4 m²
Yhden auton tilava katos
Sähköauton latausasema kuorman hallinnalla
Kalttassuontien saneeraus valmis kesäkuu 2026

Esittelyt ja lisätiedot:

Petri Abrahamsson p. 0400-905 599 tai
petri.abrahamsson@aktialkv.fi

Perustiedot

Tyyppi
omakotitalo
Velaton hinta
479 000,00 €
Myyntihinta
479 000,00 €
Neliöhinta
3 172,19 €
Rakennusvuosi
2026
Kuvaus
4 h, k, kph, s, khh, ak.
Vapautuminen
30.6.2026
Tilat ja varustelu
oma sauna, sähköliittymä siirtyy, kulku suoraan ulos
Koko
4 h
Pinta-ala
117 m²
Muu pinta-ala
0
Kokonaispinta-ala
151 m²
Kerros
1
Yleiskunto
uusi
Energialuokka
A2018

Kustannukset

Lisätietoa maksuista
Käyttömaksut määräytyvät käytön mukaan. Rakennus valmistuu kesällä 2026 joten tarkkoja tietoja maksuista ei ole saatavilla. Sähkön arvioitu vuosikulutus n. 9.000 kWh/v (lämmitys / normaali käyttösähkö), vesi kulutuksen mukaan, puhtaanapito (roskis) n. 12 euroa per tyhjennyskerta, varainsiirtovero 3 % kauppahinnasta.

Tontti ja kaavoitus

Lisätietoa tontista
Pihatyöt tehdään kun sää sen sallii. Tontin kolme reunaa tullaan aitaamaan Tuija-aidalla.
Tontin pinta-ala
769 m²
Tontin omistus
oma
Tontin tyyppi
Tasamaatontti
Lisätietoa kaavoituksesta
Kaarinan kaupungin asemakaavaosasto.
Rakennusoikeus
Kaarinan kaupungin rakennusvalvonta.

Kohteen kuvaus

Tontin pinta-ala
769 m²
Kiinteistötunnus
202-2-2208-15
Tontin omistus
oma
Muuta
oma sauna, sähköliittymä siirtyy, kulku suoraan ulos

Materiaalit, varusteet ja lämmitys

Rakennusmateriaali
puu
Kattotyyppi
Harja
Kate
pelti
Lämmitysjärjestelmä
ilmavesilämpöpumppu
Takka
takkavaraus

Taloyhtiö

Tontin omistus
oma

Keittiö

Seinämateriaali
maalattu
Lattiamateriaali
parketti
Varustelu
mikroaaltouuni astianpesukone liesituuletin / hormi
Liesi
induktio erillisuuni
Jääkaappi
jääkaappi pakastin

Pesutilat

Seinämateriaali
kaakeli
Lattiamateriaali
laatta
Varustelu
lattialämmitys suihku

Kodinhoitohuone

Seinämateriaali
kaakeli maalattu
Lattiamateriaali
laatta
Varustelu
pesukoneliitäntä pesuallas lattialämmitys pyykkikaapit pöytätaso

WC:t

Lukumäärä
2
Seinämateriaali
kaakeli maalattu
Lattiamateriaali
laatta

Oleskelutilat

Seinämateriaali
maalattu
Lattiamateriaali
parketti

Makuuhuoneet

Lukumäärä
3
Lattiamateriaali
parketti

Muut tilat

Muut tilat
Terassi

Ota yhteyttä välittäjään

Jaa sivu

Jatka selailua