Kapteeninkatu 36
2h, k
Pinta-ala
60 m²
Myyntihinta
141 624,66 €
Velaton hinta
145 000,00 €
Sijainti
65200 Vaasa
Tyyppi
kerrostalo
Kerros
6 / 8
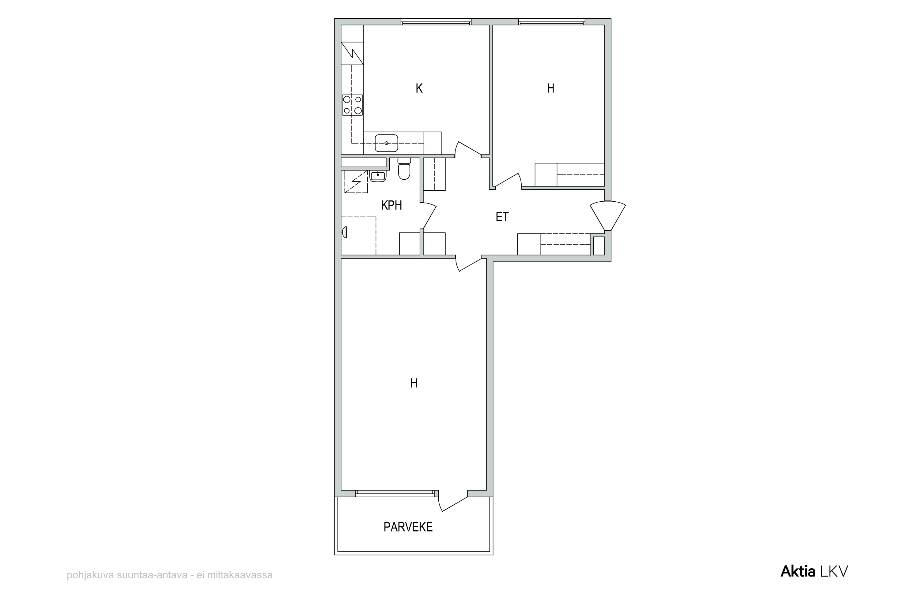
Valoisa ja hyväkuntoinen kaksio hissitalon kuudennessa kerroksessa odottaa uusia asukkaita! Tämä läpitalon huoneisto on remontoitu vaalein, ajattomin sävyin vuonna 2014, ja se huokuu modernia mukavuutta ja valoisuutta.
Sijainti on erinomainen – aivan korkeakoulujen, keskustan ja Palosaaren palveluiden läheisyydessä. Taloyhtiössä on tehty kattavasti suuria peruskorjauksia: mm. ikkunat, ovet, hissit ja katto on jo uusittu, joten voit muuttaa huoletta ilman suuria remonttihuolia.
Tilava, lasitettu länsiparveke tarjoaa iltapäivän ja illan auringonpaisteen ja pienen pilkahduksen merimaisemaa.
Asumiskustannukset ovat edulliset, ja kokonaisuus sopii loistavasti niin sijoittajalle vuokrakohteeksi kuin omaksi kodiksikin. Tervetuloa tutustumaan – tämä koti saattaa olla juuri se, mitä etsit!
Ota yhteyttä ja sovi esittely Paula Hirvonen puh. 050-349 1801 tai paula.hirvonen@aktialkv.fi
---------------------------------------
Ljus och välskött tvåa på sjätte våningen i hus med hiss – söker nya ägare!
Denna genomgångslägenhet renoverades år 2014 i ljusa och tidlösa toner och utstrålar modern komfort och rymd.
Läget är utmärkt – med närhet till högskolor, centrum och alla bekvämligheter i Brändö. Bostadsbolaget har redan genomfört omfattande renoveringar, såsom fönster, dörrar, hissar och tak – du kan alltså flytta in utan att behöva oroa dig för stora reparationer.
En rymlig, inglasad balkong i västerläge ger eftermiddags och kvällssol och en liten glimt av havet.
Boendekostnaderna är förmånliga, vilket gör detta till ett perfekt val både för investerare som söker en hyreslägenhet och för dig som letar efter ett nytt hem.
Välkommen på visning – kanske är detta ditt nästa hem!
Ta kontakt och boka visning Paula Hirvonen tfn 050-349 1801 eller paula.hirvonen@aktialkv.fi
