Hallinpellontie 6

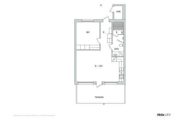
2h+k+s

Storlek

51 m²

Försäljningspris

134 000,00 €

Skuldfritt pris

134 000,00 €

Område

07500 Askola

Typ

radhus

Våning

1 / 1

2h, keittiö, sauna, varasto, takaterassi, -piha, autokatospaikka

15 km Porvoon keskustasta, maaseudun hiljaisuudessa Uudellamaalla Askolan kirkonkylässä
sijaitseva hyvämaineisen rakennuttajan PPR Oy:n vuonna 7/2022 rakennuttama laadukas ja
energiatehokas yksitasoinen kaksioasunto.
Palvelut (apteekki, terveysasema, kirjasto, ruokakauppa, kuntosali, pizzeria, kukkakauppa) ovat
400 m kävelymatkan etäisyydellä.
Avara olohuone - keittiöyhdistelmä on tilava;
Keittiö on varustettu integroiduilla koneilla, valkoisella kvartsityötasolla, -välitilalla sekä
puisilla kaapistoilla.
Koko huoneiston lattiat ovat kuultovalkoista lankkuparkettia.
Asunto on varustettu omalla saunalla ja kattavilla säilytysratkaisuilla sekä omalla varastolla.
Kylpyhuoneessa on kestävä, pitkäikäinen kvartsihiekkapohjainen porcellanato ja LVI-kalusteet
poikkeavat tyylikkäästi massasta.
Huoneiston avara tunnelma jatkuu eteläpihalle, jostaa löytyy tilava, puolikatettu terassi pihoineen.
Taloyhtiö on velaton ja sijaitsee omalla rinnetontilla. Yhtiön hoitovastike sisältää myös
lämmityksen.
Tilat lämpenevät vesikiertoisella lattialämmityksellä. Lämmön tuotannosta vastaa energiatehokas
vesi-ilmalämpöpumppu ja asunnossa on lämmön talteenotolla varustettu koneellinen ilmanvaihto.
Myyjä myy yhden autokatos-osakepaikan kaupan yhteydessä EUR 4000 lisähintaan.

Grunduppgifter

Typ
radhus
Form av ägande
oma
Skuldfritt pris
134 000,00 €
Försäljningspris
134 000,00 €
Pris per kvadrat
2 627,45 €
Byggnadsår
2022
Beskrivning av objektet
2h+k+s
Bostaden blir ledig
enligt överenskommelse
Lokaler och utrustning
egen bastu
Antal rum
kaksio
Bostadsyta
51 m²
Övriga utrymmen
0
Yta totalt
51 m²
Våning
1
Allmänt skick
bra
Energiklass
B2018

Kostnader

Skötselvederlag
216,75 €
Bolagsvederlag tot.
216,75 €
Vattenavgift
20,00 €
Övriga avgifter
Vesiennakko on 20,00/kk/hlö. Tasauslasku 1 kerta/vuosi.

Tomt och planläggning

Tomtens areal
1 444 m²
Tomtägare
oma

Objektets beskrivning

Tomtens areal
1 444 m²
Tomtägare
oma
Annat
egen bastu

Material, utrustning och uppvärming

Byggmaterial
puu betoni
Taktyp
pulpettikatto
Taktäckning
peltikate
Värmesystem
ilmavesilämpöpumppu

Bostadsbolag

Bostadsbolag
Asunto Oy Askolan Satulinna
Ansvar för fastighetsskötsel
asukkaat
Genomförda renoveringar i bostadsbolaget
Kohde on valmistunut vuonna 2022 ja tiedossa ei ole mitään merkittäviä korjaus- tai muutoshankkeita.
Tomtägare
oma

Kök

Väggmaterial
maalattu
Golvmaterial
parketti
Utrustning
liesituuletin / hormi
Spis
keraaminen erillisuuni
Kylskåp
jääkaappi/pakastin

Badrum

Väggmaterial
kaakeli
Golvmaterial
laatta
Utrustning
suihkuseinä pesukoneliitäntä lattialämmitys wc-istuin suihku peili kiinteät valaisimet asennettuja erikoisvarusteita

Vardagsrum

Väggmaterial
maalattu
Golvmaterial
parketti

Sovrum

Antal
1
Golvmaterial
parketti

Övriga utrymmen

Övriga utrymmen
Eteinen Terassi

Kontakta mäklaren

Dela sidan

Fortsätt utforska