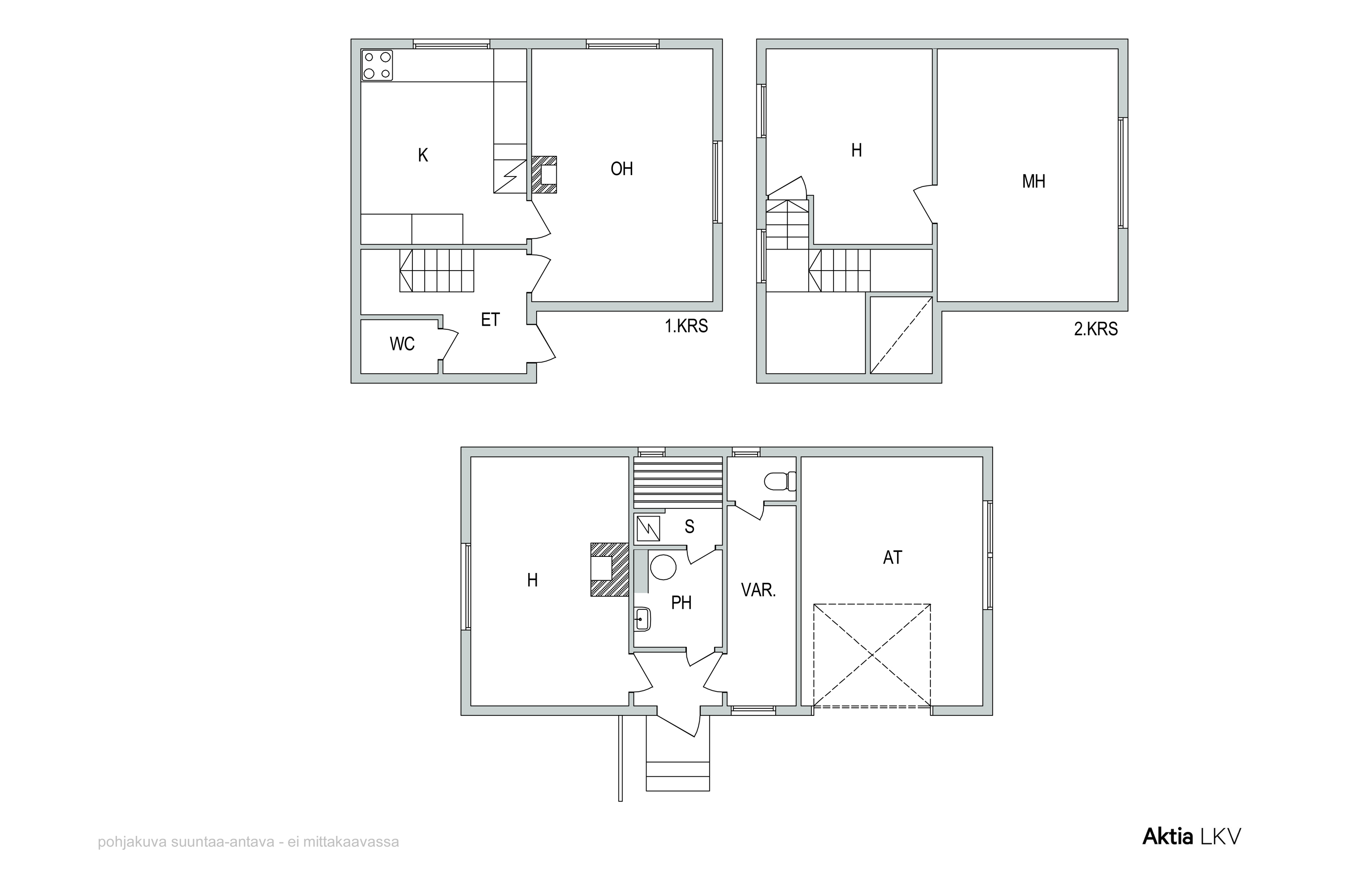
Bromaninmäki 46
3h,k,wc
Storlek
40 m²
Försäljningspris
95 000,00 €
Skuldfritt pris
95 000,00 €
Område
07289 Ilola
Typ
stuga eller villa
Våning
1-2 / 2
Kaunis pieni "piparkakkutalo" korkealla Bromaninmäen kukkulalla. Mikäli etsit vapaa-ajan asuntoa jossa voit myös viettää tunnelmallisia talviviikonloppuja, joulupyhiä ym. tässä olisi mainio vaihtoehto vapaa-ajan asumiseen idyllisen Ilolan kylässä. Lyhyt matka Porvooseen tai jos siltä tuntuu, nopeasti läheisen moottoritieliittymän kautta Helsingin melskeeseen. Kiva pihapiiri jossa erillinen piharakennus missä saunatupa, sauna ja autotalli. Kohde myydään irtaimistoineen. Heti vapaa! Yksityisesittelyt; mikael.stromfors@aktialkv.fi
Ett litet vackert hus "ståtligt" belägen uppe på Bromansbacken i idylliska Illby by. Huset säljes som fritidshus vari allt lösöre ingår. På tomten även gårdshus med bastu, gillestuga och garage. Något för den som även önskar tillbringa i sitt fritidshus vinterveckoslut, julferier mm. i lite spartanska förhållanden men med stor "mysfaktor". Genast tillgänglig. Privatvisningar; mikael.stromfors@aktialkv.fi
