Kirkkojärventie 10

2h+kt+s

Storlek

50,5 m²

Försäljningspris

208 955,60 €

Skuldfritt pris

209 000,00 €

Område

02770 Espoo

Typ

höghus

Våning

5 / 5

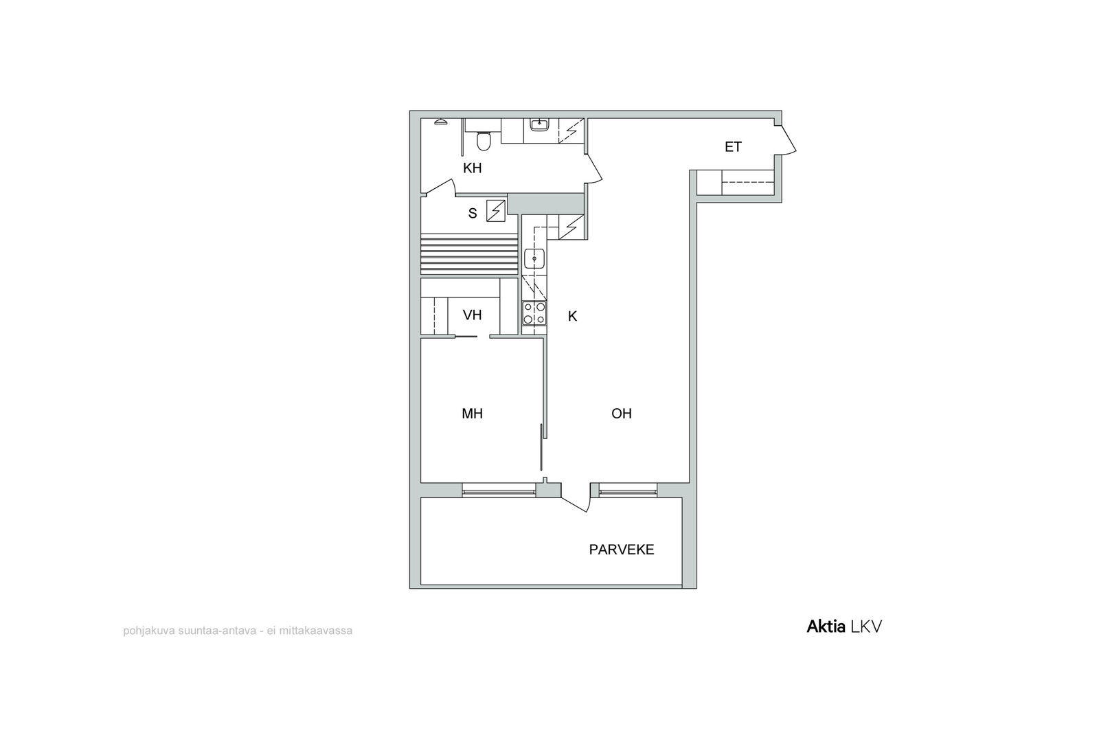
Vuonna 2020 valmistuneessa yhtiössä ylimmässä kerroksessa sijaitseva kaksio avarin näkymin yli Espoon keskuksen. Asunnossa on erinomainen avara pohja ja koko huoneiston levyinen lasitettu parveke. Olohuone, keittiö ja ruokailutilat ovat yhtä isoa yhtenäistä tilaa. Kylpyhuoneen yhteydessä oma sauna ja makuuhuoneen yhteydessä tilava vaatehuone. Tyylikäs hyvin pidetty koti. Asuntoon on asennettu myös ilmalämpöpumppu viilentämään kesän helteitä.

Erinomaiset liikenneyhteydet moneen suuntaan, hyvät pyörätiet ja alueella monipuoliset palvelut sekä ulkoilu- ja liikuntamahdollisuudet. Nuuksio ja Oittaa eivät sijaitse kaukana.

Mahdollisuus ostaa kaupan yhteydessä autohallipaikkaosake. Tämän asunnon osalta ei ole lunastettu tonttiosuutta.

Tiedustelut:

mirja.matikainen@aktialkv.fi

Grunduppgifter

Typ
höghus
Form av ägande
oma
Skuldfritt pris
209 000,00 €
Försäljningspris
208 955,60 €
Pris per kvadrat
4 138,61 €
Byggnadsår
2020
Beskrivning av objektet
2h+kt+s
Bostaden blir ledig
enligt överenskommelse
Lokaler och utrustning
egen bastu, kabel-tv, balkong, hiss, eget avtal med tjänstleverantören
Antal rum
kaksio
Bostadsyta
50,5 m²
Övriga utrymmen
0
Yta totalt
50,5 m²
Våning
5
Allmänt skick
bra
Energiklass
B2018

Kostnader

Skötselvederlag
252,50 €
Finansieringsvederlag
7,58 €
Bolagsvederlag tot.
260,08 €
Vattenavgift
20,00 €
Övriga avgifter
Taloyhtiön osakeluettelo on siirretty MML:n huoneistotietojärjestelmään ja oimistusoikeus perustuu sähköiseen omistajamerkintään. Ostaja on tietoinen, että hänen tulee viipymättä kaupanteon jälkeen hakea omistusoikeutensa rekisteröintiä Maanmittauslaitokselta. Ostaja vastaa oimistusoikeuden rekisteröintikustannuksista. Lisäksi saattaa syntyä pankkien määräämiä kuluja. Ostaja maksaa varainsiirtoveron 1,5 % velattomasta kauppahinnasta kaupantekotilaisuudessa.

Tomt och planläggning

Tomtens areal
2 255 m²
Tomtägare
valinnainen vuokratontti

Objektets beskrivning

Tomtens areal
2 255 m²
Tomtägare
valinnainen vuokratontti
Annat
egen bastu, kabel-tv, balkong, hiss, eget avtal med tjänstleverantören

Material, utrustning och uppvärming

Byggmaterial
elementti betoni
Taktyp
tasakatto
Taktäckning
huopa
Värmesystem
kaukolämpö muu

Bostadsbolag

Bostadsbolag
As Oy Kaupunginpuiston Intro
Disponent
Ehta Isännöinti Ilona Helsky isannointi@granlund.f
Genomförda renoveringar i bostadsbolaget
- 2020 yhtiö on valmistunut - 2022 1-vuotis takuutarkastus, autohallin ja jätehuoneen kameravalvonnan lisääminen - 2023 2-vuotistakuutarkastus, rakennuttajan takuukorjaukset, vesikaton korjaukset / Kattotutka - 2024 vesikaton katselmus osana kuntosuunnitelmaa - 2025 ilmanvaihtojärjestelmän säätö ja puhdistus, älyhanojen pattereiden vaihtaminen -
Planerade renoveringar i bostadsbolaget
2026-2027 parvekkeiden ja ikkunoiden kuntotarkastus ja huolto, vesikaton materiaalin, sadevesijärjestelmän rakenteiden tarkistus, asuntojen liesituuelttimien kannan vaihtaminen uutta polttimoa varten (jaetaan usealle vuodelle), latausasemien rakentaminen ulkopuolisen operaattorin laskuttaman mallin mukaisesti, palovaroittimien patterien vaihto, intron ja Lumon yhteisten viemärien huuhtelu ja kuvaus 2028-2029 varastojen lattioiden maalaustyöt, julkisivujen dronepuhdistus, ala-aulojen huoltomaalaus, 10-v vastuutarkastus 2030-2034 älyhanojen pattereiden vaihtaminen, ilmanvaihtojärjestelmän säätö ja puhdistus, parvekkeiden ja ikkunoiden kuntotarkastus ja huolto
Tomtägare
valinnainen vuokratontti

Kök

Golvmaterial
laminaatti
Utrustning
liesituuletin mikroaaltouuni astianpesukone
Spis
erillisuuni liesitaso
Kylskåp
jääkaappi/pakastin

Badrum

Väggmaterial
kaakeli
Golvmaterial
laatta
Utrustning
suihkuseinä pesukoneliitäntä lattialämmitys wc-istuin suihku

Vardagsrum

Väggmaterial
maalattu
Golvmaterial
laminaatti

Sovrum

Antal
1
Golvmaterial
laminaatti

Övriga utrymmen

Övriga utrymmen
Eteinen

Kontakta mäklaren

Dela sidan

Fortsätt utforska