Halmstadsgatan 3
3r, k, bdr
Storlek
48 m²
Försäljningspris
63 485,00 €
Skuldfritt pris
92 000,00 €
Område
10900 HANGÖ
Typ
höghus
Våning
4 / 4
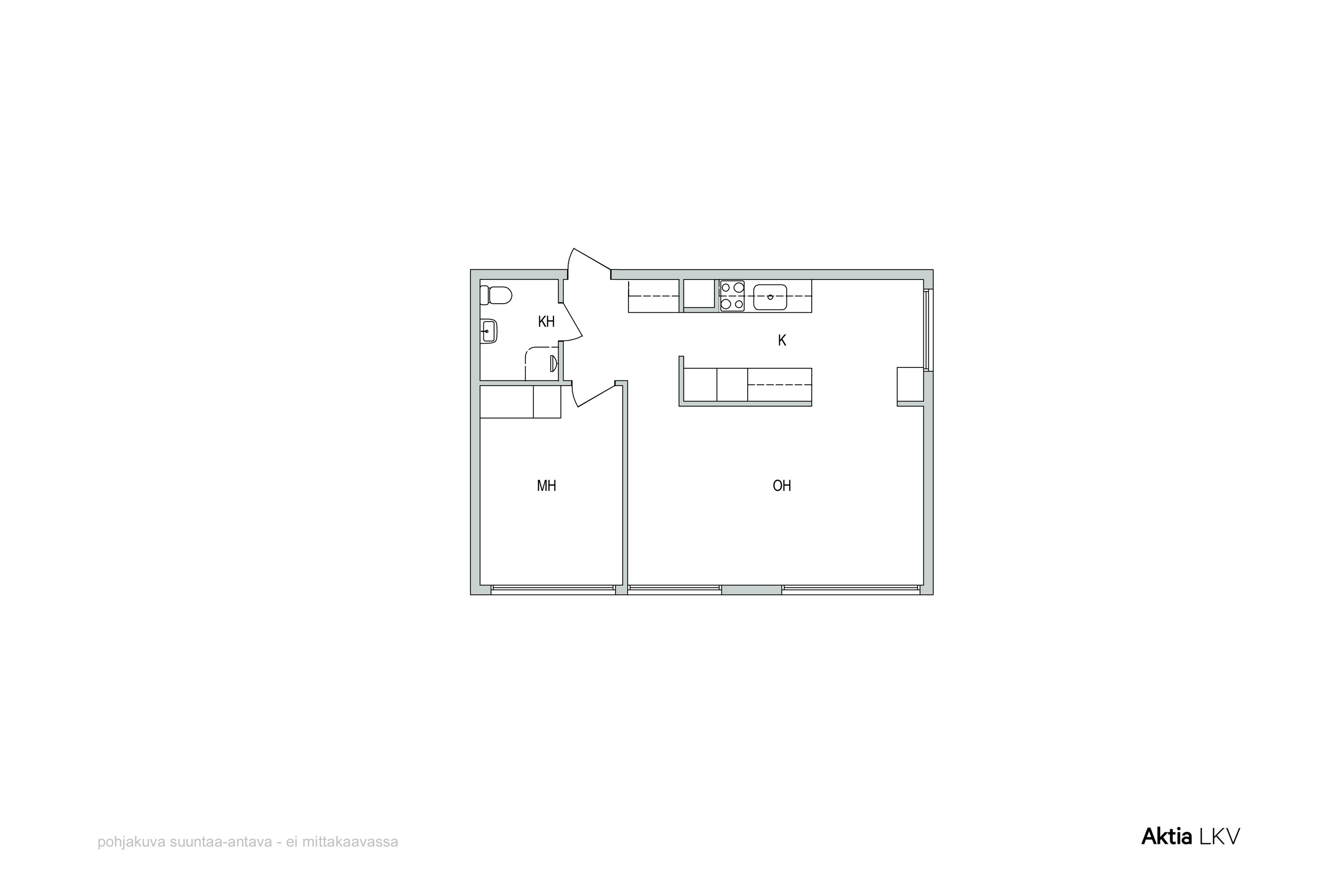
Mitt i centrum belägen väl hållen trea i husets översta våningen. Bra och hemtrevlig bottenplan. Bostaden består av kök, vardagsrum, 2 sovrum och renoverad badrum. Byggt 1958. Jordvärme.

Grunduppgifter
Typ
höghus
Form av ägande
egen
Skuldfritt pris
92 000,00 €
Försäljningspris
63 485,00 €
Pris per kvadrat
1 916,67 €
Byggnadsår
1957
Beskrivning av objektet
3r, k, bdr
Lokaler och utrustning
kabel-tv, eget avtal med tjänstleverantören
Volym
2 rum
Yta
48 m²
Yta totalt
48 m²
Våning
4
Allmänt skick
tillfredsställande
Energiklass
C2018
Kostnader
Skötselvederlag
240,00 €
Finansieringsvederlag
319,20 €
Bolagsvederlag tot.
559,20 €
Vattenavgift
25,00 €
Tomt och planläggning
Tomtens areal
3 695 m²
Tomt
egen
Objektets beskrivning
Tomtens areal
3 695 m²
Tomt
egen
Annat
kabel-tv, eget avtal med tjänstleverantören
Material, utrustning och uppvärming
Byggmaterial
betong
Värmesystem
olja
jordvärme
Bostadsbolag
Bostadsbolag
Bost Ab Halmstadsgatan 3 Asunto Oy
Disponent
Olle Johansson 010 2812330
Ansvar för fastighetsskötsel
servicebolag
Garage
6
Genomförda renoveringar i bostadsbolaget
Lämpökattilat 1990, väestönsuoja 1993-1994, käyttövesiputket uusittu 1997-1998, ikkunat uusittu 1999, vesikatemaalaus 2008, öljypannu uusittu 2011, viemäriputkien pinnoitus 2012, siirtyminen maalämpöön ja vesivaraajan vaihto 2014, Runkovesilinjan vaihto A/B rappujen kellaritiloissa 2015. Katon vaihto ja tuuli-imurit katolle 2019
Planerade renoveringar i bostadsbolaget
2021 Ulko-ovien lukkojen uusiminen. 2022-2023 sadevesiviemäröinti+salaojitus. 2024-2026 Julkisivukunnostus.
Tomt
egen
Kök
Väggmaterial
målad
Golvmaterial
laminat
Utrustning
spisfläkt / filter
Öppen spis
elspis
Kylskåp
kylskåp/frys - kombiskåp
Badrum
Väggmaterial
kakel
Golvmaterial
klinker
Utrustning
duschskåp
wc
dusch
spegelskåp
badrumsskåp
Vardagsrum
Väggmaterial
målad
Golvmaterial
laminat
Övriga utrymmen
Övriga utrymmen
tambur