Esplanaden 88
2r, k, bdr, balk.
Storlek
56 m²
Försäljningspris
149 000,00 €
Skuldfritt pris
149 000,00 €
Område
10900 HANGÖ
Typ
höghus
Våning
3 / 3
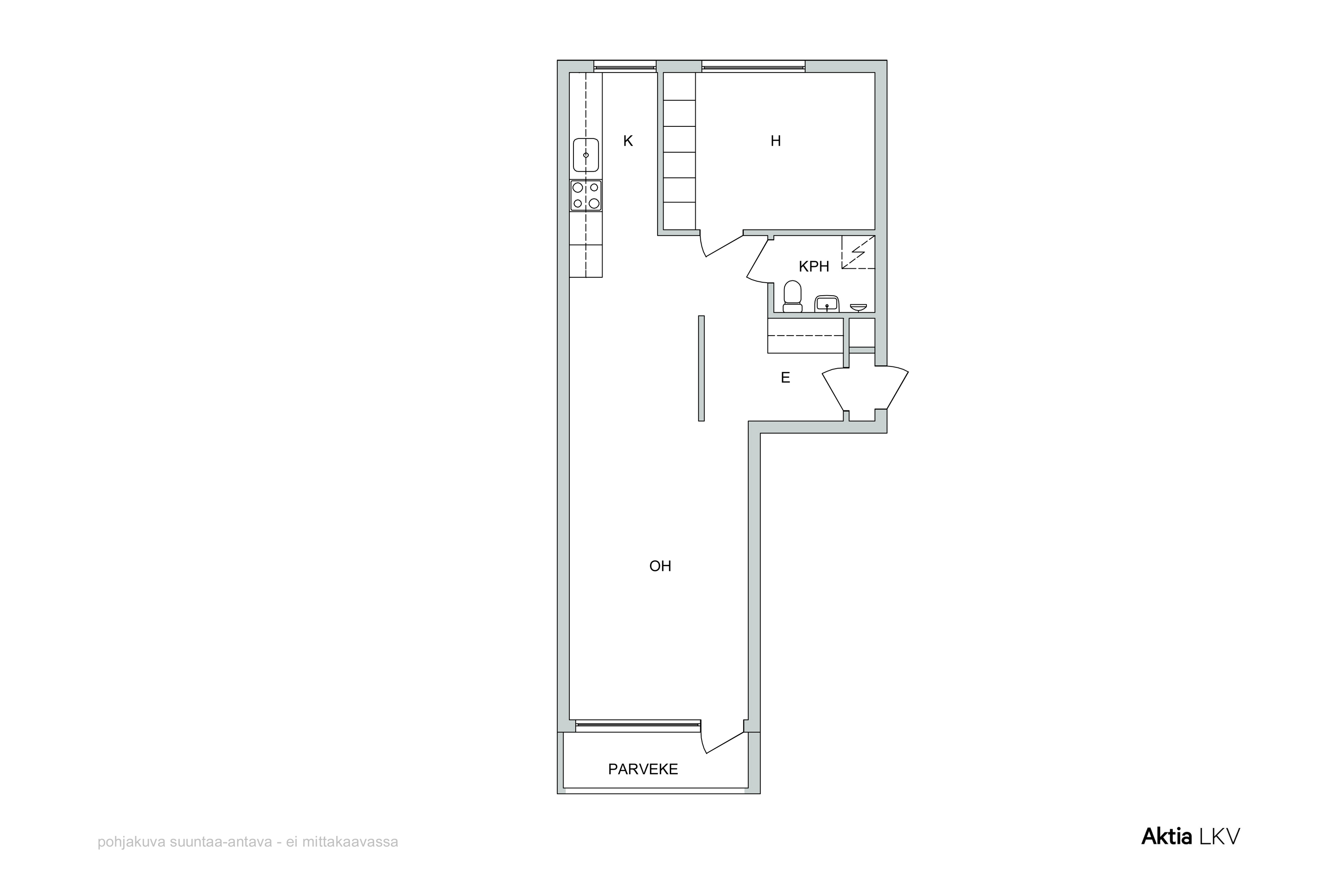
Rymlig höghustvåa i översta våningen. Bostaden består av kök, vardagsrum, sovrum, badrum/wc och balkong. Bra bottenlösning. Balkong mot söder. Centralt belägen bl.a post och butik på andra sidan vägen, nära skolor och trafikförbindelser.

Grunduppgifter
Typ
höghus
Form av ägande
egen
Skuldfritt pris
149 000,00 €
Försäljningspris
149 000,00 €
Pris per kvadrat
2 660,71 €
Byggnadsår
1965
Beskrivning av objektet
2r, k, bdr, balk.
Lokaler och utrustning
balkong, konditionsgranskning har inte utförts, fuktmätning har inte utförts
Volym
2 rum
Yta
56 m²
Yta totalt
56 m²
Våning
3
Allmänt skick
bra
Energiklass
C2018
Kostnader
Skötselvederlag
280,00 €
Bolagsvederlag tot.
280,00 €
Vattenavgift
25,00 €
Övriga avgifter
Till reparationsfond sparas 11,20 euro/månad (0,20 euro/m2)
Tomt och planläggning
Tomtens areal
1 536 m²
Tomt
egen
Objektets beskrivning
Tomtens areal
1 536 m²
Tomt
egen
Annat
balkong, konditionsgranskning har inte utförts, fuktmätning har inte utförts
Material, utrustning och uppvärming
Byggmaterial
betong
Taktyp
Pulpet
Taktäckning
Plåt/Filt
Värmesystem
fjärrvärme
Bostadsbolag
Bostadsbolag
Bostads Ab Hangö Esplanaden 88 Asunto Oy
Disponent
Benita Sandman-Nymark 0400-802695
Ansvar för fastighetsskötsel
servicebolag
Garage
2
Genomförda renoveringar i bostadsbolaget
Förnyande av vattentaket -98
Bruksvattenrören förnyade -01
Byte av fönster -04
Garagedörrar förnyade -07
Strumpning av avloppsrör 2015
Ventilation på taket -17
Belysning till gården -18
Planerade renoveringar i bostadsbolaget
Fiberkabel
Jordvärme
Tomt
egen
Kök
Väggmaterial
målad
Golvmaterial
laminat
Utrustning
diskmaskin
spisfläkt / filter
Öppen spis
keramisk spis
Kylskåp
kylskåp/frys - kombiskåp
Badrum
Väggmaterial
kakel
Golvmaterial
klinker
Utrustning
duschvägg
tvättmaskinsanslutning
golvvärme
wc
dusch
spegelskåp
badrumsskåp
Vardagsrum
Väggmaterial
målad
Golvmaterial
laminat
Sovrum
Antal
2
Golvmaterial
laminat
Övriga utrymmen
Övriga utrymmen
matplats
tambur