Fredsgatan 1
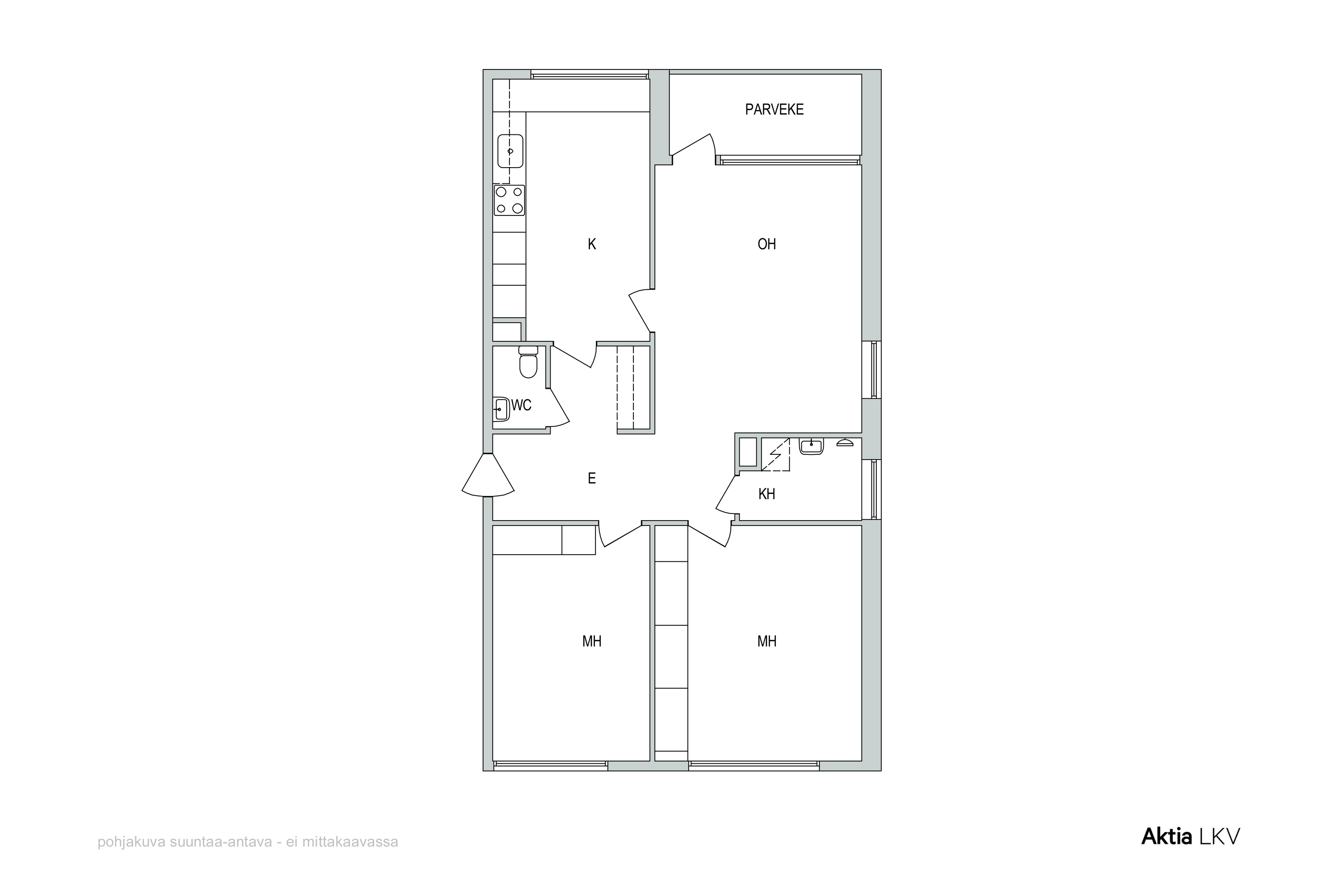
3r,k,bdr,wc,balkong
Storlek
80 m²
Försäljningspris
136 745,00 €
Skuldfritt pris
139 000,00 €
Område
10900 Hangö
Typ
höghus
Våning
3 / 3
xx

Grunduppgifter
Typ
höghus
Form av ägande
egen
Skuldfritt pris
139 000,00 €
Försäljningspris
136 745,00 €
Pris per kvadrat
1 737,50 €
Byggnadsår
1970
Beskrivning av objektet
3r,k,bdr,wc,balkong
Lokaler och utrustning
kabel-tv, balkong
Volym
3 rum
Yta
80 m²
Yta totalt
80 m²
Våning
3
Allmänt skick
bra
Energiklass
D2018
Kostnader
Skötselvederlag
384,00 €
Finansieringsvederlag
40,00 €
Bolagsvederlag tot.
424,00 €
Vattenavgift
30,00 €
Tomt och planläggning
Tomtens areal
3 600 m²
Tomt
egen
Objektets beskrivning
Tomtens areal
3 600 m²
Tomt
egen
Annat
kabel-tv, balkong
Material, utrustning och uppvärming
Byggmaterial
betong
Taktyp
Flattak
Taktäckning
Filt
Värmesystem
fjärrvärme
Bostadsbolag
Bostadsbolag
Asunto Oy Hangon Rauhankatu 1
Disponent
OP-Filia Oy Ab, Jesper Westerholm, jesper.westerholm@op.fi, puh. 010 257 3474
Ansvar för fastighetsskötsel
servicebolag
Garage
6
Genomförda renoveringar i bostadsbolaget
2019 jätevesipohja- ja tonttiviemärin kuvaus. 2017 IV-kanavien nuohous ja ilmamäärien säätö. 2017 Viemäriputkien kuntotutkimus. 2016 Katon sadevesikaivot uusittu ja paloluukkujen kansien rakenteet korjattu. 2014 Ikkunat ja parvekkeiden ovet uusittu Pihla. 2014 Julkisivut maalattu, parvekkeet korjattu, porraskäytävien seinät maalattu ja lattioiden pinnoitteet uusittu. 2012 Liittyminen kaukoverkostoon. 2000 KV-käyttövesiputkiston osittainen uusiminen.
Planerade renoveringar i bostadsbolaget
2021 Hulevesi linjan päivitys. 2022 Lämpöjohtoverkoston venttiilien uusiminen. 2023 Märkätilojen kunto kartoitetaan. 2024 Käyttövesiverkoston seurantatutkimus.
Tomt
egen
Kök
Väggmaterial
målad
Golvmaterial
laminat
Utrustning
diskmaskin
integrerad armatur
Öppen spis
keramisk spis
Kylskåp
kylskåp/frys - kombiskåp
Badrum
Väggmaterial
kakel
målad
Golvmaterial
annat
Utrustning
tvättmaskinsanslutning
dusch
spegel
integrerad armatur
WC
Antal
1
Väggmaterial
kakel
målad
Golvmaterial
plast
Vardagsrum
Väggmaterial
målad
Golvmaterial
laminat
Sovrum
Antal
2
Golvmaterial
laminat
Övriga utrymmen
Övriga utrymmen
tambur