Suonotkontie 1

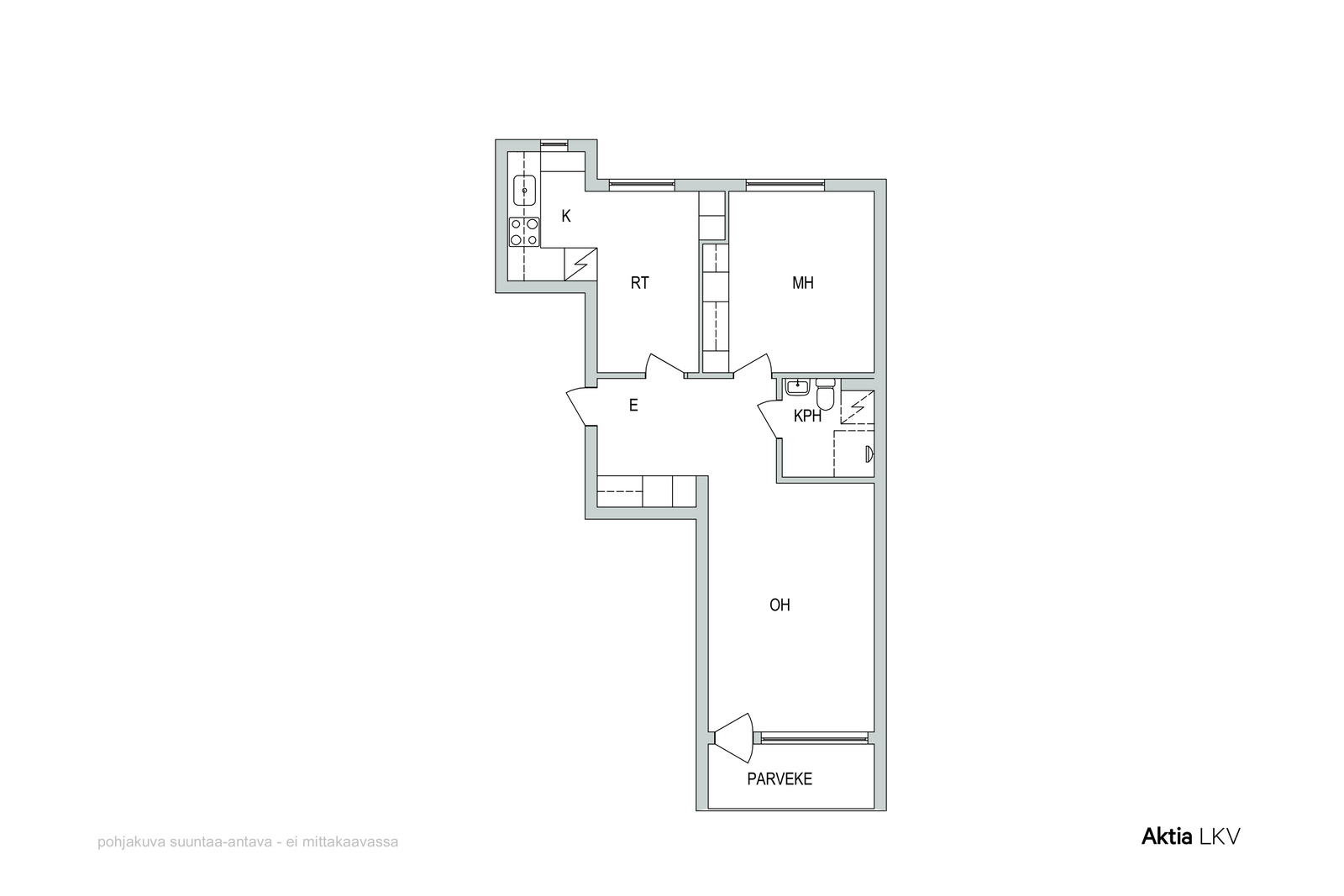
2h,kk,eteinen, kph, parv (yj 2r+k+mp)

Storlek

60,5 m²

Försäljningspris

161 795,31 €

Skuldfritt pris

179 000,00 €

Område

00630 Helsinki

Typ

höghus

Våning

3 / 4

Valoisa ja vapaa kaksio Maunulan sydämessä!

Tervetuloa tutustumaan tähän tilavaan ja viihtyisään kaksioon, joka sijaitsee hyvin hoidetussa taloyhtiössä. Asunnossa on suuret, valoisat huoneet ja olohuoneesta käynti omalle parvekkeelle, josta näkymät taloyhtiön pihalle.

Keittokomeron yhteydessä oleva ruokailutila tekee arjesta sujuvaa, ja makuuhuoneessa on runsaasti säilytystilaa. Kylpyhuone on uusittu linjasaneerauksen yhteydessä 2012–2013.
Pohjaratkaisu on muunneltavissa kolmioksi, mikä antaa mahdollisuuksia erilaisiin elämäntilanteisiin. Ei hissiä.

Taloyhtiössä on isot remontit tehty, ja kaikki palvelut löytyvät läheltä. Erinomaiset liikenneyhteydet – Raide-Jokeri ja useat bussilinjat vievät kätevästi moneen suuntaan.

Nykyinen omistaja on viihtynyt täällä pitkään – nyt on sinun vuorosi löytää kotisi tästä talosta!
Maunulassa on mukava asua – tule ja ihastu!
**********************************************************
Ljus och ledig tvåa i hjärtat av Månsas!

Välkommen till denna rymliga och trivsamma tvåa i ett välskött husbolag. Lägenheten har stora, ljusa rum och egen balkong med utsikt mot gården.
Praktisk kokvrå med matplats och gott om förvaring i sovrummet. Badrummet renoverat i samband med stambytet 2012–2013. Planlösningen kan enkelt göras om till tre rum.

Alla tjänster finns nära. Utmärkta trafikförbindelser – Raide-Jokeri och flera busslinjer tar dig smidigt dit du ska. Ta chansen att skapa ditt hem här! Månsas är en trivsam stadsdel att bo i.

tiedustelut ja esittelyt:
förfrågningar och visningar:
Viveka Tverin, 050 560 7093, viveka.tverin@aktialkv.fi

Grunduppgifter

Typ
höghus
Form av ägande
oma
Skuldfritt pris
179 000,00 €
Försäljningspris
161 795,31 €
Pris per kvadrat
2 958,68 €
Byggnadsår
1963
Beskrivning av objektet
2h,kk,eteinen, kph, parv (yj 2r+k+mp)
Bostaden blir ledig
genast
Lokaler och utrustning
kabel-tv
Antal rum
kaksio
Bostadsyta
60,5 m²
Övriga utrymmen
0
Yta totalt
60,5 m²
Våning
3
Allmänt skick
tillfredsställande
Energiklass
E2018

Kostnader

Skötselvederlag
310,25 €
Finansieringsvederlag
208,05 €
Bolagsvederlag tot.
518,30 €
Vattenavgift
27,00 €
Övriga avgifter
autotallivuokra 80 e/kk

Tomt och planläggning

Tomtens areal
9 194 m²
Tomtägare
vuokrattu

Objektets beskrivning

Tomtens areal
9 194 m²
Tomtägare
vuokrattu
Annat
kabel-tv

Material, utrustning och uppvärming

Byggmaterial
tiili
Taktyp
Harjakatto
Taktäckning
Peltikate
Värmesystem
kaukolämpö

Bostadsbolag

Bostadsbolag
Bostads Ab Storkärrsvägen 8
Disponent
Granlund Isännöinti Oy, isännöitsijä Veera Hannula, isannointi@granlund.fi, 09 -2500 6250
Ansvar för fastighetsskötsel
huoltoyhtiö
Garage
13
Genomförda renoveringar i bostadsbolaget
1999 parvekkeiden ovet, 2002 lämmönjakohuoneen perusparannus, 2003 pohjois ja itäpuolen ikkunat, kaapelitelevisio, 2006 kattojen maalaus, 2007 parvekkeiden peruskorjaus, 2008 jätekatoksen ovet, piippuhatut, kuivaushuoneiden koneiden uusiminen, kellareiden valaistuksen parantaminen, 2009 saunan pesuhuoneen pintaremontti, parkkipaikan laajennus, viemäriverkoston huuhtelu ja kuvaus, 2010 pesutuvan kunnostus, 2009-10 lämmitysjärjestelmän tasapainoitus, 2010 patteriventtiilit vaihdettu ja linjasulkuventtiilit uusittu, 2011 linjasaneerauksen suunnittelu, 2013 porrashuoneien akustiikkalevyt, autotallien ovien ja kynnysten kunnostus, nousutikkaat, kellaritiojen maalaus, verkkovarastot uusittu, WEB sähkö, sade-ja hulevesiliitos, koneellinen ilmanpoisto, linjasaneeraus, 2015 B-talo salaojaurakka, 2016 jätekatos, 2017 julkisivun ja katon kuntotutkimus, 2017 tukimuurien, sisäänkäyntien, porrastasojen ja kaiteiden kunnostukset. 2018 leikkialueen kunnostus, 2019 vesikaton ja rännien uusinta, rappauskunnostuksia, 2020 pihan kunnostusta, rappauskunnostuksia, 2021 salaojien kuvaus, IV-kanavien kuvaukset (A ja D)A-talon molempien päätyjen ja etuosan salaojasuunnittelu, 2022 energiaselvitys, autopaikkojen hybridi- ja sähköautojen lataustolppien toteuttaminen A-talon pysäköintialueella, IV kanavien ilmavuotojen korjaukset ( A ja D), 2022-2023 puuttuvien salaojien ja sadevesikaivojen linjaston toteutus ( A-talo), 2023 hajulukkojen tarkastukset, julkisivujen ja parvekkeiden kuntotutkimus, rakennusten enegistodistusten päivitys, tukimuurin kaiteen asennus, 2024 julkisivujen ja parvekkeiden suunnittelu, verkkoon kytkettyjen palovaroittimien uusiminen, 2025 julkisivujen ja parvekkeiden uusimistyö
Planerade renoveringar i bostadsbolaget
2025 sokkeleiden, kellareiden ikkunakarmien ja auotalliovien kunnostus, Julkisivujen ja parvekkeiden uusimistyö, 2026-2027 lämmönsiirrin paketin uusiminen ja/tai vaihtoehtoisesti energiaremontti, 2026-2027 korvausilmaventtiilien tarkastus ja suodattimien vaihto, 2027-2028 piha-alueen valaistus ja pysäköintialueiden kunnostus 2028-2029 puuston kuntotutkimus, ilmanvaihdon nuohous ja säätö, viemäreiden huuhtelu ja kuvaukset.
Tomtägare
vuokrattu

Kök

Väggmaterial
kaakeli maalattu
Golvmaterial
muovi
Utrustning
kiinteät valaisimet
Spis
sähköliesi
Kylskåp
jääkaappi/pakastin

Badrum

Väggmaterial
kaakeli
Golvmaterial
laatta
Utrustning
suihkuseinä pesukoneliitäntä wc-istuin suihku peilikaappi kiinteät valaisimet

Vardagsrum

Väggmaterial
tapetti
Golvmaterial
parketti

Sovrum

Golvmaterial
parketti

Kontakta mäklaren

Dela sidan

Fortsätt utforska