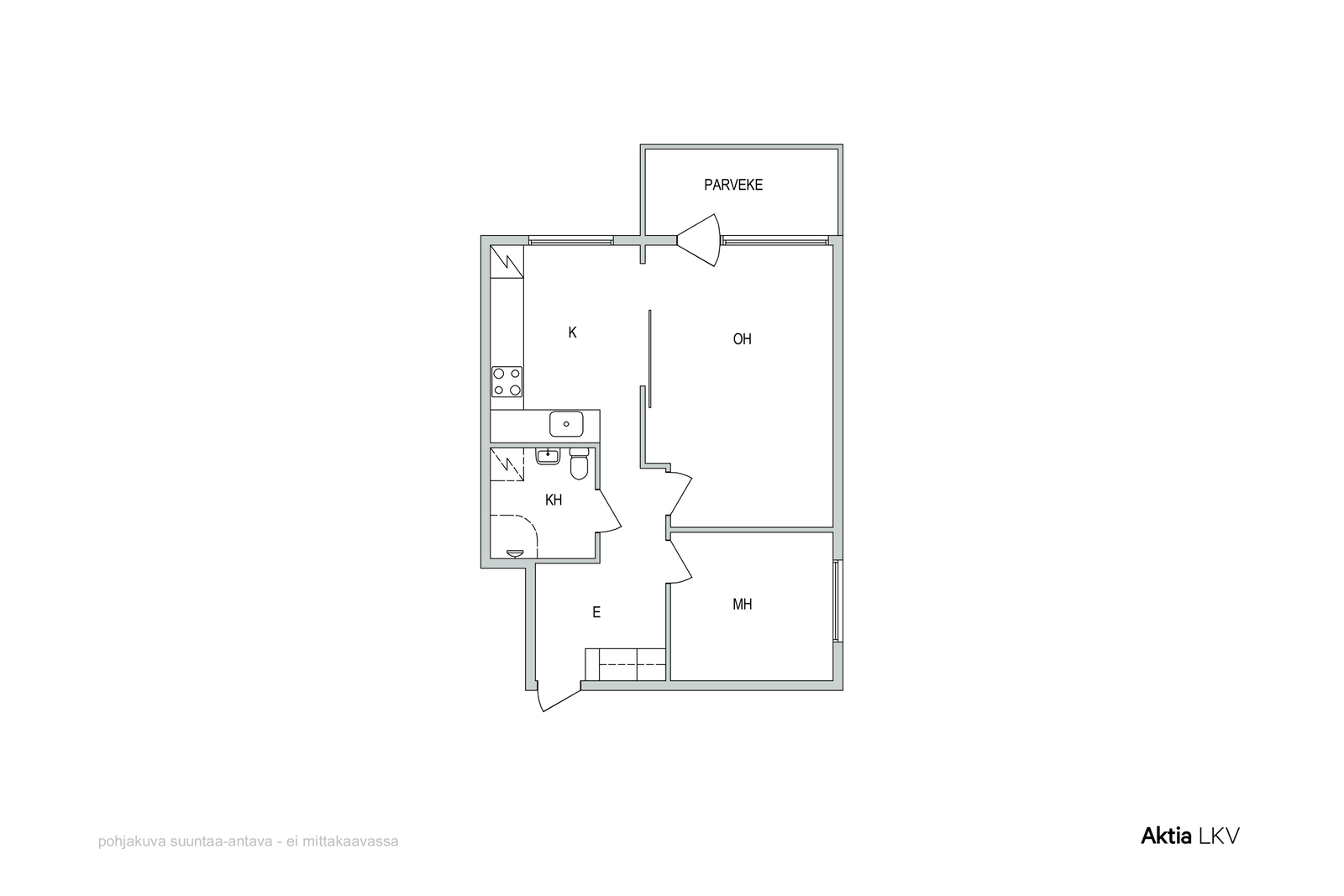
Hanuripolku 5

2h,k,kph,parvek

Storlek

55,5 m²

Försäljningspris

83 786,79 €

Skuldfritt pris

139 000,00 €

Område

00420 Helsinki

Typ

höghus

Våning

2 / 4

Tervetuloa tutustumaan tähän hyväpohjaiseen kaksioon Kannelmäessä!
Tämä koti hurmaa kodikkaalla tunnelmallaan ja nostalgisella retrohengellään. Asunto on pääosin alkuperäisessä kunnossa ja kaipaa pintaremonttia — mutta kylpyhuone on jo uusittu putkiremontin yhteydessä.

Parvekkeelta avautuu vehreä näkymä taloyhtiön rauhaisalle pihalle, jossa voit nauttia aamukahvista tai rentoutua luonnon keskellä.

Taloyhtiössä on tehty perinteinen putkiremontti vuonna 2022, jonka yhteydessä uusittiin vesijohto- ja viemärijärjestelmät sekä kylpyhuoneet.

Kannelmäen monipuoliset palvelut ja erinomaiset liikenneyhteydet sijaitsevat aivan lähietäisyydellä, mikä tekee tästä asunnosta loistavan vaihtoehdon niin omaan käyttöön kuin sijoitukseenkin.

Tule tutustumaan ja näe tämän kodin mahdollisuudet paikan päällä!
Yksityisnäytöt ja lisätiedot:
janina.erakangas@aktialkv.fi tai 041 317 6317

Grunduppgifter

Typ
höghus
Form av ägande
oma
Skuldfritt pris
139 000,00 €
Försäljningspris
83 786,79 €
Pris per kvadrat
2 504,50 €
Byggnadsår
1973
Beskrivning av objektet
2h,k,kph,parvek
Bostaden blir ledig
genast
Lokaler och utrustning
kabel-tv, balkong, hiss
Antal rum
kaksio
Bostadsyta
55,5 m²
Övriga utrymmen
0
Yta totalt
55,5 m²
Våning
2
Allmänt skick
tillfredsställande
Energiklass
D2007

Kostnader

Skötselvederlag
418,83 €
Finansieringsvederlag
387,75 €
Bolagsvederlag tot.
806,58 €
Övriga avgifter
Taloyhtiössä on aloitettu 1.7.2022 vesimaksujen periminen toteutuneen kulutuksen mukaan, erikseen käytetystä kylmästä vedestä ja erikseen käytetystä lämpimästä vedestä. Laskutuksessa käytetään veden ja lämpimän veden hintana kunkin laskutusjakson todellisten kustannusten perusteella arvioitua veden ja erikseen lämpimän veden hintaa. YYK 5.3.2025Ylimääräisessä yhtiökokouksessa päätettiin ketätä osakkailta kahta hoitovastiketta vastaava summa, ylimääräistä hoitovastiketta. Lisäksi myönnettiin hallitukselle tai sen myöntämälle taholle nostaa 20 000€ hoitolaina yhtiön taloudellisen tilanteen vuoksi. Hallituksen esityksen mukaan yhtiökokous päätti, että asunnot A 2 ja C 24 otetaan yhtiön haltuun enintään kolmeksi vuodeksi. Lisäksi yhtiökokous myönsi hallitukselle valtuuden nostaa osakasta A 2 ja C 24 vastaan tarvittaessa kanne häädöstä sekä vastikeveloista.

Tomt och planläggning

Tomtens areal
2 178 m²
Tomtägare
vuokrattu

Objektets beskrivning

Tomtens areal
2 178 m²
Tomtägare
vuokrattu
Annat
kabel-tv, balkong, hiss

Material, utrustning och uppvärming

Byggmaterial
betoni
Taktyp
tasakatto
Taktäckning
huopa
Värmesystem
kaukolämpö muu

Bostadsbolag

Bostadsbolag
Asunto Oy Hanuripolku 5
Disponent
Talonuotit Oy Raiviosuonmäki 4, 01620 Vantaa Isännöitsijä: Piia Remes 09-512 9120
Ansvar för fastighetsskötsel
huoltoyhtiö
Genomförda renoveringar i bostadsbolaget
2024: - hissikorien kuluneet liukuohjaimet uusittiin - teetettiin julkisivun lisäkartoitus, Ins.tsto Conditio Oy:n toimesta - patteriventtiilien 2-v. takuuajan säädöt tehty. Järjestelmän toiminnan todentaminen tehty talvella 2024-25. 2023: Linjasaeerauksen 1 . vuotistakuutarkastus 2022: Linjasaneeraus valmistunut. Suoritettu julkisivujen ja parvekkeiden kuntotutkimus ja korjattu lounaispäädyn elementtisaumoja sekä lisätty ko.katon räystäälle myrskypelti. 2021: Lämmönjakosäätimen, lämpimän käyttöveden kaukolämpöventtiilin ja venttiilinmoottorin sekä lämmitysverkoston kaukolämpöventtiilin ja venttiilimoottorin vaihto. Linjasaneeraus, uusittu putkistot ja märkätilat, asennettu asuntokohtaiset vedenmittauslaitteet, sukitettu iv-kanavat, uusittu saunaosastot, samalla sähkösaneeraus. Luolaan asennettu lämmöntalteenotto ja 2 uppopumppua. Talon pohjois sivulla parannettu pintavesien ohjausta. Saneerattu liiketila (minikeittiö, wc, suihku). Ulko-ovet uusittu. Piha-aitaa lisätty, rakennettu kiviportaikko lasten leikkipihalle. Rakennettu rengasvarasto. 2020: Linjasaneerauksen toteutussuunnittelu tehty ja rakennuslupa jätetty sisään kilpailutettu urakoitsija. 2018: Korjattu vesivahinko A8 (katon vuoto) ja laadittu linjasaneerauksenhankesuunnitelma. 2017: Korjautettu kosteusvauriot kylpyhuoneissa B18(vajaa silikonisauma) ja B15 (sienän sisällä ollut kuumavesiputki katkesi). Kunnostettu A- ja C-rappujen hissien jarrut. 2016: Pysäköintialueen parannus ja asfaltointi. 2015: Tehty putkiston kuntotutkimus. Lisätty valot jätekatokseen. 2014: Uusittu piha-aita, vaihdettu paikoitusalueella lämmitys tolppia, korjattu vesivahinko asunnossa B18 kylpyhuoneessa, kunnostettu leikkialuetta, peruskorjattu kuivausteline, ulkovalaisimet vaihdettu. 2013: DNA WELHO talokaapelintietoliikenneyhteydet käyttöönotto.Kaukolämmön alajakokeskus uusittu. 2010: Luolatilan ilmanvaihtokone uusittu. Alkuperäiset ilmanpoistoilmanvaihtokoneet uusittu. Ilmanvaihdon säätö- ja tasapainoitus. 2008: Julkisivujen ja parvekkeiden kunnostus-ja maalaustyöt, vesikattojen kunnostus-ja muutostyöt sekä ikkunoiden ja parvekeovien sekä parvekkeiden taustaseinien uusimis- ja kunnostustyöt. 2007: Pihan puinen tukimuuri uusittiin kivimuuriksi. Huoneiston A1 vesivahinkokorjaus. B-kuivaushuoneen kunnostus. Takalukkiutuva sähkölukot ja koodilukot ulko-oviin. 2006: Akustiikkalevyjen uusiminen rappukäytävien kattoihin, ilmahormien nuohous ja säädön tarkastus, ABC ilmanvaihto koneiden korjaus, C-saunan panelointi. Porrashuoneiden peruspesu ja vahaus. Parkkipaikan asfaltointikorjaus. 2005: Julkisivu- ja pervekekuntotutkimus. 2004: Parvekeseinien peruskorjaus 1999: Poistoilmahormien nuohous. Ikkunoiden peruskorjaus 1994: Lämmönjakohuoneen saneeraus, elementtien saumaukset. Katso koko lista isännöitsijäntodistuksesta.
Planerade renoveringar i bostadsbolaget
- 2025 huoneistijen ja hissien viilupintojen korjaukset (6 700€) - 2026 lukituksen uusinnan selvitys ja mahd. tarjouspyynnöt - 2028 julkisivun ja parvekkeiden korjaukset (JS lisä kuntotutkimus) - 2031 palovaroittmien uusint - 2024 autojen latausasemien selvitys
Tomtägare
vuokrattu

Kök

Väggmaterial
kaakeli maalattu
Golvmaterial
muovi
Spis
sähköliesi
Kylskåp
jääkaappi/pakastin

Badrum

Väggmaterial
kaakeli
Golvmaterial
laatta
Utrustning
suihkuseinä pesukoneliitäntä wc-istuin suihku peilikaappi kiinteät valaisimet kylpyhuonekaapisto

Vardagsrum

Väggmaterial
maalattu tapetti
Golvmaterial
muovi

Sovrum

Golvmaterial
muovi

Kontakta mäklaren

Dela sidan

Fortsätt utforska