Mosaiikkiraitti 7

4h, k, s, lasitettu parveke

Storlek

81 m²

Försäljningspris

225 000,00 €

Skuldfritt pris

225 000,00 €

Område

00980 Helsinki

Typ

höghus

Våning

7 / 7

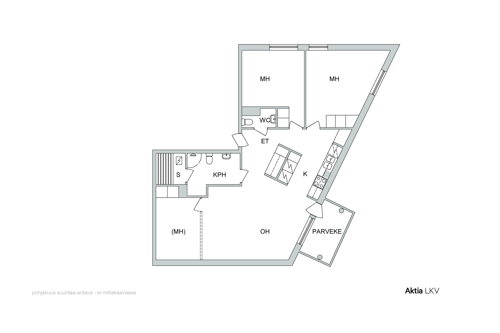
Upea mahdollisuus, ylimmän 7. kerroksen varsin siistikuntoinen koti odottaa sinua heti vapaana!
Mahdollisuus rakentaa väliseinä olohuoneeseen, jolloin saat kolmannen makuuhuoneen, tai työhuoneen. Pienellä ehostuksella tästä tulee ihan helmi.
Sovi esittely: Reima Alander 040 505 3736

Grunduppgifter

Typ
höghus
Form av ägande
oma
Skuldfritt pris
225 000,00 €
Försäljningspris
225 000,00 €
Pris per kvadrat
2 777,78 €
Byggnadsår
2001
Beskrivning av objektet
4h, k, s, lasitettu parveke
Bostaden blir ledig
heti
Lokaler och utrustning
egen bastu, kabel-tv, balkong, hiss
Antal rum
kolmio
Bostadsyta
81 m²
Övriga utrymmen
0
Yta totalt
81 m²
Våning
7
Allmänt skick
tillfredsställande
Energiklass
F2013

Kostnader

Skötselvederlag
607,50 €
Bolagsvederlag tot.
607,50 €
Vattenavgift
25,00 €

Tomt och planläggning

Tomtägare
vuokrattu

Objektets beskrivning

Tomtägare
vuokrattu
Annat
egen bastu, kabel-tv, balkong, hiss

Material, utrustning och uppvärming

Byggmaterial
betoni
Taktyp
tasakatto
Taktäckning
Huopa
Värmesystem
kaukolämpö

Bostadsbolag

Bostadsbolag
Asunto Oy Helsingin Piilonpirtti
Disponent
Jouko Salo / Kontulan Huolto Oy PL 201, 00941 Helsinki jouko.salo@kontulanhuolto.fi p. 09-3424200
Ansvar för fastighetsskötsel
huoltoyhtiö
Genomförda renoveringar i bostadsbolaget
Vesikatteiden huoltokunnostus 2023, K-portaan IV-järjestelmän korjaus (hattupellit) 2023, K-portaan hissikoneiston korjaus 2023, Julkisivujen elementtisaumojen uusiminen 2021-22, Ilmanvaihtojärjestelmien puhdistus ja säätö, K-portaan IV-järjestelmän säätöpeltien asennus 2020, Lämmönvaihtimen uusiminen, Automaattisen ilmanpoistajan asennus, lämmitysverkkoon, WC-istuimien huolto 2019, K-portaan ilmanvaihtokojeen uusiminen 2019, J-portaan hissin kunnostus ja hissikorin ovien uusiminen, Vesikatteiden huoltokunnostus, Porrashuoneiden ulko-ovien huoltomaalaus 2018, K-portaan hissin kunnostus ja hissikorin ovien uusiminen 2017, Ilmanvaihtojärjestelmien puhdistus ja säätö 2012.
Planerade renoveringar i bostadsbolaget
Paikoitushallin peruskorjaus, Varaudutaan paikoitushallin peruskorjaukseen. Taloyhtiöllä 30 kpl autopaikkoja, joita hallissa on yhteensä 230 kpl. Kustannusarvio selvitetään hankkeen valmistelun yhteydessä. Taloyhtiö omistaa 9,17 % hallin osakkeista. Lukituksen uusiminen 20.000, Taloyhtiön nykyinen Abloy Exec -lukitus on vanhentunut. Suosittelemme lukituksen uusimista suojattuun järjestelmään. Korvausilmaventtiilien puhdistus ja suodattimien vaihto, 240 kpl 3.600 Korvausilmaventtiilien kunnossapito kuuluu taloyhtiölle. Vaihdetaan suodattimet määrävälein. Dir-Air / Air-In 600 dB, 191 kpl, Dir-Air / Air-In 300 dB, 49 kpl, J-portaan IV-kojeen uusiminen 6.000 Varaudutaan alkuperäisen IV-kojeen uusimiseen. Pihan painauman korjaus 5.000 Korjaustarve. Jäte- ja sadeveden piha- ja pohjaviemärien painehuuhtelu 2.000 Jätevesiviemärit keräävät jätekertymää ja sadevesiviemärit hiekkaa. Viemärit kannattaa huuhdella noin 5 vuoden välein. Salaojien painehuuhtelu 1.000 Salaojat keräävät lietettä. Salaojat kannattaa huuhdella noin 5 vuoden välein. Energiatodistuksen uusiminen 1.000 Taloyhtiön nykyisen energiatodistuksen voimassaolo päättyy 20.11.2026. Energiaselvityksen laatiminen 6.000, Selvitetään taloyhtiön energiavaihtoehdot: - maalämpö - lämmön talteenotto - aurinkopaneelit Patteriventtiilien uusiminen ja lämmitysverkoston säätö 30.000 Patteriventtiilien kestoikä on noin 20 vuotta. Varaudutaan patteriventtiilien uusimiseen. Alapohjatilan rakennusjätteiden poistaminen (Kuntoarvion 2019 suositus). Kustannusarvio selvitetään hankkeen valmistelun yhteydessä. Ikkunoiden ja ovien huolto (Kuntoarvion 2019 suositus). Kustannusarvio selvitetään hankkeen valmistelun yhteydessä. Huom! Tutustu tarkemmin tilinpäätöksen liitteenä olevaan kunnossapito-ohjelm
Tomtägare
vuokrattu

Kök

Väggmaterial
kaakeli maalattu
Golvmaterial
parketti
Utrustning
astianpesukone liesituuletin / hormi
Spis
keraaminen
Kylskåp
jääkaappi pakastin

Badrum

Väggmaterial
kaakeli
Golvmaterial
laatta
Utrustning
suihkuseinä pesukoneliitäntä wc-istuin suihku kiinteät valaisimet

WC

Antal
2
Väggmaterial
maalattu
Golvmaterial
laatta

Vardagsrum

Väggmaterial
maalattu
Golvmaterial
parketti

Sovrum

Antal
2
Golvmaterial
parketti

Kontakta mäklaren

Dela sidan

Fortsätt utforska