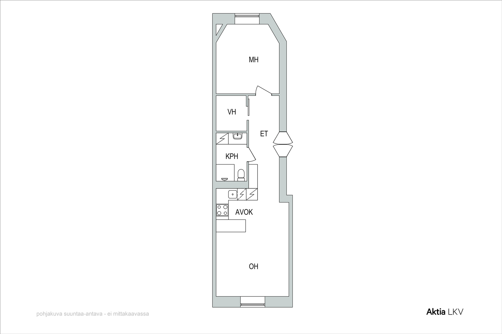
Oksasenkatu 6

2h, avok, kph,vaatehuone

Storlek

46,5 m²

Försäljningspris

351 734,15 €

Skuldfritt pris

418 000,00 €

Område

00100 Helsinki

Typ

höghus

Våning

4 / 6

Tervetuloa ihastumaan tähän kodikkaaseen ja erittäin laadukkaasti remontoituun läpitalon kaksioon, jossa yhdistyvät ajaton tyyli ja toimiva pohjaratkaisu. Huoneisto on remontoitu kauttaaltaan vastaamaan nykyajan ja tulevaisuuden vaatimuksia, materiaalivalinnoissa, varustelussa ja viimeistelyssä korostuvat laatu, kestävyys ja moderni asumismukavuus. Valoisa avokeittiö avautuu luontevasti oleskelutilaan luoden viihtyisän ympäristön niin arkeen kuin yhdessäoloon. Tilava kylpyhuone ja erillinen vaatehuone tuovat arkeen kaivattua mukavuutta ja käytännöllisyyttä.

Taloyhtiöstä on pidetty erinomaista huolta: perinteinen putkiremontti on valmistunut vuonna 2022, vesikatto on uusittu vuonna 2017 ja porrashuone on saneerattu tyylikkäästi vuonna 2024. Kohtuullinen hoitovastike, vain 4,2 €/m², tekee asumisesta myös taloudellisesti houkuttelevaa
Yhtiön tuotot 95 445 €/ 2024.

Sijainti on erinomainen, kaikki Museokadun monipuoliset palvelut, kahvilat ja kivijalkaliikkeet löytyvät aivan kivenheiton päästä. Taloyhtiön kaunis ja rauhallinen sisäpiha tarjoaa viihtyisän keitaan keskellä kaupunkia sekä mahdollisuuden järjestää omia tapahtumia ja nauttia yhteisöllisestä tunnelmasta.

Tämä koti on täydellinen valinta sinulle, joka arvostat laadukasta ja ajanmukaista asumista, huolettomasti hoidettua taloyhtiötä ja erinomaista sijaintia.

Tule ja ihastu!

Yhteydenotot: janina.erakangas@aktialkv.fi tai 041 317 6317

Välkommen att förälska dig i denna hemtrevliga och mycket högklassigt renoverade tvåa, där tidlös stil möter en funktionell planlösning. Bostaden har totalrenoverats för att motsvara dagens och framtidens krav, materialval, utrustning och finish håller hög standard och erbjuder ett modernt och bekvämt boende. Det ljusa öppna köket integreras naturligt med vardagsrummet och skapar en trivsam miljö för både vardag och umgänge. Det rymliga badrummet och den separata klädrum ger extra komfort och praktiska förvaringslösningar.

Husbolaget är välskött och viktiga renoveringar har redan genomförts: traditionell rörsanering färdigställdes 2022, yttertaket förnyades 2017 och trapphuset renoverades stilfullt 2024. Den måttliga vederlaget, endast 4,2 €/m², gör boendet även ekonomiskt attraktivt.
Husbolaget hyresintäkter var 95 445 €/ 2024.

Läget är utmärkt, alla Museogatans mångsidiga tjänster, caféer och butiker finns på bara ett stenkasts avstånd. Bolagets vackra och lugna innergård erbjuder en trivsam oas mitt i staden och ger även möjlighet att ordna egna tillställningar och njuta av en gemytlig atmosfär.

Detta hem är det perfekta valet för dig som värdesätter hög kvalitet, ett modernt och bekymmersfritt boende samt ett utmärkt läge.

Kom och bli förtjust!

Grunduppgifter

Typ
höghus
Form av ägande
oma
Skuldfritt pris
418 000,00 €
Försäljningspris
351 734,15 €
Pris per kvadrat
8 989,25 €
Byggnadsår
1926
Beskrivning av objektet
2h, avok, kph,vaatehuone
Bostaden blir ledig
enligt överenskommelse
Lokaler och utrustning
kabel-tv, hiss
Antal rum
kaksio
Bostadsyta
46,5 m²
Övriga utrymmen
0
Yta totalt
46,5 m²
Våning
4
Allmänt skick
bra
Energiklass
F2018

Kostnader

Skötselvederlag
195,30 €
Finansieringsvederlag
492,90 €
Bolagsvederlag tot.
688,20 €
Vattenavgift
30,00 €
Övriga avgifter
Varsinainen ythiökokous 28.4.2025. -päätettiin hyväksyä hissisaneeraus hallituksen esityksen mukaisesti. Hankebudjetti on 204 000 euroa. Saneeraus rahoitetaan erillisrahoituksella, ja osakkailla on mahdollisuus maksaa osuutensa hankkeesta hankkeen päätyttyä. Muille osakkaille muodostetaan pitkäaikainen laina, joka rahoitetaan pääomavastikkeella. -päätettiin hyväksyä hallituksen esitys taloyhtiön historiikin laatimisesta yhtiön 100-vuotisjuhlavuotta varten, kustannukseltaan noin 10 000 euroa. Kulut katetaan hoitovaroin.

Tomt och planläggning

Tomtens areal
1 429 m²
Tomtägare
oma

Objektets beskrivning

Tomtens areal
1 429 m²
Tomtägare
oma
Annat
kabel-tv, hiss

Material, utrustning och uppvärming

Byggmaterial
tiili betoni
Taktyp
harjakatto
Taktäckning
pelti
Värmesystem
kaukolämpö

Bostadsbolag

Bostadsbolag
Asunto-Osakeyhtiö Museokatu N:o 36
Disponent
Kiinteistö-Tahkola Helsinki Oy Kiiteistö-Tahkola Lauttasaaren toimipiste Itälahdenkatu 15-17, 00210 Helsinki Isännöitsijä: Mauri Hiekkamies mauri.hiekkamies@kinteistötahkola.fi +358 20 748 1095
Ansvar för fastighetsskötsel
huoltoyhtiö
Genomförda renoveringar i bostadsbolaget
1980 ikkunoiden uusiminen 1990 hissien peruskorjaus 1994 tuuletusparvekkeiden pinnoitus 1995 kallarien peruskorjaus 2009 antenniverkoston uusiminen (kadun puoli), katujulkisivun rappaus- ja maalauskorjaus, katujulkisivun ikkunoiden huoltomaalaus 2010 syöksytorvien lämmotyskaapelien asentaminen 2013 pian asfaltointi , kaukolämpökeskuksen uusiminen 2017 ovisummerialataulujen uusiminen ja summerijärjestelmän korjaus, lukkojen uusiminen, vesikaton uusiminen ja räystäslämmityksen asentaminen 2018 pihajulkisivun ikkunoiden ja parvekeovien korjaus ja maalaus, tonttivesi-, viemäri ja kaasuliittymien uusiminen, pohjapiirustusten mittauspäivitys, hormikartoitus, ovisummerien huoneistoyksiköiden uusiminen 2021 katujulkisivujen asuntoikkunoiden korjaus ja maalaus 2022 linjasaneeraus ja kaasuliittymän poistaminen käytöstä 2023 vesikaton maalaus 2024 porrashuonesaneeraus ja porrashuoneiden ulko-ovien pintakäsittely 2024 liikehuoneistojen ikkunoiden ja ulko-ovien uusiminen
Planerade renoveringar i bostadsbolaget
2026 hissien peruskorjaus uusiminen (päätetty) 2025 eteläisen pihamuurin kuntotutkimus 2026 eteläisen pihamuurin korjaus (mahdollisesti yhdessä naapurikiinteistön kanssa) 2028 tuuletusparvekkeiden kuntotutkimus ja korjaussuunnittelu 2029 tuuletusparvekkeiden korjaus
Tomtägare
oma

Kök

Väggmaterial
maalattu
Golvmaterial
lauta
Utrustning
astianpesukone kiinteät valaisimet liesituuletin / suodatin
Spis
induktio erillisuuni
Kylskåp
jääkaappi/pakastin

Badrum

Väggmaterial
kaakeli
Golvmaterial
laatta
Utrustning
suihkuseinä pesukoneliitäntä suihku peili kiinteät valaisimet kylpyhuonekaapisto

Vardagsrum

Väggmaterial
maalattu
Golvmaterial
lauta

Sovrum

Antal
1
Golvmaterial
lauta

Övriga utrymmen

Övriga utrymmen
Vaatehuone

Kontakta mäklaren

Dela sidan

Fortsätt utforska