Mäntytie 25

5h+k (yj:n mukaan)

Storlek

118 m²

Försäljningspris

791 728,81 €

Skuldfritt pris

796 000,00 €

Område

00270 Helsinki

Typ

höghus

Våning

4 / 5

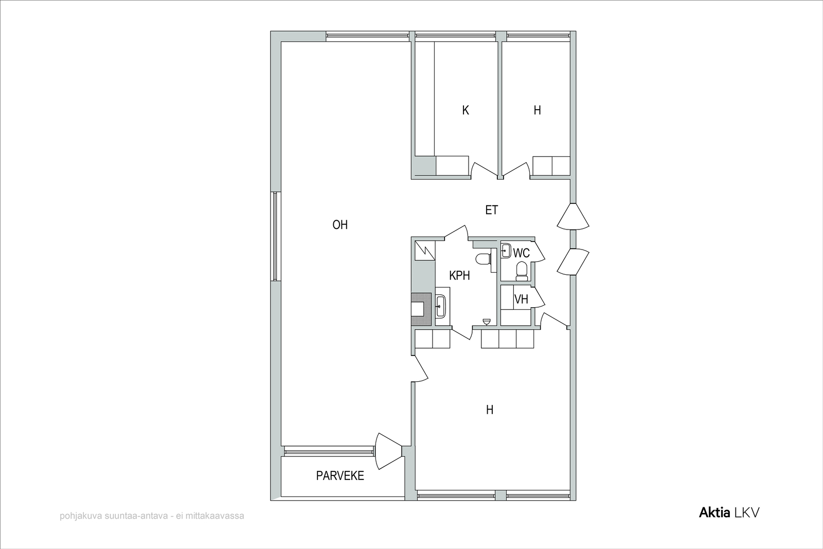
Mahdollisuuksien esteetön toiseksi ylimmän kerroksen perheasunto arkkitehti Toivo Korhosen 1960-luvun alkupuolella suunnittelemassa kerrostalossa. Talo vehreällä, viihtyisällä ja puistomaisen väljällä tontilla valmistui vuonna 1965. 4/5 kerros, hissi.
Tässä parvekkellisessa päätyhuoneistossa on parkettilattiat ja maalatut seinät. Olohuoneesta löytyy avotakka. Tällä hetkellä huoneisto on muokattu kahden vanhemman ihmisen tarpeita ajatellen, mutta pohja antaa helposti mahdollisuuden 4 makuuhuoneen toteuttamiseen. Huoneiston parveke on kaakkoon.

Yhtiö on hyvin hoidettu mm. linjasaneeraus on toteutettu v. 2016-2017. Vuonna 2024 taloyhtiöön rakennettiin sähköautojen latausinfra. Yhtiöllä oli v. 2024 vuokratuloja n. 31 800 euroa yhtiön omistuksessa olevista tiloista, joka mahdollistaa kohtuullisen hoitovastikkeen, 4,70 euroa/m2.

Sijainti on erinomainen, lähialueelta löytyy päiväkodit, koulut, mm. Englantilainen koulu Mäntytie 14 osoitteessa.

Myyntiä hoitaa / Försäljningen sköts av: Christoffer von Schantz 0503410195/ christoffer.schantz@aktialkv.fi


Utmärkt gavellägenhet, familjebostad i näst översta 4. våningen med möjlighet till t.o.m. 4 sovrum.
Bolaget är välskött, byggnaden är från 1965 och ritat av arkitekt Toivo Korhonen. Bolaget är stambytt år 2016-2017, parkeringsplatser med laddstationer installerades år 2024 på gården. Bolaget har hyresintäkter på ca. 31 800 euro för utrymmen bolaget äger, vilket medger det skäliga skötselvederlaget 4,7 euro/ m2.

Grunduppgifter

Typ
höghus
Form av ägande
oma
Skuldfritt pris
796 000,00 €
Försäljningspris
791 728,81 €
Pris per kvadrat
6 745,76 €
Byggnadsår
1965
Beskrivning av objektet
5h+k (yj:n mukaan)
Bostaden blir ledig
enligt överenskommelse
Lokaler och utrustning
kabel-tv, balkong, hiss
Antal rum
5 h
Bostadsyta
118 m²
Övriga utrymmen
0
Yta totalt
118 m²
Våning
4
Allmänt skick
tillfredsställande
Energiklass
D2018

Kostnader

Skötselvederlag
554,60 €
Finansieringsvederlag
79,06 €
Bolagsvederlag tot.
633,66 €
Vattenavgift
20,00 €
Övriga avgifter
Autopaikka (lataus): 60 €/kk, kylmä pihapaikka 35 euroa/kk, lämmin pihapaikka 40 euroa/kk. Pihapaikkoja on 17 kpl, Eri kokoisia autotalleja yhtiössä on 8 kpl ja näiden hinta on 70 euroa/kk, 90 euroa/ kk ja kahden auton talli 115 euroa/kk.

Tomt och planläggning

Tomtens areal
3 258 m²
Tomtägare
oma

Objektets beskrivning

Tomtens areal
3 258 m²
Tomtägare
oma
Annat
kabel-tv, balkong, hiss

Material, utrustning och uppvärming

Byggmaterial
tiili betoni
Taktyp
Harjakatto
Taktäckning
Peltikate
Värmesystem
kaukolämpö
Spis
takka muu

Bostadsbolag

Bostadsbolag
Asunto Oy Mäntytie 25 Bostads Ab
Disponent
Iskurit Oy Jarkko Juhani Svensk jarkko.svensk@iskurit.fi
Ansvar för fastighetsskötsel
huoltoyhtiö
Garage
8
Genomförda renoveringar i bostadsbolaget
2024 Sähköautojen latausinfran rakentaminen 2023 Kaukolämpölaitteiden uusiminen ja lämmitysverkoston perussäätö 2022 Julkisivu: eteläpäädyn paikkakorjaukset ja autotallien yläpuolisten betonipalkkien pinnoitteiden korjaus 2020 Julkisivun kuntotutkimus 2018 Saattolämmitys sadevesikaivoihin 2017 Pihan parkkipaikat 2017 Pihan kunnostus 2017 Taloyhtiölaajakaista (DNA Welho) 2017 Lukituksen uusinta (iLOQ) 2016-2017 Linjasaneeraus (käyttövesiputket, viemärit, sähköt) 2017 Porraskäytävien remontointi ja ovien kunnostus 2016 Pesulan IV-työt ja laitteiden uusinta 2016 Talopesula 2015 Linjasaneerauksen hankesuunnittelu 2014 Putkiremontin hanke- ja toteutussuunnittelu 2014 Lumiesteet katolle 2010 Kuntoarvio 2010 Parvekkeiden vesipellit 2007 Peltikatto (maalaus) 2003 Peltikatto (uusinta) 1997 Hissien kerrosjakajat 1995 Lämpökeskus 1993 Ikkunat
Planerade renoveringar i bostadsbolaget
Kunnossapitotarveselvityksen mukaan: -Vesikattojen huoltomaalaus (arv.15 000euroa) -2027 Ilmanvaihtohormien nuohous (arv. 10 000 euroa) -2030 Hissien (2 kpl) peruskorjaus (arv. 150 000-250 000 euroa)
Tomtägare
oma

Kök

Väggmaterial
maalattu
Golvmaterial
parketti
Utrustning
astianpesukone liesituuletin / suodatin
Spis
keraaminen erillisuuni
Kylskåp
jääkaappi pakastin

Badrum

Väggmaterial
kaakeli
Golvmaterial
laatta
Utrustning
lattialämmitys wc-istuin suihku peilikaappi kylpyhuonekaapisto

WC

Antal
1
Väggmaterial
kaakeli
Golvmaterial
laatta

Vardagsrum

Väggmaterial
maalattu
Golvmaterial
parketti

Sovrum

Antal
2
Golvmaterial
parketti

Övriga utrymmen

Övriga utrymmen
Eteinen

Kontakta mäklaren

Dela sidan

Fortsätt utforska