Hakaniemenkatu 11

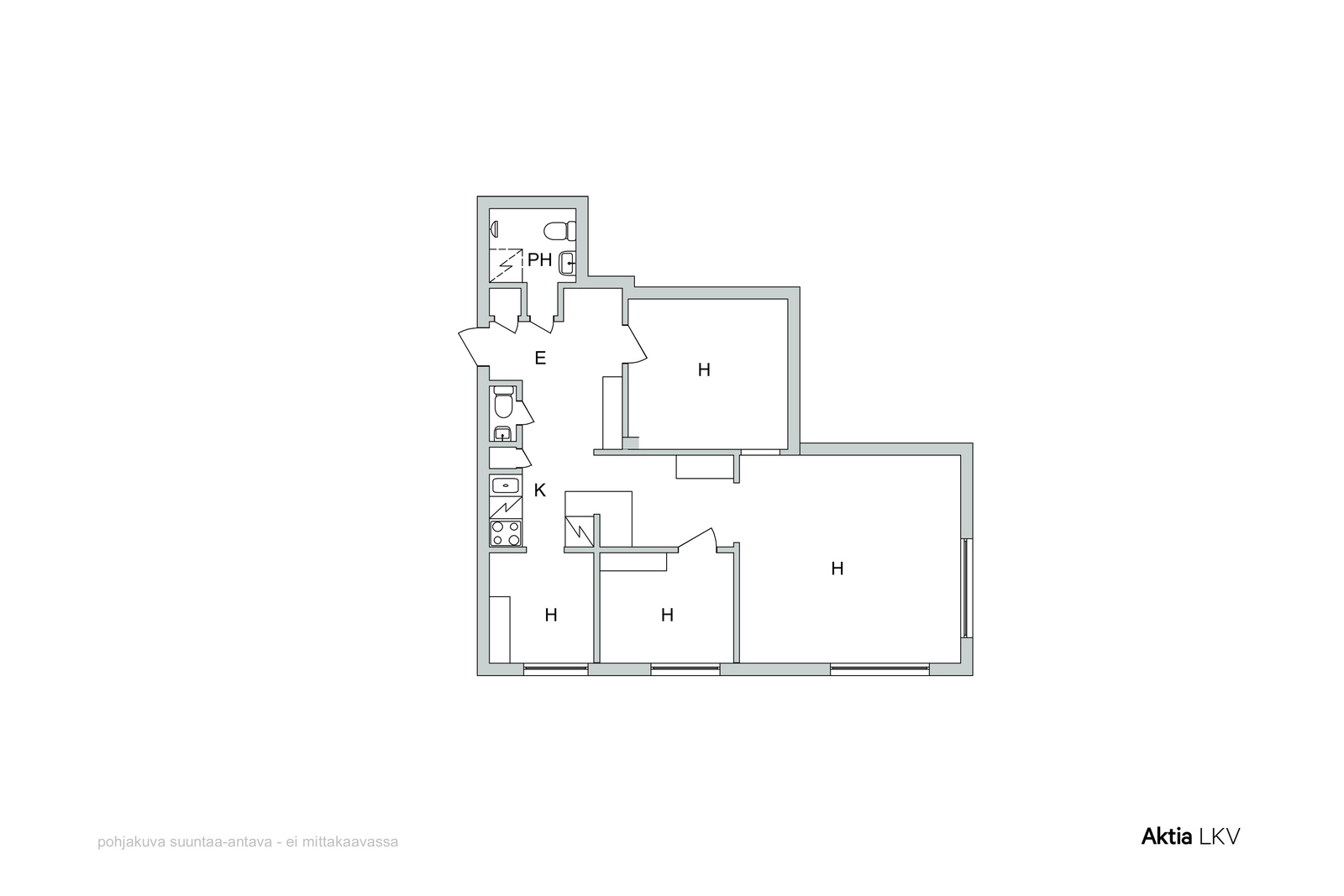
4h+kk+kph+2wc

Storlek

78 m²

Försäljningspris

463 134,82 €

Skuldfritt pris

479 000,00 €

Område

00530 Helsinki

Typ

höghus

Våning

3 / 7

Valoisa kulmahuoneisto isommallekin perheelle.

Tässä viime vuosien aikana täysin remontoidussa asunnossa on todelliset tehoneliöt. Vuonna 2017 valmistuneen remontin yhteydessä huoneiston pohja on järjestelty uudelleen niin, että huoneistoon on saatu kaksi pienempää makuuhuonetta sekä yksi isompi makuuhuone sekä tilava valoisa olohuone, josta näkymät Kruununhakaan päin, tehokkaasti suunniteltu keittiötila käytävän yhteydessä, tilava eteinen, erillinen wc sekä vuonna 2021 tyylikkäästi remontoitu kylpyhuone.

Hyvin hoidettu taloyhtiö vuonna 1938 valmistuneessa kivitalossa. Yhtiössä on juuri valmistunut vesikatto- ja ikkunaremontti.

Asunnon sijainti on mitä mainioin. Lyhyt matka Kruununhakaan, Kalasatamaan ja metrolla tai ratikalla keskustaan. Runsaasti hyviä erikoisruokakauppoja lähistöllä, sekä ihastuttava uusittu Hakaniemen Kauppahalli palveluineen. Hakaniemi – Kallio – Sörnäinen alue on voimakkaassa positiivisessa kehityksen vaiheessa, mm. aivan viereen rantaan rakentuu uusia rakennuksia ja palveluita. Hakaniemenkatu on peruskorjattu ja muutettu tonttikaduksi. Kadun eteläreunalle on istutettu uusi puurivi ja ajorataa on kavennettu. Hyvin rauhallinen katu.Hakaniemen alueelle on tulossa myös mm kaksi uutta rantapuistoa, kaksi venesatamaa ja täydennysrakentamista.

Tähän asuntoon vain yksityisnäytöllä.


Tiedustelut:
mirja.matikainen@aktialkv.fi

Grunduppgifter

Typ
höghus
Form av ägande
oma
Skuldfritt pris
479 000,00 €
Försäljningspris
463 134,82 €
Pris per kvadrat
6 141,03 €
Byggnadsår
1938
Beskrivning av objektet
4h+kk+kph+2wc
Bostaden blir ledig
enligt överenskommelse
Lokaler och utrustning
kabel-tv, hiss, eget avtal med tjänstleverantören
Antal rum
4 h
Bostadsyta
78 m²
Övriga utrymmen
0
Yta totalt
78 m²
Våning
3
Allmänt skick
bra
Energiklass
E2018

Kostnader

Skötselvederlag
390,00 €
Finansieringsvederlag
257,40 €
Bolagsvederlag tot.
647,40 €
Vattenavgift
30,00 €

Tomt och planläggning

Tomtens areal
592,1 m²
Tomtägare
oma

Objektets beskrivning

Tomtens areal
592,1 m²
Tomtägare
oma
Annat
kabel-tv, hiss, eget avtal med tjänstleverantören

Material, utrustning och uppvärming

Byggmaterial
tiili
Taktyp
harjakatto
Taktäckning
pelti
Värmesystem
kaukolämpö muu

Bostadsbolag

Bostadsbolag
Asunto Oy Hakaniemensivu
Disponent
Karhupuiston Isännöinti Oy marika.helin@isannoitsija.org
Ansvar för fastighetsskötsel
huoltoyhtiö
Genomförda renoveringar i bostadsbolaget
- 1984 sähkösaneeraus, putkisaneeraus, ikkunasaneeraus - 1987 ovien saneeraus - 1994 vesikaton uusiminen - 2004 julkisivujen saneeraus - 2006 hissien peruskorjaus, vesikaton maalaus ja uudelleen kiinnitys - 2007 kaukolämpökeskuksen ja telekaapeloinnin uusiminen, porrashuoneiden maalasukunnostus - 2009 lukituksen muuttaminen Abloy exec sarjaaan, saunatilojen kunnostus - 2011 räystäslämmitykset - 2012 viemäriverkon painehuuhtelu, ullakkoikkunoiden uusiminen - 2013 nuohous - 2015 ikkunoiden ulkopuitteiden ja vesipeltien huoltomaalaus - 2022 viemäriverkon painehuuhtelu - 2024-2025 katto- ja ikkunaremontti
Planerade renoveringar i bostadsbolaget
Seuraavan viiden vuoden aikana tulevat remontit - korvausilmaventtiilit olohuoneisiin ja makuuhuoneisiin - lämmitysjärjestelmän perussäätö, patteriventtiilien ja ilmausruuvien sekä vanhojen linjasäätöventtiilien uusiminen - poistohormien reititys ja kunnostus - syöksytorvien saattolämmityksen tarkistus ja tarvittaessa kunnostus Taloyhtiön remonteista päätetään aina vuosittain yhtiökokouksessa ja yhtiön remonttitarpeet voivat näin muuttua vuosittain. Myyjä ei vastaa taloyhtiön myöhemmin päättämistä kunnossapitotoimenpiteistä, eikä niistä koituvista huoneistokohtaisista kustannuksista.
Tomtägare
oma

Kök

Väggmaterial
kaakeli maalattu
Golvmaterial
parketti
Utrustning
mikroaaltouuni astianpesukone liesituuletin / suodatin
Spis
induktio erillisuuni
Kylskåp
jääkaappi/pakastin

Badrum

Väggmaterial
kaakeli
Golvmaterial
laatta
Utrustning
suihkuseinä pesukoneliitäntä lattialämmitys wc-istuin suihku peilikaappi

WC

Antal
1
Väggmaterial
maalattu
Golvmaterial
laatta

Vardagsrum

Väggmaterial
maalattu
Golvmaterial
parketti

Sovrum

Antal
3
Golvmaterial
parketti

Övriga utrymmen

Övriga utrymmen
Eteinen

Kontakta mäklaren

Dela sidan

Fortsätt utforska