Tallvägen 6

4r+k

Storlek

35 m²

Försäljningspris

59 500,00 €

Skuldfritt pris

59 500,00 €

Område

10210 Ingå

Typ

höghus

Våning

2 / 3

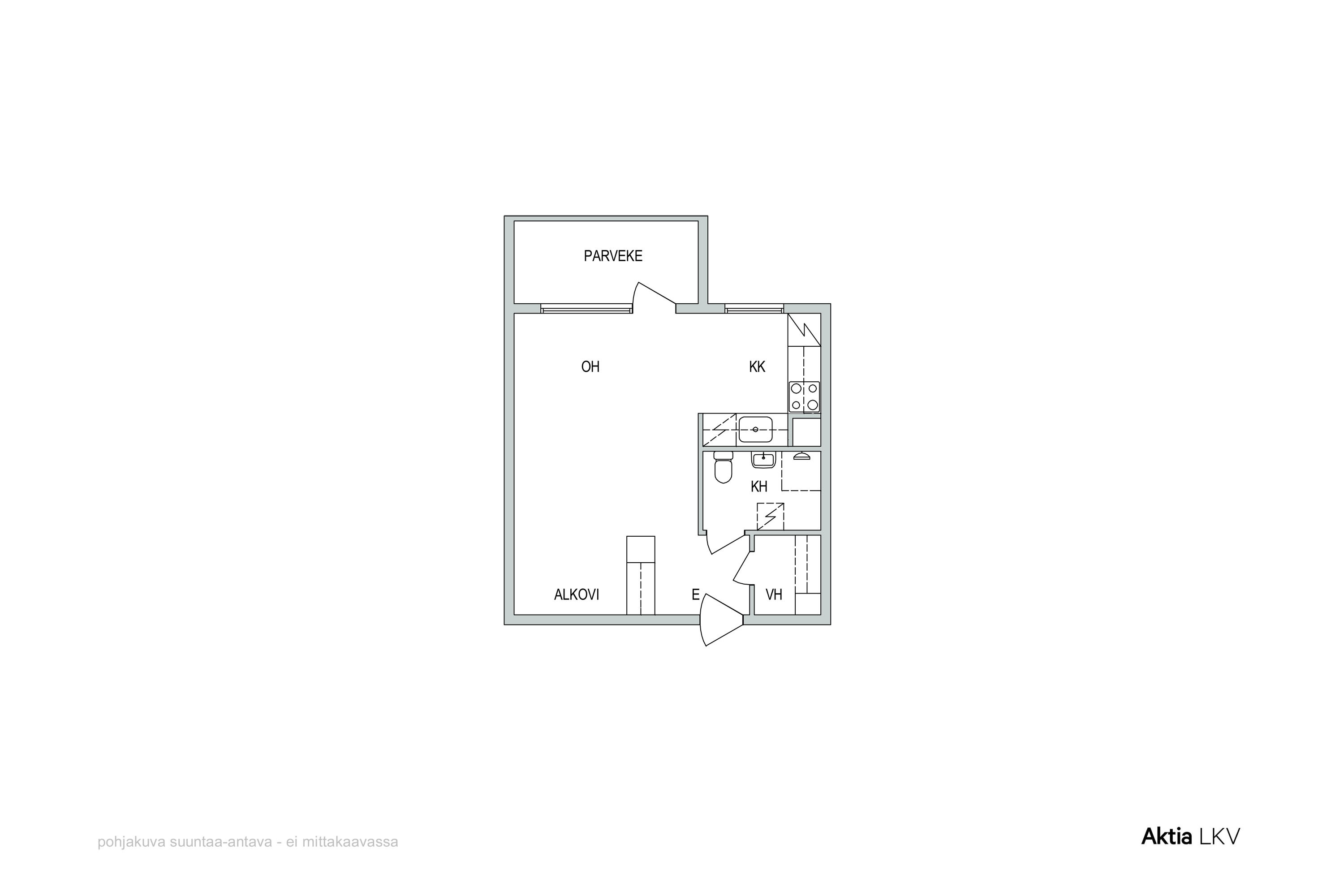
I prydligt, rätt så ursprungsskick varande, rymlig gavellägenhet i våningshusets 2/3 våning. Stora fönster gör bostaden ljus. Inglasad balkong som är lika bred som bostaden. På balkongen kan man odla blommor eller örtväxter.

Esittelyt sopimuksen mukaan/visningar enligt överenskommelse.

Teitä palvelee/Ni betjänas Anders Lundström 050 314 1562 / anders.lundstrom@aktialkv.fi tai/eller 040 158 2681 Pia Eskola /pia.eskola@aktialkv.fi

Grunduppgifter

Typ
höghus
Form av ägande
egen
Skuldfritt pris
59 500,00 €
Försäljningspris
59 500,00 €
Pris per kvadrat
1 700,00 €
Byggnadsår
1977
Beskrivning av objektet
4r+k
Bostaden blir ledig
genast
Lokaler och utrustning
kabel-tv, balkong, konditionsgranskning har inte utförts, fuktmätning har inte utförts
Antal rum
1 rum
Bostadsyta
35 m²
Övriga utrymmen
0
Yta totalt
35 m²
Våning
2
Allmänt skick
bra
Energiklass
E2018

Kostnader

Skötselvederlag
147,00 €
Bolagsvederlag tot.
147,00 €

Tomt och planläggning

Tomtens areal
6 950 m²
Tomtägare
egen

Objektets beskrivning

Tomtens areal
6 950 m²
Tomtägare
egen
Annat
kabel-tv, balkong, konditionsgranskning har inte utförts, fuktmätning har inte utförts

Material, utrustning och uppvärming

Byggmaterial
betong
Värmesystem
fjärrvärme

Bostadsbolag

Bostadsbolag
Bostads Ab Ingå Tallvägen 4
Disponent
Isännöintitoimisto Kontu Västra Nyland Ab, Karis Köpmansgatan 6 10300 Karis Isännöitsijä Petra Grönholm 0107397210 Kauppiaankatu 6, II krs 10300 Karjaa
Ansvar för fastighetsskötsel
servicebolag
Genomförda renoveringar i bostadsbolaget
Se disponentintyg.
Planerade renoveringar i bostadsbolaget
Se reparationsplanen 2024-2028
Tomtägare
egen

Kök

Väggmaterial
målad
Golvmaterial
laminat
Spis
elspis
Kylskåp
kylskåp

Badrum

Väggmaterial
kakel
Golvmaterial
klinker
Utrustning
duschskåp tvättmaskinsanslutning golvvärme wc dusch spegelskåp specialutrustning installerad

Vardagsrum

Väggmaterial
målad
Golvmaterial
laminat

Övriga utrymmen

Övriga utrymmen
tambur walk-in closet

Service och trafikförbindelser

Tjänster
Ingå centrum ca 1 km.
Dagvård
Daghem ca 1,5 km
Skola
Lågstadieskolor ca 1,5 km.
Trafikförbindelser
Busshållplats ca 100m.

Kontakta mäklaren

Dela sidan

Fortsätt utforska