Baggränd 4

4-5r k bdr b wc hjk

Storlek

116 m²

Försäljningspris

179 000,00 €

Skuldfritt pris

179 000,00 €

Område

68630 Jakobstad

Typ

egnahemshus

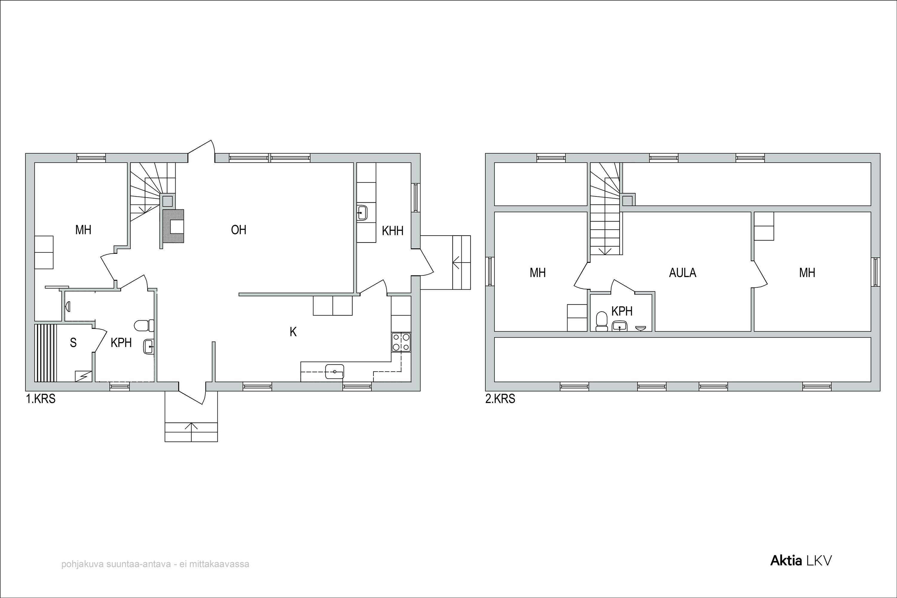
Välkommen till detta trivsamma egnahemshus i omtyckta Baggholmen – ett familjevänligt område där många verkligen trivs. Huset är byggt 2002 och erbjuder en genomtänkt planlösning med plats för både vardag och umgänge.

Kök och vardagsrum ligger intill varandra och bildar en naturlig och trivsamt sammanhängande helhet, där det är lätt att umgås samtidigt som rummen behåller sin egen karaktär. I vardagsrummet finns en värmande Nunna-spis som bidrar till både mysfaktor och lägre uppvärmningskostnader, och tillgång till ved finns.

På nedre plan finns även ett sovrum samt badrum, bastu och ett praktiskt hjälpkök som förenklar vardagen.
Övre våningen kan med fördel bli barnens egna oas. Här finns två sovrum, ett trivsamt allrum med plats för lek eller avkoppling samt en separat wc.

Den totala boytan är 116 m². På gården finns ett garage med biltak och förråd, byggt 2006. Arrendetomten på ca 800 m² ligger på en lugn gränd i ett omtyckt och tryggt bostadsområde.

Ett hemtrevligt hus med bra utrymmen och ett läge där man gärna stannar länge.

Benny Herrmans
benny.herrmans@aktialkv.fi
044 042 8668

Grunduppgifter

Typ
egnahemshus
Skuldfritt pris
179 000,00 €
Försäljningspris
179 000,00 €
Pris per kvadrat
1 366,41 €
Byggnadsår
2002
Beskrivning av objektet
4-5r k bdr b wc hjk
Bostaden blir ledig
enligt överenskommelse
Lokaler och utrustning
väg ända fram, egen bastu, elanslutning övergår, kabel-tv, direkt utgång
Antal rum
4 rum
Bostadsyta
116 m²
Övriga utrymmen
15 m²
Yta totalt
131 m²
Allmänt skick
bra
Energiklass
Ej lagenligt energicertifikat

Tomt och planläggning

Tomtens areal
800 m²
Tomtägare
uthyrd
Tomtens typ
Plantomt

Objektets beskrivning

Tomtens areal
800 m²
Fastighetsbeteckning
598-30-25-3-L1
Tomtägare
uthyrd
Annat
väg ända fram, egen bastu, elanslutning övergår, kabel-tv, direkt utgång

Material, utrustning och uppvärming

Byggmaterial
trä
Taktyp
Åstak
Taktäckning
Tegel
Värmesystem
el annat
Spis
annan

Bostadsbolag

Tomtägare
uthyrd

Kök

Väggmaterial
tapet
Golvmaterial
bräda
Utrustning
spisfläkt diskmaskin
Spis
keramisk spis
Kylskåp
kylskåp/frys - kombiskåp

Badrum

Väggmaterial
kakel
Golvmaterial
plast
Utrustning
wc dusch

Hjälpkök

Väggmaterial
tapet
Golvmaterial
bräda
Utrustning
tvättmaskinsanslutning

WC

Antal
1
Väggmaterial
tapet
Golvmaterial
plast

Vardagsrum

Väggmaterial
tapet
Golvmaterial
bräda

Sovrum

Antal
3
Golvmaterial
bräda

Övriga utrymmen

Övriga utrymmen
terass

Kontakta mäklaren

Dela sidan

Fortsätt utforska