Bränntomtsvägen 7

3r stugkök hjk bdr b loft

Storlek

119,7 m²

Försäljningspris

259 000,00 €

Skuldfritt pris

259 000,00 €

Område

68620 Jakobstad

Typ

radhus

Våning

1 / 2

Stilren och ljus radhusbostad i naturnära Bonäs

Välkommen till ett modernt och genomtänkt radhus i omtyckta Bonäs i Jakobstad. Här möts arkitektur, ljus och funktion i en bostad som erbjuder en trivsam och harmonisk boendemiljö året om.

Redan vid första steget in i bostaden märks den öppna och luftiga känslan. De stora och höga fönstren släpper in rikligt med dagsljus och skapar en ljus atmosfär som ger hemmet en särskild karaktär under alla årstider.

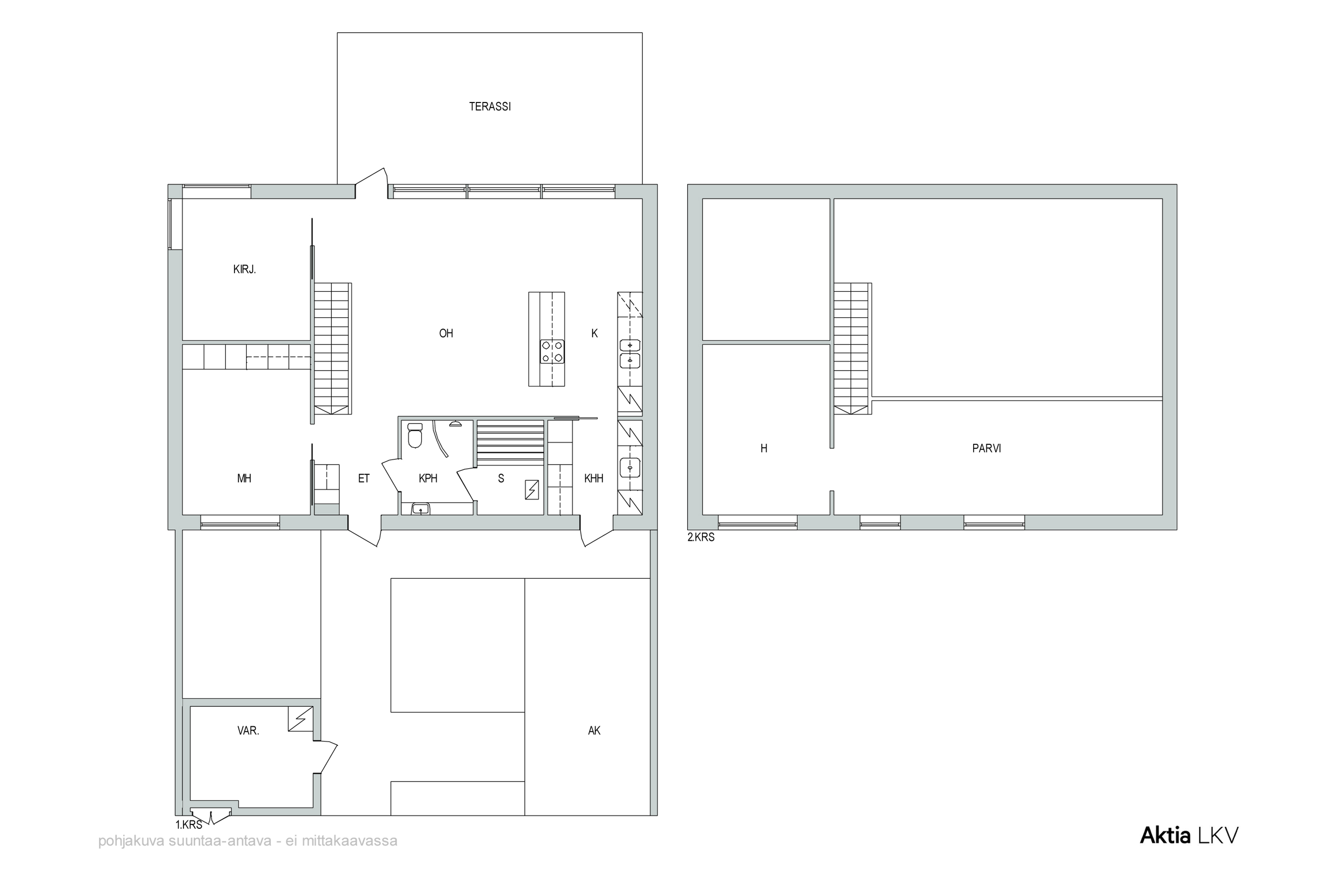
Bostaden omfattar 119,7 m² och är planerad för att fungera smidigt i vardagen. På nedre våningen finns ett rymligt stugkök, två sovrum samt ett praktiskt hjälpkök med egen ingång. Här finns även ett stilrent badrum med bastu där glasväggen ger rummet en modern och elegant känsla.

Vid ingången, i hjälpköket och i köket finns klinkergolv, medan övriga delar av bostaden har parkettgolv som skapar en varm och tidlös helhet.

På övre våningen finns ett generöst loft med glasräcken som förstärker den öppna och luftiga känslan. Intill loftet ligger bostadens tredje sovrum, vilket gör övre våningen till en lugn och privat del av hemmet. Här finns utrymme för exempelvis ett extra vardagsrum, arbetsplats eller en avkopplande läshörna.

Utomhus finns en trivsam och skyddad innergård med stenbeläggning, biltak och förråd. Här finns gott om plats för utemöbler, grill eller en bekväm loungedel. Den stora terrassen i västerläge gör det enkelt att njuta av kvällssolen under sommarhalvåret.

Uppvärmningen sker via egen bergvärme, vilket ger både energieffektiv och behaglig värme. Systemet är dessutom kompletterat med kylning för varma sommardagar. Den maskinella ventilationen med värmeåtervinning bidrar till ett friskt och behagligt inomhusklimat.

Läget i Bonäs är lugnt och naturnära samtidigt som servicen finns nära till hands. Närmaste matbutik ligger endast cirka 200 meter från bostaden.

Här erbjuds ett hem där både funktion, komfort och trivsel står i fokus.

Fakta i korthet
- Bonäs, Jakobstad
- 119,7 m²
• 3 sovrum
- Bastu med glasvägg
- Bergvärme med kylning
- Stenbelagd innergård och terrass i västerläge
- Matbutik cirka 200 meter bort

Välkommen att ta kontakt för visning. Detta är en bostad som verkligen bör upplevas på plats.

Förfrågningar och visningar

Stig-Göran Björkman
Tfn: 044 586 8800
E-post: stig-goran.bjorkman@aktialkv.fi

Grunduppgifter

Typ
radhus
Form av ägande
egen
Skuldfritt pris
259 000,00 €
Försäljningspris
259 000,00 €
Pris per kvadrat
2 163,74 €
Byggnadsår
2015
Beskrivning av objektet
3r stugkök hjk bdr b loft
Bostaden blir ledig
enligt överenskommelse
Lokaler och utrustning
egen bastu, kabel-tv, balkong, direkt utgång, eget avtal med tjänstleverantören
Antal rum
4 rum
Bostadsyta
119,7 m²
Övriga utrymmen
0
Yta totalt
119,7 m²
Våning
1
Allmänt skick
bra
Energiklass
A2018

Kostnader

Skötselvederlag
270,00 €
Bolagsvederlag tot.
270,00 €
Vattenavgift
20,00 €

Tomt och planläggning

Tomtens areal
3 193 m²
Tomtägare
egen

Objektets beskrivning

Tomtens areal
3 193 m²
Tomtägare
egen
Annat
egen bastu, kabel-tv, balkong, direkt utgång, eget avtal med tjänstleverantören

Material, utrustning och uppvärming

Byggmaterial
betong
Taktyp
Pulpettak
Taktäckning
Filtbeläggning
Värmesystem
jordvärme

Bostadsbolag

Bostadsbolag
Bostads Ab Westan 1, Jakobstad Asunto Oy
Disponent
Retta Isännöinti Oy Nils-Johan Enkvist
Ansvar för fastighetsskötsel
servicebolag
Tomtägare
egen

Kök

Väggmaterial
målad
Golvmaterial
klinker
Utrustning
spisfläkt mikrovågsugn diskmaskin integrerad armatur
Spis
induktionsspis separat ugn
Kylskåp
kylskåp/frys - kombiskåp

Badrum

Väggmaterial
kakel
Golvmaterial
klinker
Utrustning
duschvägg golvvärme wc dusch spegel integrerad armatur badrumsskåp

Hjälpkök

Väggmaterial
målad
Golvmaterial
klinker
Utrustning
tvättmaskinsanslutning tvättfat golvvärme

Vardagsrum

Väggmaterial
målad
Golvmaterial
parkett

Sovrum

Antal
3
Golvmaterial
parkett

Övriga utrymmen

Övriga utrymmen
terass

Kontakta mäklaren

Dela sidan

Fortsätt utforska