Köpmansgatan 4

3r k bdr

Storlek

96,1 m²

Försäljningspris

114 730,79 €

Skuldfritt pris

144 000,00 €

Område

68600 Jakobstad

Typ

höghus

Våning

1 / 3

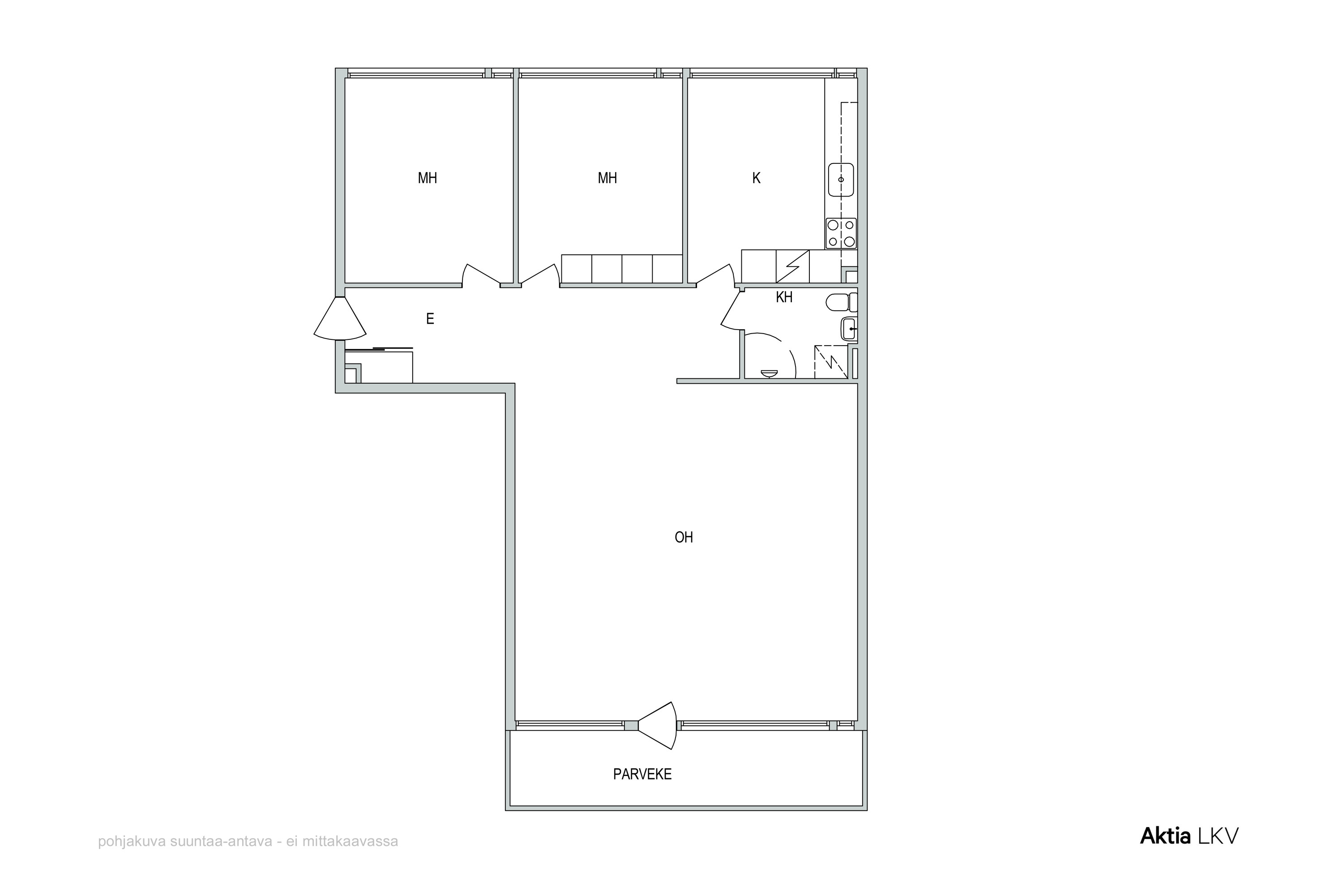
Välkommen till ett hem där det är lätt att känna sig hemma. Här bor du rymligt och bekvämt i en smakfullt renoverad bostad på 96,1 m², med en varm och trivsam känsla som möter dig redan när du kliver in genom dörren.

Planlösningen är både praktisk och inbjudande. Här finns två sovrum, ett stort och ljust allrum med plats för både soffgrupp och matbord, ett kök samt badrum. De ljusa och stilrena materialvalen skapar en harmonisk helhet.

Den stora inglasade balkongen blir snabbt en favoritplats – ett härligt extrarum där du kan njuta av morgonkaffet, läsa en bok eller bara ta en lugn stund.

Lägenheten finns på första våningen. Här bor du dessutom med alla fördelar som höghuslivet ger – centralt, bekvämt och utan bekymmer över gräsklippning eller snöskottning.

Robin Holländer
robin.hollander@aktialkv.fi
041 463 0532

Grunduppgifter

Typ
höghus
Form av ägande
egen
Skuldfritt pris
144 000,00 €
Försäljningspris
114 730,79 €
Pris per kvadrat
1 498,44 €
Byggnadsår
1975
Beskrivning av objektet
3r k bdr
Lokaler och utrustning
balkong
Antal rum
3 rum
Bostadsyta
96,1 m²
Övriga utrymmen
0
Yta totalt
96,1 m²
Våning
1
Allmänt skick
bra
Energiklass
F2013

Kostnader

Skötselvederlag
360,38 €
Finansieringsvederlag
408,43 €
Bolagsvederlag tot.
768,81 €
Vattenavgift
24,00 €

Tomt och planläggning

Tomtens areal
2 029 m²
Tomtägare
egen

Objektets beskrivning

Tomtens areal
2 029 m²
Tomtägare
egen
Annat
balkong

Material, utrustning och uppvärming

Byggmaterial
betong
Taktyp
Valmat
Taktäckning
Filt
Värmesystem
fjärrvärme

Bostadsbolag

Bostadsbolag
Bostads Ab Kvarnbacksgatan 10 i Jakobstad Asunto Oy
Disponent
RETTA
Ansvar för fastighetsskötsel
servicebolag
Genomförda renoveringar i bostadsbolaget
1999: Vattentaket mot kvarnbacksgatan förnyats 2001: Fjärrvärme 2002: Vattentaket på Köpmansgatan förnyats 2002: Uppsnyggning av gårdsplan och parkering, ny byggnad för avfallshantering. 2009: Byte av fönster och balkongdörrar, inglasning av piskbalkonger sam sanering av östra fasaden pga. fukt i väggen och målning av trapphusen 2010: Nya ytterdörrar och lås till lägenheterna 2013-2019: Nya bruksvattenledningar och värmeledningar i bottenplan och D-trappan. Nya linjeregleringsventiler, avstängningsventiler i fjärrvärmecentral instalering av lägenhetsvisa batteriventiler och frånluftsmängder, förnyad fastighetsautomatik. Alla badrum sanerad, golvbrunnar och golvmatta i allmänna bastutrymmen förnyade, fuktskadad yttervägg mot köpmansgatan och bakgården sanerad, bruksvattenrören förnyade och avloppsrören filmade och kostnaterats vara i plast. 2020: Ventilationsrengöring 2021: Takkupol i D-trapphus förnyats 2022: Sanering av balkongernas betong- och träytor. 2024: Skyddsrummet täthetstest utfört 2024: D-trapphusets frånluftsfläktförnyats till Ec-styrfläktmotor 2025: Fjärrvärmeväxlare förnyad
Planerade renoveringar i bostadsbolaget
2023-2027 Förnyande av ytterdörrar och golv i D-trappan. Förbättring av husets ventilation Granskning av fönstertätningar Renovering av befolkningsskydd
Tomtägare
egen

Kök

Väggmaterial
målad
Golvmaterial
laminat
Utrustning
spisfläkt diskmaskin
Spis
keramisk spis
Kylskåp
kylskåp

Badrum

Väggmaterial
kakel
Golvmaterial
klinker
Utrustning
duschvägg tvättmaskinsanslutning wc dusch spegel

Vardagsrum

Väggmaterial
målad
Golvmaterial
laminat

Sovrum

Antal
2
Golvmaterial
laminat

Kontakta mäklaren

Dela sidan

Fortsätt utforska