Otto Malmsgatan 9

2r k bdr

Storlek

61,5 m²

Försäljningspris

79 318,32 €

Skuldfritt pris

86 000,00 €

Område

68600 Jakobstad

Typ

höghus

Våning

4 / 6

Drömmer du om att ha stadens puls utanför dörren, samtidigt som du bor tryggt och bekvämt? Denna ljusa lägenhet på 4:e våningen i ett omtyckt hisshus i Jakobstads centrum erbjuder just det. Här får du ett läge som är svårt att slå, med utsikt över torget och Otto Malmsgatan – en levande vy som ger känslan av stadsliv direkt hemifrån.

Den inglasade balkongen blir snabbt en favoritplats under årets varmare månader. Njut av morgonkaffet i solen, en lugn stund med en bok, eller bara följ stadens liv och rörelse.

Bostaden är i originalskick, vilket ger dig möjlighet att skapa ett hem helt efter egen smak. Med lite renovering kan detta bli en pärla, där charm och centralt läge möts.

Perfekt för dig som vill bo med närhet till service, caféer och kultur, utan att ge avkall på komfort och trygghet.

Välkommen att upptäcka potentialen i ditt framtida drömhem!

Benny Herrmans
benny.herrmans@aktialkv.fi
044 042 8668

Grunduppgifter

Typ
höghus
Form av ägande
egen
Skuldfritt pris
86 000,00 €
Försäljningspris
79 318,32 €
Pris per kvadrat
1 398,37 €
Byggnadsår
1974
Beskrivning av objektet
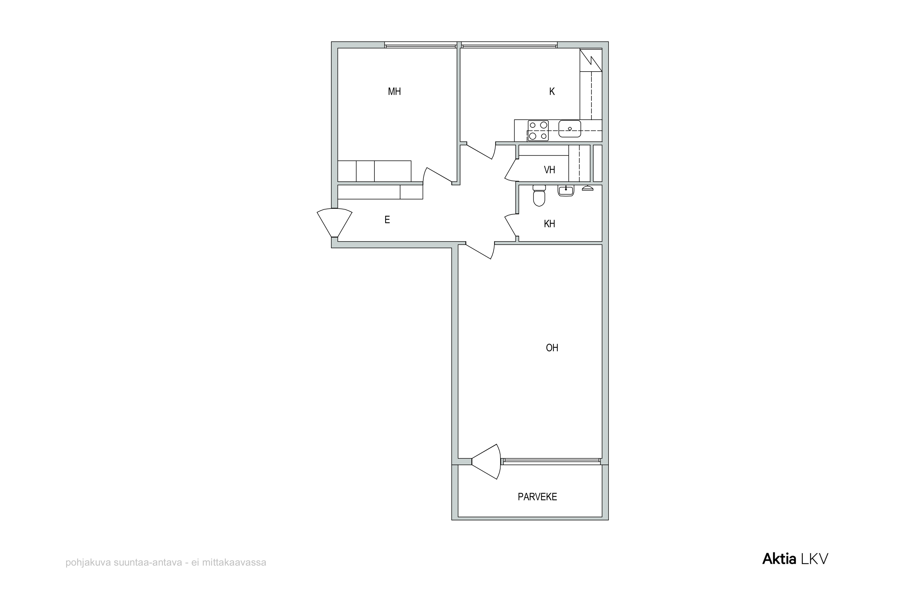
2r k bdr
Bostaden blir ledig
enligt överenskommelse
Lokaler och utrustning
kabel-tv, hiss
Antal rum
2 rum
Bostadsyta
61,5 m²
Övriga utrymmen
0
Yta totalt
61,5 m²
Våning
4
Allmänt skick
tillfredsställande
Energiklass
Ej lagenligt energicertifikat

Kostnader

Skötselvederlag
202,95 €
Finansieringsvederlag
104,72 €
Bolagsvederlag tot.
307,67 €
Vattenavgift
27,00 €

Tomt och planläggning

Tomtens areal
3 414 m²
Tomtägare
egen

Objektets beskrivning

Tomtens areal
3 414 m²
Tomtägare
egen
Annat
kabel-tv, hiss

Material, utrustning och uppvärming

Byggmaterial
betong
Taktyp
Flat
Taktäckning
Filt
Värmesystem
fjärrvärme

Bostadsbolag

Bostadsbolag
Bost Ab Villa Astrid
Disponent
Beatrice Noromies
Ansvar för fastighetsskötsel
servicebolag
Garage
20
Genomförda renoveringar i bostadsbolaget
2005 Fönster i Bomiljös lokal förnyade. Ventilationskanaler rengjorda. 2007 Ny värmekulvert mellan bostads- och affärshuset. 2008 Fönsterbyte i affärsfastigheten (gårdssidan). 2009 Byte av ytterdörrar. 2010 Ny torkanläggning (Esteri Turbo Dry Humi) + takfläkt. 2011 Målning av piskbalkonger och affärsfastighetens fasad mot Otto Malmsgatan. 2012 Förnyelse av vajrar och korgkablar i båda hissarna. 2013 Förnyelse av garagedörrar (gaveln mot Otto Malmsgatan 7). 2014 Förnyelse av dörrar till sopnedkast och befolkningsskydd. 2014 Sanering av bruksvatten- och värmerör i affärslägenhet B39. 2015 Bilhallen sanerad. 2016 Säkerhetsskenor på stegar + målning av 5 ytterdörrar. 2018 Fönster förnyat i Bomiljös lokal, asfalteringsreparationer, dränering, sanering av fuktskador i affärslokal + inglasning av bastubalkong. 2019 Hela fastigheten asbestkartlagd. 2019–2020 Bruksvattenrör sanerade, golvbrunnar infodrade, energieffektivare duschhandtag. 2020–2021 A-, B- och C-trappor tillgänglighetsanpassade (trösklar, dörrar, digital låsteknik). 2021 Ventilationsrengöring och injustering. 2021 Vattentakets grus tvättat. 2023 Fuktskador i torkrum reparerade. 2023 Fönster och balkongdörrar i bostadshuset förnyade, samt vissa fönster i affärshuset. 2025 Oljecisternrum ändrat till avfallsrum, underhåll av gårdsfönster, brandvarnare installerade i alla bostäder.
Tomtägare
egen

Kök

Väggmaterial
tapet
Golvmaterial
plast
Spis
elspis
Kylskåp
kylskåp/frys - kombiskåp

Badrum

Väggmaterial
tapet
Golvmaterial
plast
Utrustning
wc dusch

Vardagsrum

Väggmaterial
tapet
Golvmaterial
plast

Sovrum

Antal
1
Golvmaterial
plast

Kontakta mäklaren

Dela sidan

Fortsätt utforska