Heikelsgatan 10

7r k 2bdr b hjk

Storlek

290 m²

Försäljningspris

319 000,00 €

Skuldfritt pris

319 000,00 €

Område

68600 Jakobstad

Typ

egnahemshus

Våning

1 / 2

Här möts arkitektur, ljus och livskvalitet i en helhet utöver det vanliga.

Unikt arkitektplanerat egnahemshus i stilren funkisstil, beläget i Jakobstad, i den lugna och omtyckta stadsdelen Peders. Här bor du i ett stillsamt område med närhet till centrum, en sällsynt kombination som tilltalar många.

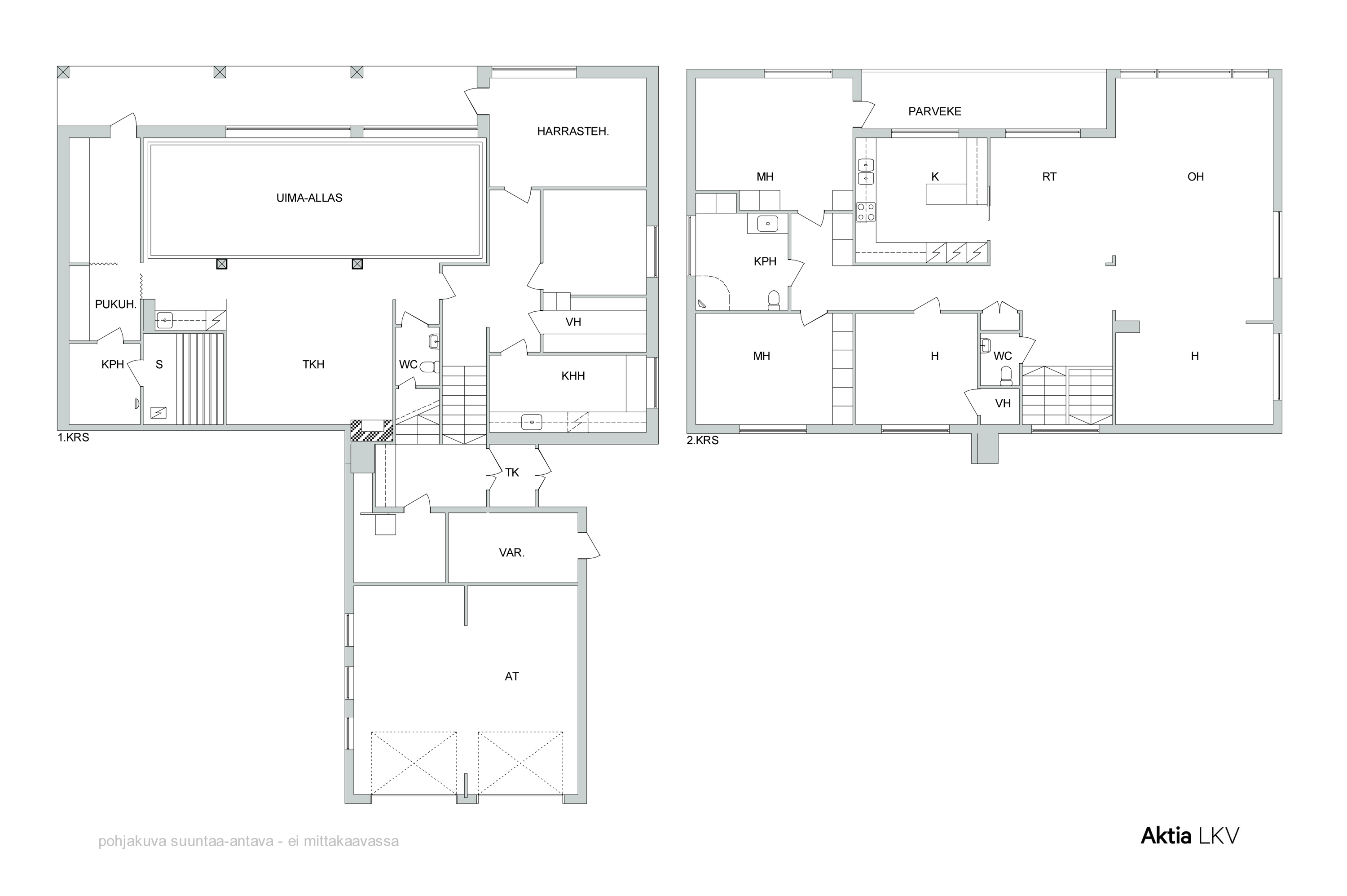
Bostaden är uppförd i två etager med en genomtänkt och representativ planlösning. På övre plan finns hemmets privata del med tre sovrum, där huvudsovrummet har eget badrum. Här erbjuds även ett rymligt vardagsrum med ett fantastiskt ljusinsläpp, ett bibliotek för lugna stunder, separat wc samt utgång till en balkong.

Nedre plan bjuder in till umgänge och avkoppling. Här finns två rum samt ett exklusivt spisrum med pentry som skapar en naturlig samlingspunkt. Den påkostade simbassängsavdelningen med badrum och bastu ger en känsla av vardagslyx. Från detta plan nås den skyddade bakgården i söderläge, där ljuset och läget skapar en privat och trivsam utemiljö. Här finns även wc och förrådsutrymmen.

Entréplanet välkomnar med en luftig aula som binder samman husets olika etager på ett elegant sätt och förstärker den arkitektoniska helheten.

På gården finns en asfalterad uppfart samt garage med plats för två bilar, utöver förråd och pannrum. Den generösa egna tomten om 2540 m² ger gott om utrymme för både avkoppling och aktivitet.

Bostadens yta uppgår till ca 290 m², därtill garage och förråd om ca 50 m².

Ett hem för dig som söker något utöver det vanliga, där design, rymd och funktion samspelar på bästa sätt.

Förfrågningar och visningar

Stig-Göran Björkman
Tfn: 044 586 8800
E-post: stig-goran.bjorkman@aktialkv.fi

Grunduppgifter

Typ
egnahemshus
Skuldfritt pris
319 000,00 €
Försäljningspris
319 000,00 €
Pris per kvadrat
938,24 €
Byggnadsår
1975
Beskrivning av objektet
7r k 2bdr b hjk
Bostaden blir ledig
enligt överenskommelse
Lokaler och utrustning
väg ända fram, egen bastu, elanslutning övergår, kabel-tv
Antal rum
6 rum eller mera
Bostadsyta
290 m²
Övriga utrymmen
50 m²
Yta totalt
340 m²
Våning
1
Allmänt skick
bra
Energiklass
Ej lagenligt energicertifikat

Tomt och planläggning

Tomtens areal
2 540 m²
Tomtägare
egen
Tomtens typ
Plantomt

Objektets beskrivning

Tomtens areal
2 540 m²
Fastighetsbeteckning
598-16-7-9
Tomtägare
egen
Annat
väg ända fram, egen bastu, elanslutning övergår, kabel-tv

Material, utrustning och uppvärming

Byggmaterial
trä tegel betong
Värmesystem
jordvärme
Spis
öppen spis

Bostadsbolag

Tomtägare
egen

Kök

Väggmaterial
målad
Golvmaterial
klinker
Utrustning
spisfläkt mikrovågsugn diskmaskin
Spis
induktionsspis separat ugn
Kylskåp
kylskåp frys

Badrum

Väggmaterial
kakel
Golvmaterial
klinker

Hjälpkök

Väggmaterial
sten
Golvmaterial
klinker
Utrustning
tvättmaskinsanslutning

WC

Antal
2
Väggmaterial
kakel
Golvmaterial
klinker

Vardagsrum

Väggmaterial
målad
Golvmaterial
parkett

Sovrum

Antal
3

Kontakta mäklaren

Dela sidan

Fortsätt utforska