Kronovägen 12

4r+k+bdr+wc+b+matsal

Storlek

116 m²

Försäljningspris

179 000,00 €

Skuldfritt pris

179 000,00 €

Område

68630 Jakobstad

Typ

egnahemshus

Våning

1 / 1

Välkommen till ett egnahemshus som verkligen har det lilla extra. Redan vid första steget innanför dörren infinner sig en varm och hemtrevlig känsla, ett hem där det är lätt att trivas.

Den lättskötta tegelfasaden ger huset ett tidlöst och tryggt uttryck, samtidigt som mycket arbete redan är gjort för nästa ägare. Här har man satsat på både komfort och långsiktighet: bergvärme installerad 2018 ger energieffektiv uppvärmning, kompletterad med luftvärmepump. Avloppsrören har strumpats 2023, fiber är indraget och de stora investeringarna som nya fönster och ytterdörrar är redan på plats.

Garage och gård är också uppdaterade med elgaragedörr, inplåtad skorsten och en gräsklipparrobot som sköter gräsmattan åt dig.

Huset är beläget i ett omtyckt och trivsamt område, perfekt för dig som söker lugn, gemenskap och ett tryggt boende att kalla hem.

Ett hus att landa i, varmt, välskött och redo för nästa kapitel.

Robin Holländer
robin.hollander@aktialkv.fi
041 463 0532

Grunduppgifter

Typ
egnahemshus
Skuldfritt pris
179 000,00 €
Försäljningspris
179 000,00 €
Pris per kvadrat
1 125,79 €
Byggnadsår
1973
Beskrivning av objektet
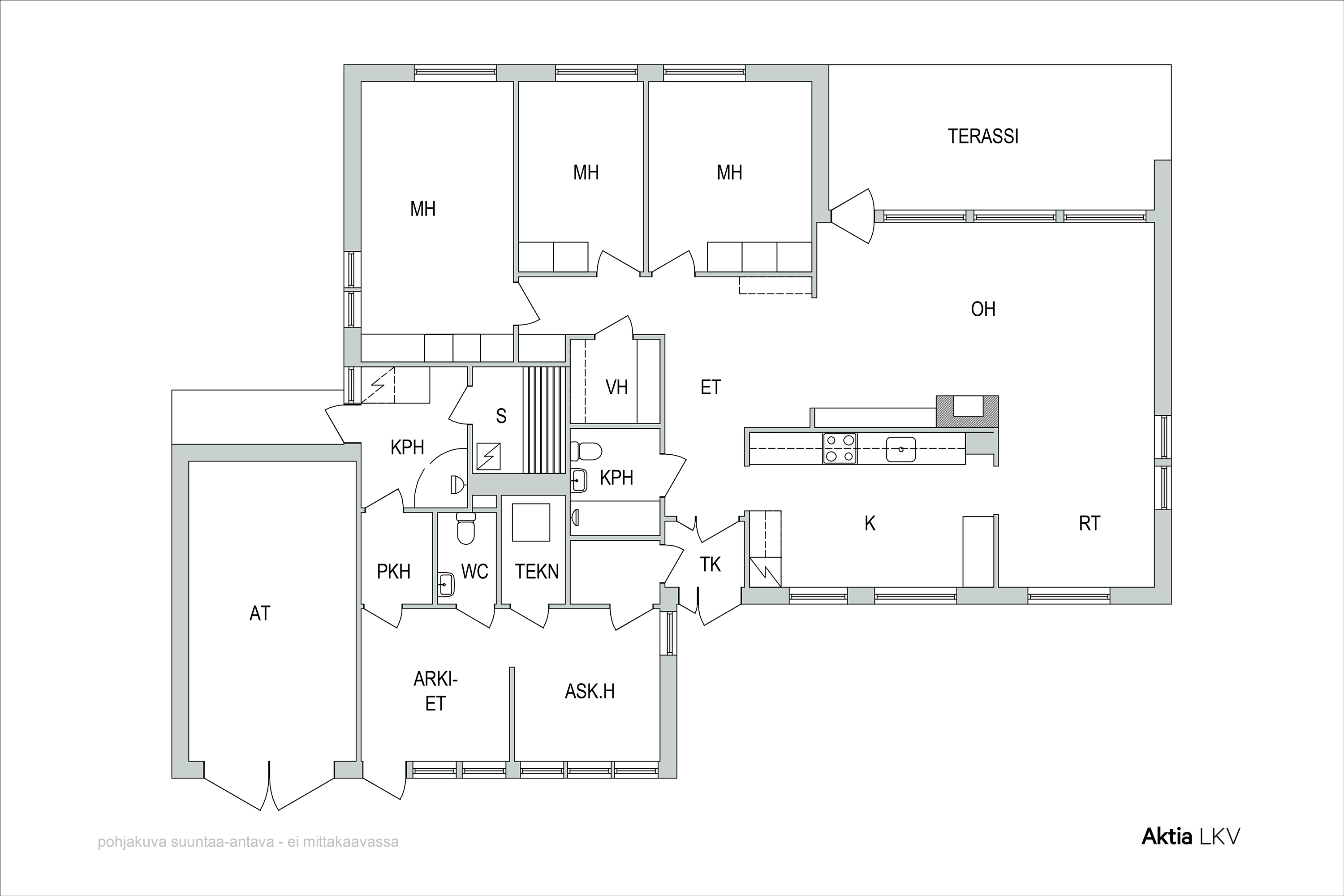
4r+k+bdr+wc+b+matsal
Bostaden blir ledig
enligt överenskommelse
Lokaler och utrustning
väg ända fram, egen bastu, elanslutning övergår
Antal rum
4 rum
Bostadsyta
116 m²
Övriga utrymmen
43 m²
Yta totalt
159 m²
Våning
1
Allmänt skick
bra
Energiklass
Ej lagenligt energicertifikat

Kostnader

Övriga avgifter
Elförbrukning: ca. 8.000kWh/år

Tomt och planläggning

Tomtens areal
1 125 m²
Tomtägare
uthyrd
Tomtens typ
Plantomt

Objektets beskrivning

Tomtens areal
1 125 m²
Fastighetsbeteckning
598-20-6-12-L1
Tomtägare
uthyrd
Annat
väg ända fram, egen bastu, elanslutning övergår

Material, utrustning och uppvärming

Byggmaterial
trä tegel
Taktyp
Mansard
Taktäckning
Plåt
Värmesystem
annat
Spis
öppen spis

Bostadsbolag

Tomtägare
uthyrd

Kök

Väggmaterial
målad
Golvmaterial
klinker
Utrustning
spisfläkt diskmaskin
Spis
keramisk spis
Kylskåp
kylskåp/frys - kombiskåp

Badrum

Väggmaterial
kakel
Golvmaterial
klinker
Utrustning
duschvägg golvvärme wc dusch spegel

Hjälpkök

Väggmaterial
målad
Golvmaterial
vinyl

WC

Antal
1
Väggmaterial
kakel målad
Golvmaterial
klinker

Vardagsrum

Väggmaterial
tapet
Golvmaterial
parkett

Sovrum

Antal
3
Golvmaterial
laminat

Övriga utrymmen

Övriga utrymmen
matplats

Kontakta mäklaren

Dela sidan

Fortsätt utforska