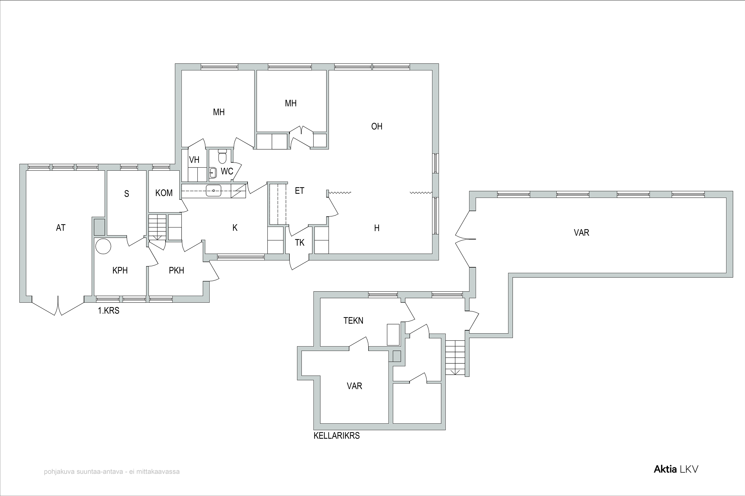
Hietatie 7

3 mh, k, oh/rh, pukuh, kph, s, wc, kellari, autotalli

Storlek

86 m²

Försäljningspris

110 000,00 €

Skuldfritt pris

110 000,00 €

Område

21500 Piikkiö

Typ

egnahemshus

Våning

2 / 2

Tässä näpsäkkä talo remonttitaitoiselle!

Kiinteistö sijaitsee lähellä Piikkiön palveluja ja vieressä hyvät liikenneyhteydet.

Talon sisäosat osin remontoidut mutta osin alkuperäiset pinnat. Eli täällä voit asua ja remontoida samalla.

Oma 1700 m2:n vehreä rinnetontti jossa istutuksia ja nurmikkoa.

Talossa myös kellarikerros, jossa tekninen tila ja autotalli sekä runsaasti säilytys ja puuhastelutilaa.

Talon lämmitysjärjestelmä uusittu vesi-ilmalämpöpumppuun.

Esittelyt ja tiedustelut:

Johanna Pulkkinen
040-3002 305 tai
johanna.pulkkinen@aktialkv.fi

Grunduppgifter

Typ
egnahemshus
Form av ägande
oma
Skuldfritt pris
110 000,00 €
Försäljningspris
110 000,00 €
Pris per kvadrat
859,38 €
Byggnadsår
1965
Beskrivning av objektet
3 mh, k, oh/rh, pukuh, kph, s, wc, kellari, autotalli
Bostaden blir ledig
enligt överenskommelse/1–2 mån efter köp
Lokaler och utrustning
väg ända fram, egen bastu, elanslutning övergår
Antal rum
4 h
Bostadsyta
86 m²
Övriga utrymmen
42 m²
Yta totalt
128 m²
Våning
2
Allmänt skick
tillfredsställande
Energiklass
Ej lagenligt energicertifikat

Kostnader

Övriga avgifter
Vesi ja sähkö ja kulutuksen mukaan. Sähkönkulutus nykyisellä omistajalla 12 500 kwh/v. Varainsiirtovero 3 % kauppasummasta.

Tomt och planläggning

Mera information om tomten
Kaarinan kaupunki
Tomtens areal
1 700 m²
Tomtägare
oma
Tomtens typ
Rinnetontti
mera information om planläggning
Kaavamuutos käynnissä joka julkaistaan helmikuu 2025.

Objektets beskrivning

Tomtens areal
1 700 m²
Fastighetsbeteckning
202-496-2-123
Tomtägare
oma
Annat
väg ända fram, egen bastu, elanslutning övergår

Material, utrustning och uppvärming

Byggmaterial
puu muu
Taktyp
Hajakatto
Taktäckning
Peltikate.
Värmesystem
ilmavesilämpöpumppu Ilmalämpöpumppu

Bostadsbolag

Tomtägare
oma

Kök

Väggmaterial
kaakeli puolipaneeli
Golvmaterial
muovi
Utrustning
liesituuletin astianpesukone
Spis
sähköliesi
Kylskåp
jääkaappi pakastekaappi

Badrum

Väggmaterial
kaakeli
Golvmaterial
laatta
Utrustning
suihku

WC

Antal
1
Golvmaterial
muovi

Vardagsrum

Väggmaterial
maalattu tapetti
Golvmaterial
muovi

Sovrum

Antal
3
Golvmaterial
muovi

Övriga utrymmen

Övriga utrymmen
Eteinen Tuulikaappi Pannuhuone Terassi

Kontakta mäklaren

Dela sidan

Fortsätt utforska