Fasantie 31

4 mh, arkiolohuone, k, ruokailuhuone, tkh, apuk, ph, s, 2xerill.wc:t, lasiveranta ja lämmin autotalli

Storlek

135 m²

Försäljningspris

367 000,00 €

Skuldfritt pris

367 000,00 €

Område

02440 Luoma

Typ

egnahemshus

Våning

1-2 / 2

Ihastuttava ja kodikas vuonna 1920 rakennettu kaksikerroksinen mansardikattoinen omakoti-talo Luoman idyllisissä maalaismaisemissa.

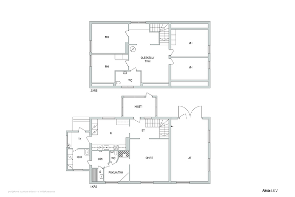
Alakerrassa veranta, aula, keittiö, ruokailuhuone, takkahuone, pesuhuone, sauna, wc, apukeittiö ja eteinen. Päädyssä lämmin autotalli.

Yläkerrassa arkiolohuone, neljä makuuhuonetta, askarteluhuone ja wc.

Pihapiirissä vierasmaja, leikkimökki ja liiterirakennus, jossa on säilytystilan lisäksi kaksi autopaikkaa, vesipiste ja sähköt.

Kaunis vehreä tontti istutuksineen, hedelmäpuineen ja marjapensaineen. Tontti sijaitsee metsän laidalla, hyvät ulkoilualueet ja järvi lähellä.

Esittelyt sopimuksen mukaan /visningar enligt överenskommelse.

Teitä palvelee/Ni betjänas av Gitty Nurmi 050 314 1560 gitty.nurmi@aktialkv.fi

Grunduppgifter

Typ
egnahemshus
Skuldfritt pris
367 000,00 €
Försäljningspris
367 000,00 €
Pris per kvadrat
1 581,90 €
Byggnadsår
1920
Beskrivning av objektet
4 mh, arkiolohuone, k, ruokailuhuone, tkh, apuk, ph, s, 2xerill.wc:t, lasiveranta ja lämmin autotalli
Bostaden blir ledig
enligt överenskommelse
Lokaler och utrustning
väg ända fram, egen bastu, elanslutning övergår, besiktning har utförts, fuktmätning har utförts
Antal rum
6 h ja enemmän
Bostadsyta
135 m²
Övriga utrymmen
97 m²
Yta totalt
232 m²
Våning
1-2
Allmänt skick
tillfredsställande
Energiklass
D2018

Kostnader

Övriga avgifter
Sähkökulut, kaikki noin 23 400 kWh/vuodessa. Nuohous noin 85 €/v. Vesi noin 25 €/hlö/kk.

Tomt och planläggning

Mera information om tomten
Hallinnanjakosopimus, päivätty 8.4.2024. Määräosan pinta-ala on noin 0,5225 ha.
Tomtens areal
0,52 ha
Tomtägare
oma
Tomtens typ
Tasamaatontti

Objektets beskrivning

Tomtens areal
0,52 ha
Fastighetsbeteckning
257-404-1-68
Tomtägare
oma
Annat
väg ända fram, egen bastu, elanslutning övergår, besiktning har utförts, fuktmätning har utförts

Material, utrustning och uppvärming

Byggmaterial
puu hirsi
Taktyp
Mansardi
Taktäckning
aaltopelti
Värmesystem
puu sähkö
Spis
takka

Bostadsbolag

Tomtägare
oma

Kontakta mäklaren

Dela sidan

Fortsätt utforska