Kuninkaantie 13

3h+k

Storlek

69,5 m²

Försäljningspris

139 000,00 €

Skuldfritt pris

139 000,00 €

Område

02400 Kirkkonummi

Typ

höghus

Våning

3 / 3

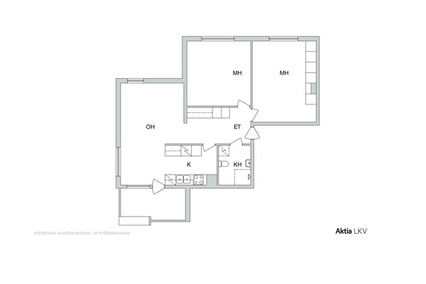
Hissitalon ylimmän kerroksen valoisa, pohjaratkaisultaan mainio asunto.
Asunto muuttovalmis ja siisti. Asunnossa neliöt käytetty tehokkaasti ja hukkatilaa ei ole. Keskustan palvelut välittömässä läheisyydessä. Juna-asemalle lyhyt kävelymatka.

Esittelyt vain sopimuksen mukaan.

Teitä palvelee Mika Vanari 040 486 1980 mika.vanari@aktialkv.fi ja Gitty Nurmi
050 314 1560 gitty.nurmi@aktialkv.fi.

Grunduppgifter

Typ
höghus
Form av ägande
oma
Skuldfritt pris
139 000,00 €
Försäljningspris
139 000,00 €
Pris per kvadrat
2 000,00 €
Byggnadsår
1983
Beskrivning av objektet
3h+k
Bostaden blir ledig
genast
Lokaler och utrustning
kabel-tv, balkong, hiss
Antal rum
kolmio
Bostadsyta
69,5 m²
Övriga utrymmen
0
Yta totalt
69,5 m²
Våning
3
Allmänt skick
tillfredsställande
Energiklass
D2013

Kostnader

Bolagsvederlag tot.
417,00 €
Övriga avgifter
Kylmä autopaikka 5 €/kk. Yhtiön hallituksella valtuutus periä tai jättää perimättä yhden kuukauden hoitovastike taloudellisen tilanteen niin vaatiessa. Ostajan tulee hakea omistusoikeutensa rekisteröintiä huoneistotietojärjestelmään Maanmittauslaitokselta 2 kuukauden kuluessa kauppakirjan allekirjoituksesta. Ostaja vastaa omistusoikeuden rekisteröintikustannuksista, osakekirjan mitätöinnistä aiheutuvista mahdollisista kustannuksista sekä mahdollisesta hakemusmaksun korotuksesta.

Tomt och planläggning

Tomtens areal
1 727 m²
Tomtägare
oma

Objektets beskrivning

Tomtens areal
1 727 m²
Tomtägare
oma
Annat
kabel-tv, balkong, hiss

Material, utrustning och uppvärming

Byggmaterial
muu
Taktyp
Tasa
Taktäckning
huopa
Värmesystem
kaukolämpö

Bostadsbolag

Bostadsbolag
As. Oy Finnsbackankumpu - Bostads Ab Finnsbackahöjden
Disponent
Kari Kallio 09 221 9090 Kirkkonummen Huolto Oy Tallinmäki 4, 02400 Kirkkonummi
Ansvar för fastighetsskötsel
huoltoyhtiö
Genomförda renoveringar i bostadsbolaget
Lämmönsiirrin uusittu -02, julkisivujen huoltomaalaus -04, antenniverkon kunnostus -04, julkisivuelementtien saumaus -04 ja vesikaton pinnoite uusittu -08., saunaosastoremontti 2010, yhteispihan perusparannus 2012, ikkunat ja parvekeovet uusittu 2015, IV-kanavien puhdistus ja venttiilien säätö 2015, lämmitysjärjestelmän tasapainotus ja venttiilien säätö 2016, kylpyhuoneiden pyyhekuivaus pattereiden tarkastukset, 9 kpl uusittu 2017, puiden kaadot 11 kpl 2017, lukitukset uusittu 2018, talon julkisivujen pesu 2019, julkisivujen elementtisaumojen uusiminen, paikkokorjaus ja paikkomaalaus ,kaukolämmön säätimen uusiminen 2020, lämmityksen käyttövesisiirtimen uusiminen 2021, jälkiasennushissi/ Kone hissit Oy 10/2021-2/2022, numerokoodilukon käyttöönotto ulko-ovessa 2022, alaparkkipaikan autopaokoille (6 kpl) kaapelointivalmius sähköautojen lataukseen 2023, valvontakameran assennus etuovelle 2024.
Planerade renoveringar i bostadsbolaget
Viiden vuoden kunnossapitotarveselvitys 2026-2029: lämmönjakolaitteiden tarkistus, IV-kanavien nuohous tarvittaessa 2025, parvekkeiden tarkistus 2026
Tomtägare
oma

Sovrum

Antal
2

Service och trafikförbindelser

Tjänster
Kaikki palvelut kävelymatkan etäisyydellä.

Kontakta mäklaren

Dela sidan

Fortsätt utforska